Verkocht

Nieuwstraat 32 7551 CX Hengelo

151m2
Wonen
12
Kamers
0m2
Perceel
1955
Bouwjaar
Op zoek naar een aantrekkelijke vastgoedinvestering met groeipotentieel? Deze woonruimte op de eerste en tweede verdieping met zolderruimte op de derde verdieping biedt volop mogelijkheden. De ruimtes moeten nog worden gerenoveerd, maar juist dat maakt dit een ideale kans voor eventuele beleggers én particulieren die zelf een woning naar wens willen creëren.

Met een slimme indeling en strategische verbouwing kan deze locatie een uitstekend rendement opleveren, of het nu gaat om verhuur, doorverkoop of eigen bewoning. De ruime opzet en gunstige ligging maken dit een gewilde optie voor toekomstige huurders, kopers en particulieren die op zoek zijn naar een unieke woonkans.

Oppervlakte :
Begane grond
Ca. 2,7 m2 woonruimte
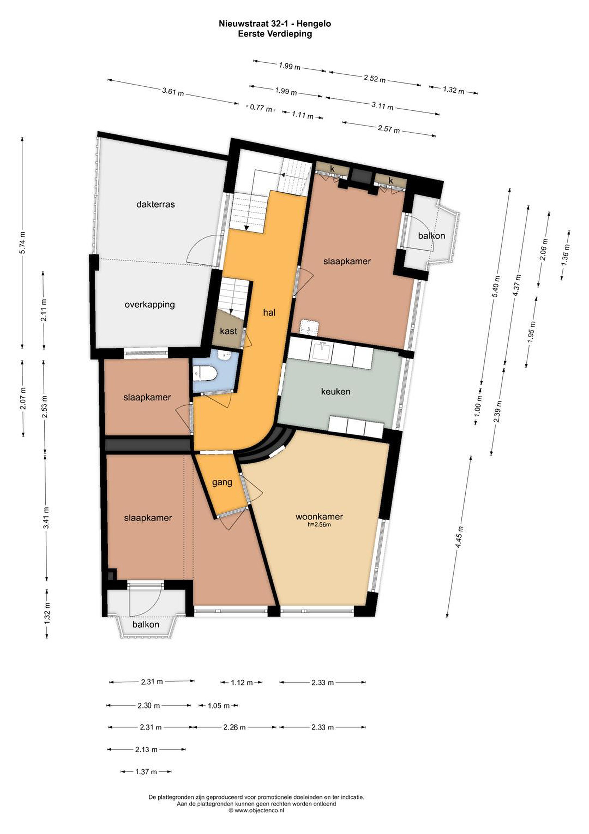
Eerste verdieping
Ca. 74,0 m2 woonruimte
Tweede verdieping
Ca. 75,0 m2 woonruimte
Derde verdieping
Ca. 55,0 m2 opslag-/zolderruimte

Bereikbaarheid :
Het object is gelegen in het kernwinkelcentrum van Hengelo en is zowel met eigen als met het openbaar vervoer zeer goed bereikbaar. In de directe nabijheid zijn er parkeergelegenheden als: Q-park De Brink, Thiemsbrug en P1 Parking Hengelo Centre (betaald parkeren).

Kadastraal :
Gemeente: Hengelo (O)
Sectie: O
Nummer: 6239 A2

Opleveringsniveau :
In de huidige staat, conform het “as-is, where is” principe.

Koopsom :
€ 365.000,00 kosten koper.

Zekerheidsstelling :
Koper dient een bankgarantie of waarborgsom te
stellen ter hoogte van 10% van de koopprijs.

Aanvaarding :
In overleg.

Bijzonderheden :
Het gebouw is gesplitst in een appartementsrecht voor de winkelruimte en een appartementsrecht voor de bovengelegen woonruimte. Voor verdere informatie omtrent de splitsing verzoeken wij u contact op te nemen met ons kantoor.

Voorbehoud :
Definitieve goedkeuring opdrachtgever.

Lees meer

Verkoopgeschiedenis

Aangeboden sinds
9 oktober 2025
Verkoopdatum
2 april 2026
Looptijd
6 maanden

Kenmerken

Overdracht

Prijs per m2
€ 2.417
Aangeboden sinds
9 oktober 2025
Status
Verkocht
Aanvaarding
In overleg

Bouw

Soort appartement
Bovenwoning, appartement
Soort bouw
Bestaande bouw
Bouwjaar
1955
Staat van onderhouden binnen
Redelijk
Staat van onderhouden buiten
Goed

Oppervlakte en inhoud

Indeling

Aantal kamers
12
Aantal slaapkamers
11
Aantal woonlagen
3
Voorzieningen

Buitenruimte

Balkon
Nee
Schuur/berging
Nee

Maandlasten berekenen

De maandlasten voor je woning bestaan uit meer dan alleen de hypotheeklasten. Hieronder vind je een overzicht van de bijkomende kosten en lasten. Zo weet je precies wat je huis per maand gaat kosten. En met de handige vergelijkers kun je ook nog eens snel de beste deals sluiten!

  • Kaart
  • Streetview