Geleenstraat 62A 6411 HT Heerlen

153m2
Wonen
4
Kamers
288m2
Perceel
1905
Bouwjaar
Dit veelzijdige woon- en werkpand is gelegen aan de Geleenstraat 62 & 62A, midden in het dynamische centrum van Heerlen. De ligging is uitstekend: winkels, horeca, openbaar vervoer en overige voorzieningen bevinden zich op loopafstand. Heerlen heeft de afgelopen jaren een duidelijke transformatie doorgemaakt en ontwikkelt zich door investeringen in stedelijke vernieuwing, cultuur, onderwijs en wonen steeds sterker als aantrekkelijke woon- en werkomgeving binnen Parkstad Limburg. Deze positieve ontwikkeling maakt dit pand niet alleen geschikt voor direct gebruik, maar ook interessant met het oog op de toekomst.

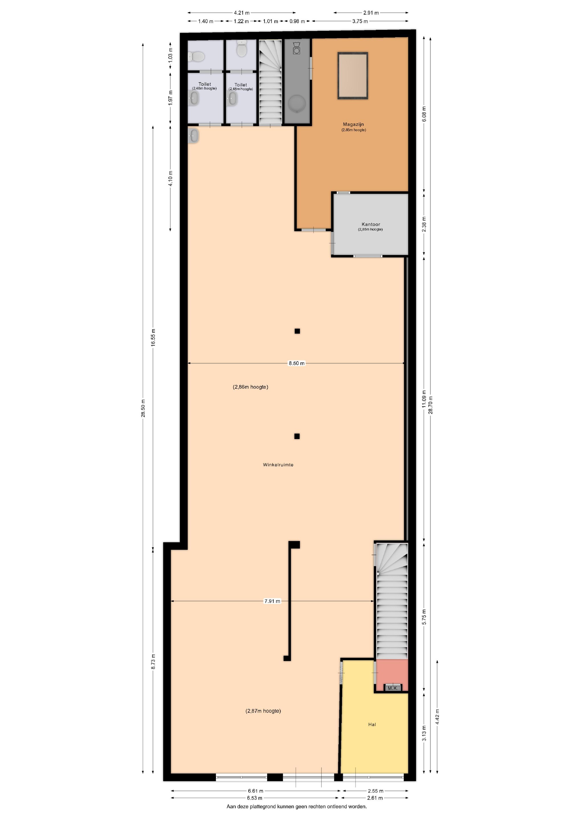
Het object bestaat uit een ruime bedrijfs- of winkelruimte op de begane grond en een zelfstandig appartement verdeeld over meerdere verdiepingen. Op de begane grond bevindt zich een royale en functionele bedrijfsruimte, geschikt voor diverse doeleinden zoals detailhandel, kantoor, praktijkruimte of showroom. De ruimte is praktisch ingericht en beschikt over twee toiletruimtes, een magazijn en een separate kantoorruimte, waardoor het pand direct inzetbaar is voor uiteenlopende bedrijfsactiviteiten.

Boven de bedrijfsruimte is het appartement gesitueerd, dat zich kenmerkt door een veelzijdige indeling en meerdere gebruiksmogelijkheden. De combinatie van wonen en werken op één locatie, samen met de centrale ligging en flexibele indeling, maakt dit pand bijzonder geschikt voor zowel ondernemers als particulieren die op zoek zijn naar ruimte, functionaliteit en toekomstwaarde.
Begane grond
Stap binnen in de royale bedrijfsruimte op de begane grond, een veelzijdige en functionele ruimte die zich uitstekend leent voor uiteenlopende doeleinden. Of het nu gaat om een winkel, kantoor, studio of showroom, deze ruimte biedt volop mogelijkheden en flexibiliteit. Aanvullend beschikt de begane grond over een magazijn, een separate kantoorruimte en twee toiletruimtes, waardoor het pand volledig is ingericht om direct te voorzien in diverse zakelijke behoeften.

Eerste verdieping
Het appartement is bereikbaar via een eigen ingang, wat zorgt voor privacy en een duidelijke scheiding tussen wonen en werken. Op de eerste verdieping kom je uit op de overloop, waar zich een toiletruimte bevindt. Vanuit hier is er toegang tot een veelzijdige ruimte die momenteel in gebruik is als klaslokaal met aangrenzende kantoorruimte. Deze ruimte leent zich uitstekend voor herinrichting en kan met beperkte aanpassingen eenvoudig worden omgevormd tot een comfortabele woonkamer of slaapkamer. Via een tussenportaal met trappenhal is de gesloten keuken bereikbaar. De keuken is praktisch ingericht en beschikt over veel kastruimte en diverse inbouwapparatuur, waaronder een halogeen kookplaat (op de foto hieronder zie je een gaskookplaat, deze is vernieuwd), afzuigkap, combi heteluchtoven, koelkast en vaatwasser.

Tweede verdieping
De tweede verdieping biedt extra wooncomfort en flexibiliteit. Je wordt hier verwelkomd in een ruime woonkamer met karakteristieke houten balken, die zorgen voor een prettige en authentieke uitstraling. Daarnaast is deze verdieping voorzien van airconditioning, wat bijdraagt aan een aangenaam binnenklimaat. Indien gewenst bestaat de mogelijkheid om de indeling aan te passen en een tweede slaapkamer te realiseren, waardoor het appartement nog veelzijdiger wordt.
De bestaande slaapkamer is ruim opgezet en geniet van prettig natuurlijk daglicht.
Daarnaast is er een praktische berging aanwezig met veel opbergruimte en de opstelling van de cv-installatie, wat zorgt voor extra gemak.
De badkamer is netjes afgewerkt, volledig betegeld en ingericht met een inloopdouche met glazen douchewand, een wastafel met verlichte spiegel en een toilet.

Details
*Prijs verlaagd voor de komende 3 maanden naar € 375.000 k.k. (tot 1 mei 2026)
*Energielabel C
*Veelzijdig Winkelpand in centrum Heerlen: Dit winkelpand biedt talloze mogelijkheden voor diverse doeleinden en is gunstig gelegen in het centrum van Heerlen.
*Potentieel voor twee appartementen: Het ruime appartement op de bovenverdieping kan gemakkelijk worden opgedeeld in twee afzonderlijke appartementen, waardoor het pand een uitstekende investeringsmogelijkheid biedt.
*Flexibele indeling voor wonen en werken: Met de mogelijkheid om te wonen en te werken onder één dak, biedt dit pand de perfecte gelegenheid voor ondernemers die op zoek zijn naar een veelzijdige en flexibele ruimte.
*Huurovereenkomst cv-installatie en boiler dienen mee overgenomen te worden

De informatie is met de nodige zorgvuldigheid door ons samengesteld. Er kunnen geen rechten worden ontleend aan deze advertentie en brochure en aanvaarden wij geen enkele aansprakelijkheid voor enige onvolledigheid, onjuistheid of anderszins, dan wel de gevolgen daarvan. Maatvoeringen en oppervlakten zijn indicatief.

Lees meer

Kenmerken

Overdracht

Prijs per m2
€ 2.451
Aangeboden sinds
27 januari 2026
Status
Beschikbaar
Aanvaarding
In overleg

Bouw

Soort appartement
Bovenwoning, appartement
Soort bouw
Bestaande bouw
Bouwjaar
1905
Soort dak
Plat dak
Staat van onderhouden binnen
Goed
Staat van onderhouden buiten
Goed

Oppervlakte en inhoud

Inhoud van de woning
450 m3
Oppervlakte gebouwgebonden buitenruimten
173 m2
Oppervlakte overige inpandige ruimten
7 m2

Indeling

Aantal kamers
4
Aantal slaapkamers
2
Aantal woonlagen
3
Voorzieningen
Rolluiken, airconditioning

Buitenruimte

Balkon
Nee
Schuur/berging
Nee

Maandlasten berekenen

De maandlasten voor je woning bestaan uit meer dan alleen de hypotheeklasten. Hieronder vind je een overzicht van de bijkomende kosten en lasten. Zo weet je precies wat je huis per maand gaat kosten. En met de handige vergelijkers kun je ook nog eens snel de beste deals sluiten!

  • Kaart
  • Streetview