Verkocht

Kennemerstraat 64RD 2021 EE Haarlem

90m2
Wonen
4
Kamers
0m2
Perceel
1902
Bouwjaar
** ENGLISH BELOW**

SFEERVOL LICHT EN RUIM DUBBEL BOVENHUIS 90 m2, MET 3 OF 4 SLAAPKAMERS, ENERGIEZUINIG EN VOORZIEN VAN EEN HEERLIJK ZONNIG TERRAS EN BALKON IN HET HART VAN HAARLEM!

LIGGING
De Kennemerstraat ligt op loopafstand van de winkelstraat Cronjé, winkelcentrum Spaarneboog en het Nelson Mandelapark. Centraal Station Haarlem is 5 minuten lopen en de Grote Markt is ongeveer 5 minuten fietsen. Lekker centraal gelegen!

INDELING
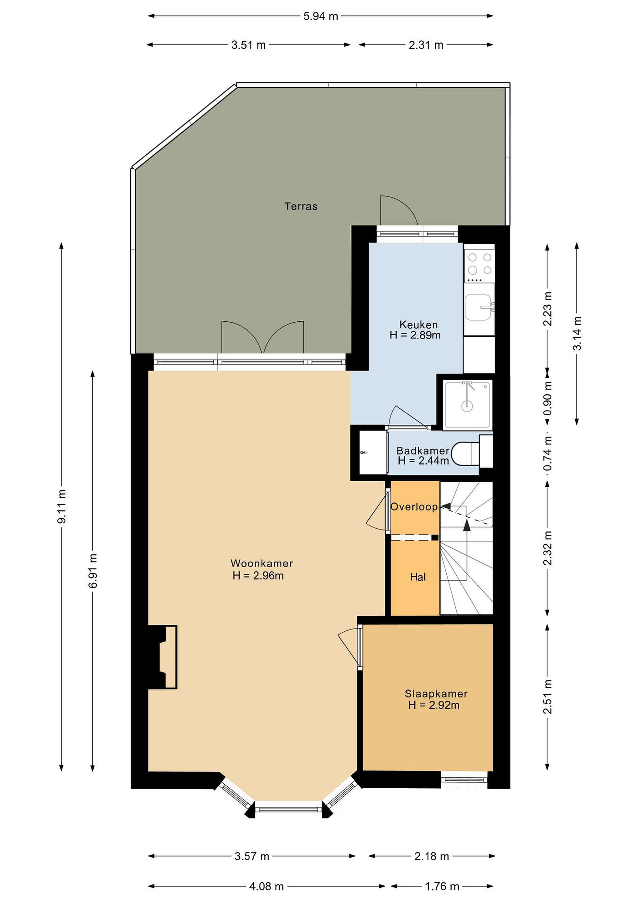
Begane grond
Via de voordeur toegang tot de entree met de meterkast en een rechte gestoffeerde trap naar de 1e verdieping. De eerste en de tweede verdieping zijn voorzien van een nieuwe laminaat vloer.

1e verdieping
Hal met toegang tot de woonkamer en de trap naar de 2e verdieping. Via de woonkamer komt u in de keuken, badkamer, toilet en de 1e (slaap)kamer.

De woonkamer heeft aan de achterzijde twee openslaande deuren met toegang tot het ruime dakterras. Door het ruime terras heeft u meer mogelijkheden om gedurende de dag heerlijk in de zon te zitten.

De badkamer is volledig betegeld en heeft een hangend toilet en een fonteintje. Aan de voorzijde is de ruime en lichte woonkamer.

De half open keuken bevindt zich aan de achterkant en is voorzien van een keramische kookplaat, afzuigkap, diverse keukenkasten en de mogelijkheid tot het plaatsen van een vaatwasmachine.

Vanuit de keuken en de woonkamer is er toegang tot het grote zonnige terras.

De (slaap)kamer aan de voorkant is ook handig om te gebruiken als thuiswerkplek, logeerkamer etcetera.

2e verdieping
Hier bevinden zich 2 ruime slaapkamers, waarvan de grote masterbedroom aan de voorkant ligt. De masterbedroom is ook geschikt om twee kamers van te maken.
Op de ruime overloop is de aansluiting voor de wasmachine en droger aangelegd.
De ruime badkamer heeft een hangend toilet, een inloopdouche en een wastafel met onderkast en een spiegel.

+ Ruime woning in een gewilde buurt;
+ Goede centrale ligging ten opzichte van het stadscentrum en winkelcentra;
+ Woonoppervlakte 90m2;
+ Extra slaapkamer mogelijk;
+ Twee badkamers;
+ Ruim zoning dakterras op eerste verdieping;
+ Balkon op tweede verdieping;
+ Gestucte muren en plafonds;
+ Alle muren en plafonds zijn Latex gespoten voor superstrak resultaat;
+ Nieuwe laminaat vloer op beide verdiepingen;
+ Energielabel B, €10.000,- extra te lenen bedrag hypotheek door lagere energielasten;
+ Nieuwe CV ketel 2025;
+ Gebouwd rond 1902 en een fundering op staal (volgens opgave gemeente);
+ Clausules van toepassing; o.a. niet zelf bewoond;
+ VVE is ingeschreven, niet actief;
+ Oplevering in overleg, kan snel.

**ENGLISH SUMMARY**

CHARMING, BRIGHT AND SPACIOUS DUPLEX APARTMENT OF 90 m2, WITH 3 OR 4 BEDROOMS, ENERGY-EFFICIENT, AND FEATURING A WONDERFUL SUNNY TERRACE AND BALCONY IN THE HEART OF HAARLEM!

LOCATION
Kennemerstraat is within walking distance of the Cronjé shopping street, the Spaarneboog shopping center, and Nelson Mandelapark. Haarlem Central Station is just a 5-minute bike ride, and the Grote Markt can be reached in about 8 minutes by bike. A wonderfully central location.

LAYOUT

Ground floor
Entrance via the front door into a hallway with a meter cupboard and a straight carpeted staircase to the first floor. Both the first and second floors are fitted with brand-new laminate flooring.

First floor
Landing with access to the living room and stairs to the second floor. From the living room, you enter the kitchen, bathroom, toilet, and the first (bed)room.

The living room has double French doors at the rear opening onto a spacious roof terrace. Thanks to its size and orientation, the terrace offers plenty of opportunities to enjoy the sun throughout the day.

The bathroom is fully tiled and features a wall-mounted toilet and a small washbasin. At the front of the house is the spacious and light-filled living room.

The semi-open kitchen is located at the rear and equipped with a ceramic hob, extractor hood, several kitchen cabinets, and space to install a dishwasher.

Both the kitchen and living room provide access to the large, sunny roof terrace.

The front (bed)room is also ideal as a home office, guest room, or hobby room.

Second floor
Here you'll find two spacious bedrooms. The large master bedroom is located at the front and could easily be converted into two separate rooms if desired.
The spacious landing is equipped with connections for a washing machine and dryer.

The large bathroom includes a wall-mounted toilet, a walk-in shower, and a vanity unit with sink and mirror. There is also room for the washer and dryer.

Highlights
+ Spacious home in a popular neighborhood
+ Centrally located near city center and shopping areas
+ Living area of 90 m2
+ Potential for an extra bedroom
+ Large sunny roof terrace on the first floor
+ Balcony on the second floor
+ Smooth plastered walls and ceilings
+ All walls and ceilings finished with latex paint for a clean, sleek look
+ New laminate flooring on both levels
+ Energy label B — up to €10,000 extra mortgage borrowing possible due to lower energy costs
+ New central heating boiler (2025)
+ Built circa 1902, with a solid foundation (as stated by the municipality)
+ Sale subject to special clauses, including “not owner-occupied”
+ VVE is registered but inactive
+ Transfer date in consultation, can be quick.
Lees meer

Verkoopgeschiedenis

Aangeboden sinds
22 september 2025
Verkoopdatum
5 november 2025
Looptijd
één maand

Kenmerken

Overdracht

Prijs per m2
€ 5.278
Aangeboden sinds
22 september 2025
Status
Verkocht
Aanvaarding
In overleg

Bouw

Soort appartement
Bovenwoning, dubbel bovenhuis
Soort bouw
Bestaande bouw
Bouwjaar
1902
Soort dak
Plat dak
Staat van onderhouden binnen
Goed
Staat van onderhouden buiten
Goed

Oppervlakte en inhoud

Inhoud van de woning
327 m3
Oppervlakte gebouwgebonden buitenruimten
27 m2

Indeling

Aantal kamers
4
Aantal slaapkamers
3
Aantal woonlagen
2
Voorzieningen
Balkon, schuur/berging, ventilatie

Buitenruimte

Balkon
Ja
Schuur/berging
Ja

Maandlasten berekenen

De maandlasten voor je woning bestaan uit meer dan alleen de hypotheeklasten. Hieronder vind je een overzicht van de bijkomende kosten en lasten. Zo weet je precies wat je huis per maand gaat kosten. En met de handige vergelijkers kun je ook nog eens snel de beste deals sluiten!

  • Kaart
  • Streetview