Onder optie

Badweg Formerum 10A12 8894 KW Formerum

67m2
Wonen
3
Kamers
0m2
Perceel
2024
Bouwjaar
Elements Terschelling – laatste kans op een exclusieve recreatiewoning aan zee!

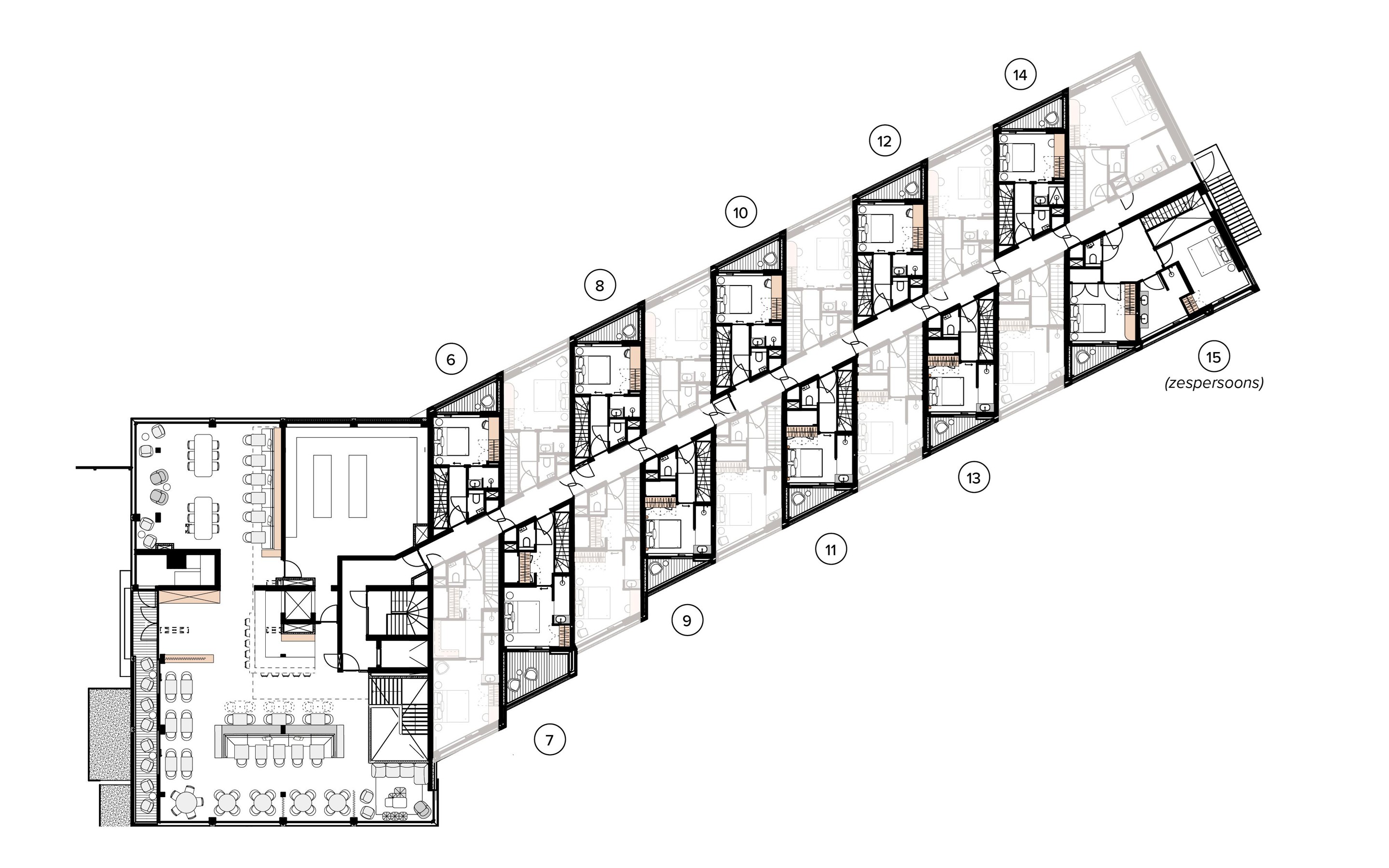
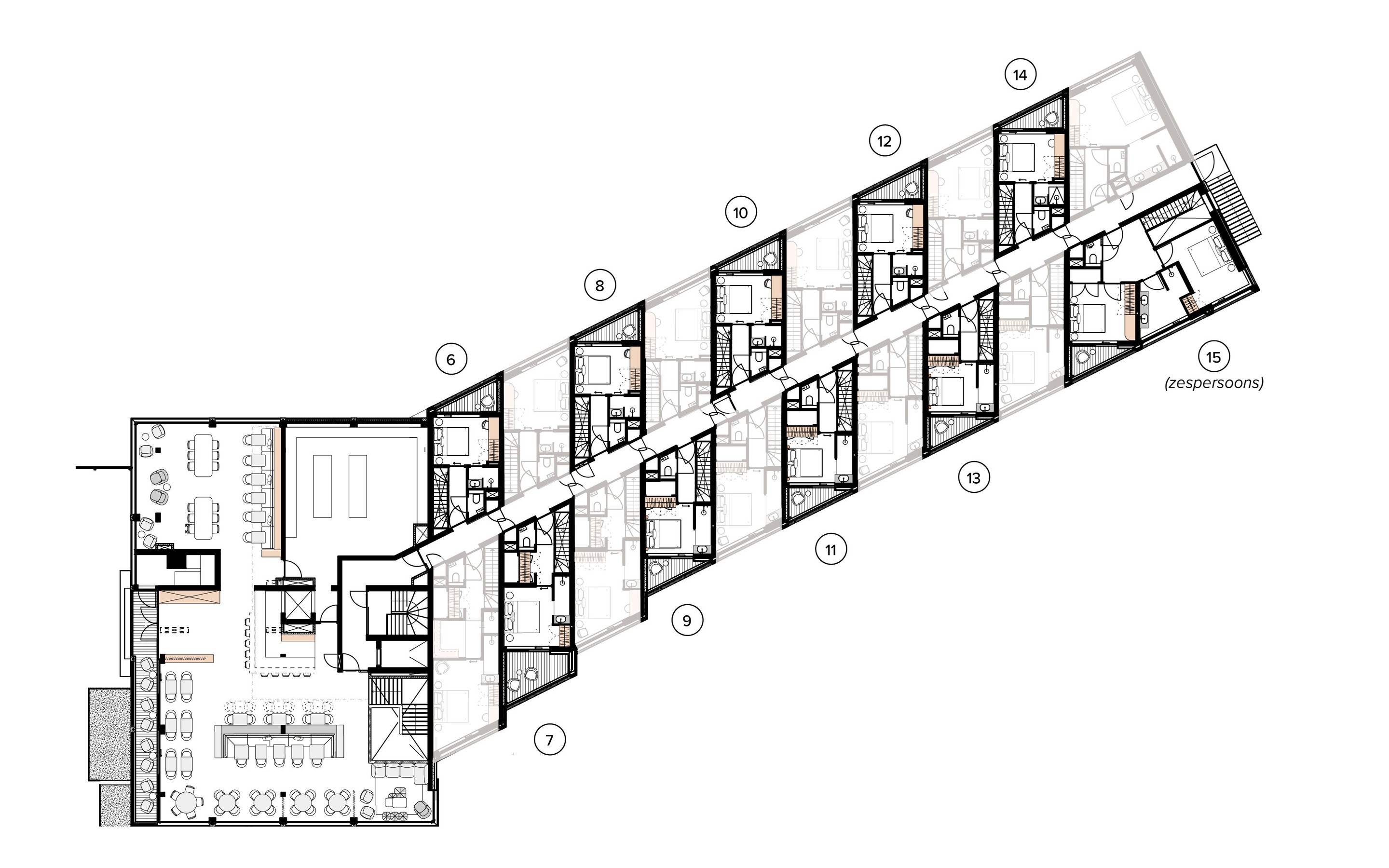
Op het schitterende Waddeneiland Terschelling bevindt zich Elements Terschelling: 25 luxe recreatieappartementen in een stijlvol wellnesshotel, direct bovenop de duinen en pal aan het brede Noordzeestrand. De bouw is inmiddels afgerond en Elements is geopend! Dus vanaf januari 2026 is eigen gebruik en verhuur van dit volledig ingerichte appartement mogelijk.

Dit is je kans, want er zijn nog slechts vier appartementen beschikbaar!

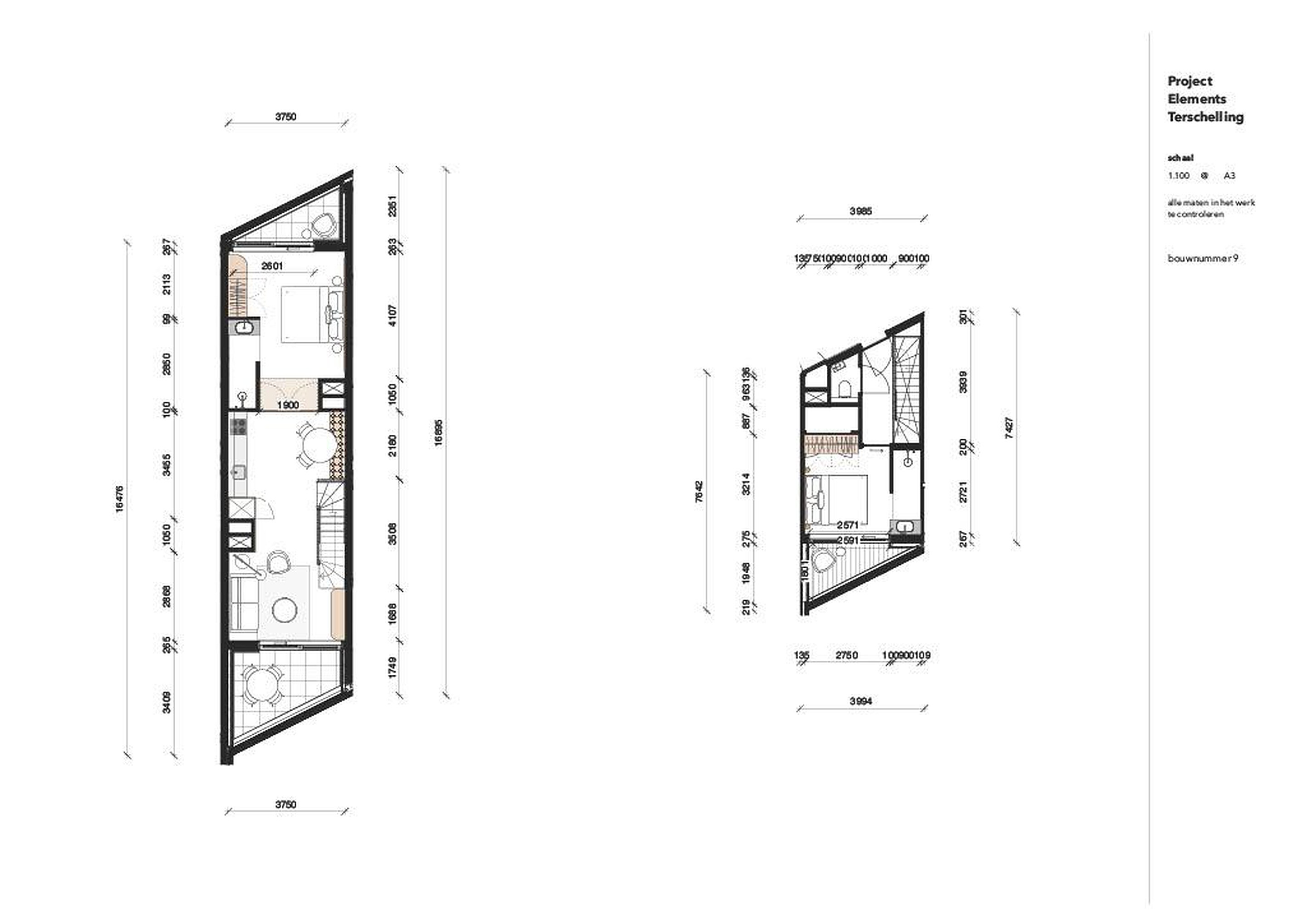
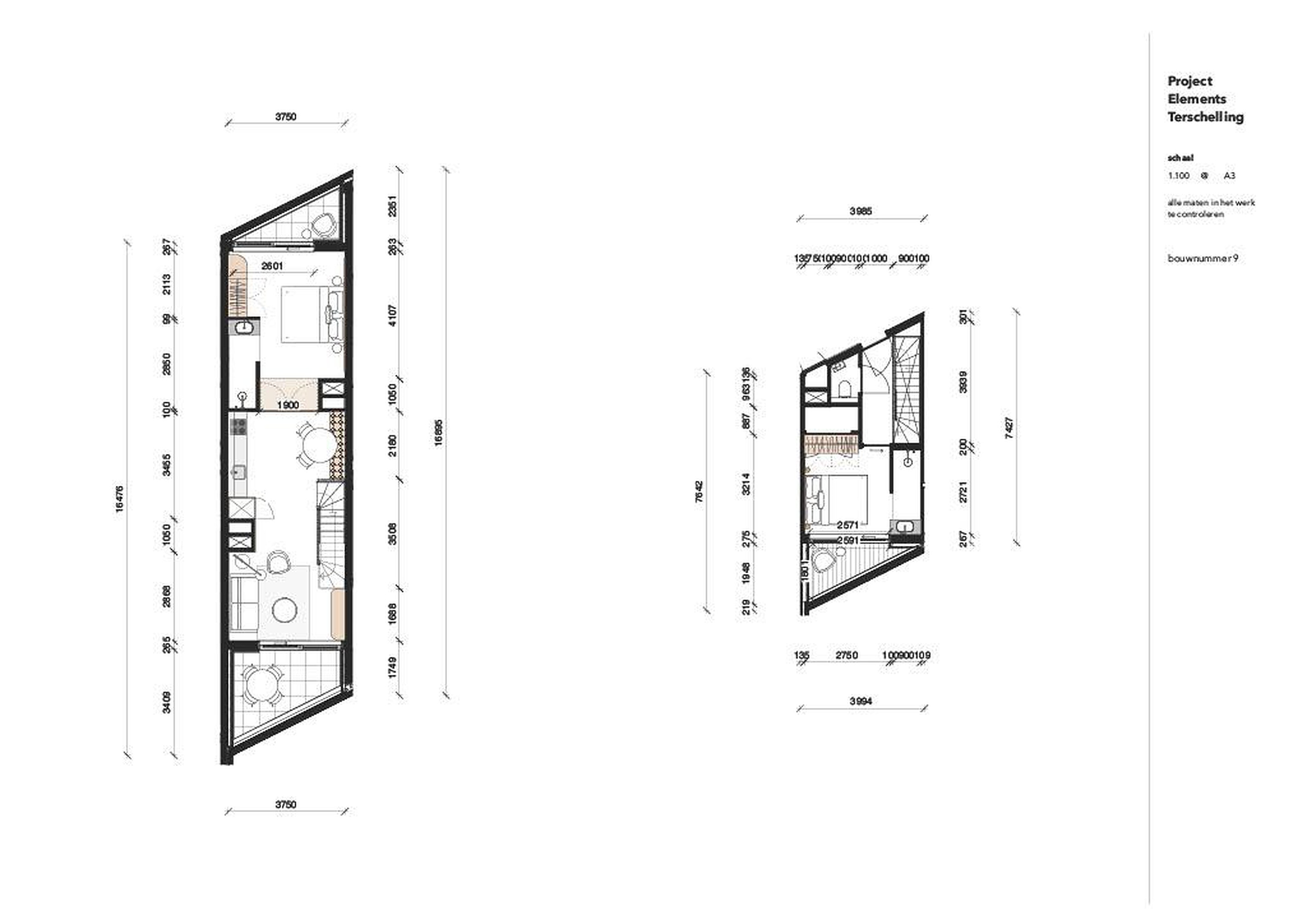
Appartement 12 – volledig ingericht 4-persoons duplex appartement.
Appartement nummer 12 is een duplex appartement met een woonoppervlakte van 67m2, geschikt voor 4 personen.
Een centrale gang op de tweede verdieping biedt toegang tot de duplex appartementen. Via de hal, met aansluitend een slaapkamer met badkamer en balkon op het zuiden, bereik je per trap naar beneden de doorzonverdieping. Hier ligt de doorzonverdieping dus op de 1e etage.
De doorzonverdieping beschikt over een ruime woonkamer met balkon op het zuiden en een open keuken. Aan de noordzijde bevindt zich een tweede slaapkamer met eigen badkamer en balkon dat uitkijkt op de duinen grenzend het Noordzeestrand. Hier hoor, ruik en voel je de zee en zilte zeelucht direct bij het ontwaken. Met behulp van de plattegrond krijg je een goede indruk van de indeling van deze recreatiewoning.

Het beste van twee werelden
Als eigenaar of gast geniet je van de vrijheid van een eigen appartement, maar ook van alle luxe hotelfaciliteiten van Elements Terschelling. Denk aan het restaurant en de bar met terras, de wellnessvoorzieningen en de receptie die je volledig ontzorgt.

Het appartement wordt bovendien volledig turnkey opgeleverd en tot in detail ingericht door Hinabaay. Elk detail is doordacht: van de stijlvolle meubels tot de complete inventaris. Zo stap je direct binnen in een sfeervol en gebruiksklaar vakantieverblijf.

Dankzij natuurlijke materialen, zoals vergrijzend hout, gaat het gebouw volledig op in zijn omgeving. Een duurzaam, gasloos en emissievrij complex met energielabel A+++ en A++, zonnepanelen op het groene dak en een ontwerp dat de natuur versterkt in plaats van verstoort. Vanwege de unieke locatie is er sprake van een recht van erfpacht uitgegeven door de grondeigenaar Staatsbosbeheer (de canon voor het gehele complex bedraagt tot 2052 slechts €8,19 per jaar).

Voor eigenaren geldt een gebruiksrecht tot 90 dagen per jaar met volop mogelijkheden in het hoogseizoen. De overige tijd wordt het appartement verhuurd via de organisatie Dutchen. Hierdoor worden vakantieplezier én een solide investering gecombineerd. Je wordt volledig ontzorgd, want de appartementen zijn turnkey opgeleverd, compleet met interieur en inventaris verzorgd door een eigen ontwerpteam.

Een extra voordeel: als koper betaalt u geen overdrachtsbelasting, en doordat het een BTW-belast verhuurobject betreft, kan de BTW worden teruggevorderd.

Een bezichtiging op locatie absoluut de moeite waard is. Ervaar zelf de kwaliteit, de rust en het weidse uitzicht over de Noordzee en de duinen.

Op dit moment zijn de appartementen nummer 1 & 2 (6 persoons benedenwoning) en 8 & 12 ( 4 persoons duplex appartement) nog beschikbaar. Wil je meer weten over de laatste beschikbare appartementen? Vraag direct de brochure via Funda, de projectwebsite of neem contact op met de verkopend makelaar Sanne de Jong. Zij vertelt je graag alles over dit unieke project.

Grijp nu je kans – dit is hét moment om jouw plek op Terschelling veilig te stellen!

Foto's: © Chantal Arnts
N.B. In brochures wordt het oorspronkelijke bouwnummer vermeld. Voor A12 betreft dit bouwnummer 9.
Begane grond
Een centrale gang op de tweede verdieping biedt toegang tot de duplex appartementen. Via de hal, met aansluitend een slaapkamer met badkamer en balkon op het zuiden, bereik je per trap naar beneden de doorzonverdieping. Hier ligt de doorzonverdieping dus op de 1e etage.
De doorzonverdieping beschikt over een ruime woonkamer met balkon op het zuiden en een open keuken. Aan de noordzijde bevindt zich een tweede slaapkamer met balkon en uitzicht over zee.

Details
- Kijk voor meer informatie en beeldmateriaal op de projectpagina: https://www.elementsterschelling.nl.

- De vorderingen van de bouw zijn mooi vastgelegd in een bouwblog: https://www.elementsterschelling.nl/bouwblog

- Voor de complete inventaris wordt een verplichte bijdrage gerekend. De bijdrage voor het volledig verzorgde design interieur en turnkey oplevering van de 4-persoons woning nummer 12 bedraagt van €60.000,-- excl. BTW.

- De gemelde prijzen zijn exclusief BTW. Er geldt geen overdrachtsbelasting. Doordat het een met BTW belast verhuurobject betreft kunt u de BTW terugvorderen.

Lees meer

Kenmerken

Overdracht

Prijs per m2
€ 11.343
Aangeboden sinds
8 oktober 2025
Status
Beschikbaar
Aanvaarding
In overleg
Bijzonderheden
Gemeubileerd

Bouw

Soort appartement
Bovenwoning
Soort bouw
Nieuwbouw
Bouwjaar
2024
Staat van onderhouden binnen
Uitstekend
Staat van onderhouden buiten
Uitstekend

Oppervlakte en inhoud

Indeling

Aantal kamers
3
Aantal slaapkamers
2
Aantal woonlagen
2
Voorzieningen
Vve checklist, balkon

Buitenruimte

Balkon
Ja
Schuur/berging
Nee

Maandlasten berekenen

De maandlasten voor je woning bestaan uit meer dan alleen de hypotheeklasten. Hieronder vind je een overzicht van de bijkomende kosten en lasten. Zo weet je precies wat je huis per maand gaat kosten. En met de handige vergelijkers kun je ook nog eens snel de beste deals sluiten!

  • Kaart
  • Streetview