Volendamstraat 20 8304 CA Emmeloord

75m2
Wonen
3
Kamers
0m2
Perceel
1982
Bouwjaar
Speels ingedeeld appartement met twee slaapkamers, balkon, berging en extra buitenruimte aan de voorzijde

Op een rustige locatie in Emmeloord staat dit verrassend ruime appartement verdeeld over meerdere woonlagen. De woning beschikt over een lichte woonkamer met open keuken, twee slaapkamers, een balkon en een praktische berging op de begane grond. Daarnaast beschikt de woning over een extra stuk grond aan de voorzijde van circa 15 m2, direct bij de entree.

De woning maakt onderdeel uit van een kleinschalig complex en is een uitstekende kans voor starters, alleenstaanden of kleine huishoudens die comfortabel willen wonen op een fijne locatie.
Begane grond
Via de eigen entree op de begane grond komt u binnen in de hal met trapopgang naar de woonverdieping. Op deze verdieping bevindt zich tevens een praktische berging, ideaal voor fietsen, gereedschap of extra opslag.

Eerste verdieping
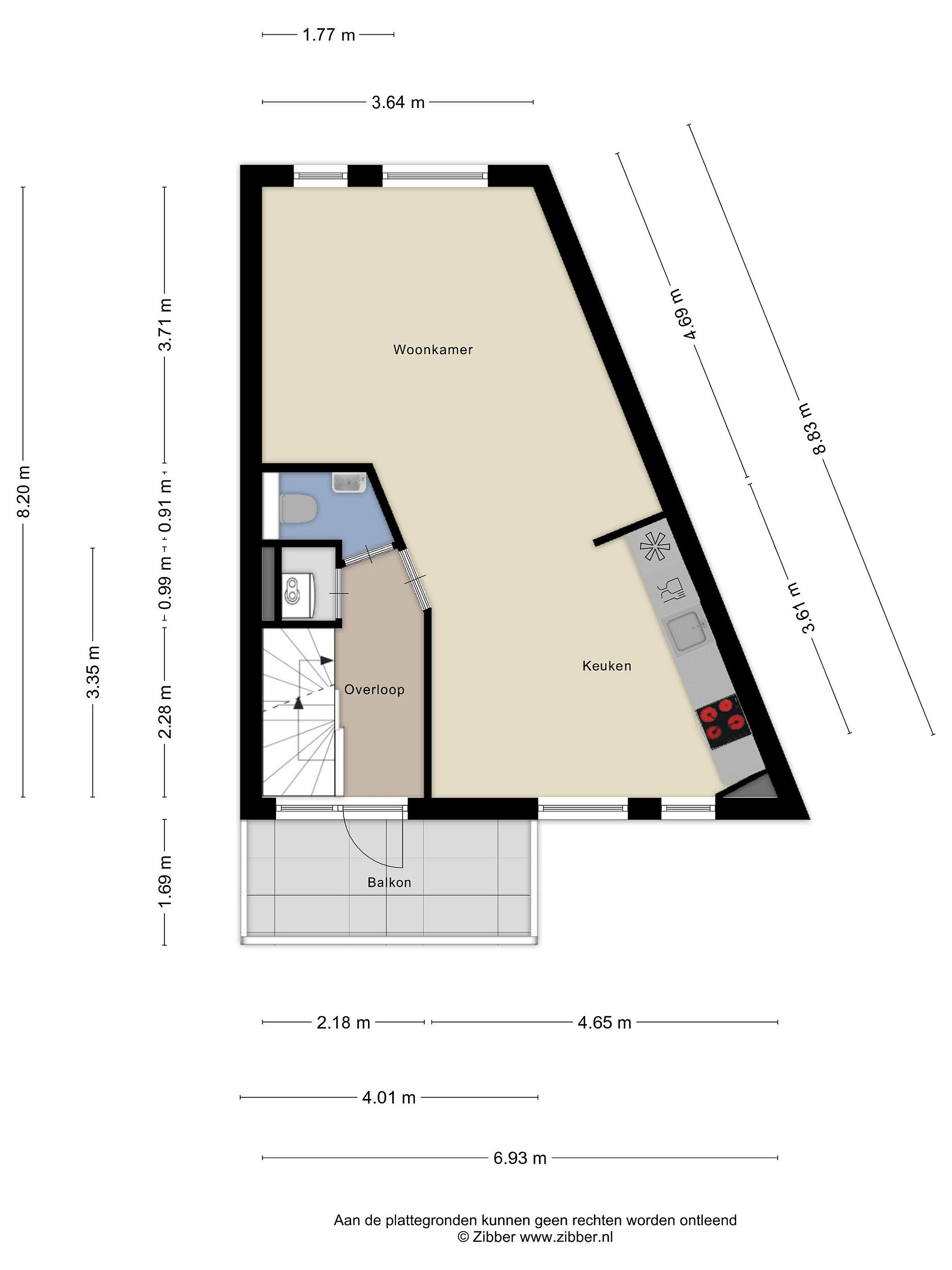
De eerste verdieping vormt het hart van de woning. Hier bevindt zich de lichte woonkamer met open keuken. Dankzij de grote ramen aan de voorzijde valt er veel daglicht binnen, wat zorgt voor een prettige en open sfeer.

De woonkamer biedt voldoende ruimte voor zowel een comfortabele zithoek als een eethoek. De keuken is in een rechte opstelling geplaatst en voorzien van diverse inbouwapparatuur.

Vanuit de woonkamer is er toegang tot het balkon, een fijne plek om buiten te zitten.
Op deze verdieping bevindt zich tevens een separate toiletruimte en de overloop met trapopgang naar de slaapverdieping.

Tweede verdieping
Op de tweede verdieping bevinden zich twee slaapkamers en de badkamer. Door de schuine kap hebben de kamers een speelse indeling en een gezellige sfeer.

De badkamer is voorzien van een douche, wastafel en sanitaire voorzieningen.

Details
-Appartement verdeeld over meerdere woonlagen
-Gebruiksoppervlakte wonen ca. 75 m2
-Overige inpandige ruimte ca. 12,5 m2
-Balkon ca. 8 m2
-Twee slaapkamers
-Eigen entree
-Berging op de begane grond
-Energielabel C
-Actieve Vereniging van Eigenaren

Lees meer

Kenmerken

Overdracht

Prijs per m2
€ 3.662
Aangeboden sinds
9 maart 2026
Status
Beschikbaar
Aanvaarding
In overleg

Bouw

Soort appartement
Bovenwoning, appartement
Soort bouw
Bestaande bouw
Bouwjaar
1982
Soort dak
Zadeldak
Staat van onderhouden binnen
Goed
Staat van onderhouden buiten
Goed

Oppervlakte en inhoud

Inhoud van de woning
289 m3
Oppervlakte gebouwgebonden buitenruimten
8 m2
Oppervlakte overige inpandige ruimten
12 m2

Indeling

Aantal kamers
3
Aantal slaapkamers
2
Aantal woonlagen
3
Voorzieningen
Schuur/berging, ventilatie, glasvezel, dakraam

Buitenruimte

Balkon
Nee
Schuur/berging
Ja

Maandlasten berekenen

De maandlasten voor je woning bestaan uit meer dan alleen de hypotheeklasten. Hieronder vind je een overzicht van de bijkomende kosten en lasten. Zo weet je precies wat je huis per maand gaat kosten. En met de handige vergelijkers kun je ook nog eens snel de beste deals sluiten!

  • Kaart
  • Streetview