Middenweg 362 1097 BP Amsterdam

156m2
Wonen
4
Kamers
0m2
Perceel
1898
Bouwjaar
In één woord heerlijk! Wat is dit een fijne woning. Licht, ruimte en een dakterras. ** English below**

Wat mogen wij u achter deze prachtige gevel aanbieden. Een ruim dubbel bovenhuis van circa 156 m2 met een opbouw en dakterras, gelegen in het “hart” van de Watergraafsmeer, tussen de Zacharias Jansestraat en Wakkerstraat. De woning is onderdeel van een karakteristiek en vooroorlogs pand, verdeeld over de tweede en derde verdieping, met een dakterras op de vierde verdieping. Naast het dakterras is er op zowel de 2e als de 3e verdieping een ruim balkon aan de achterzijde. Omdat de woning in het midden van het bouwblok ligt, met vrij uitzicht over de groene binnentuinen.

Indeling
Entree van de woning via de straat/toegangsdeur op de begane grond. 2e verdieping; Hal, toilet, woonkamer met open keuken
(waarbij de zijkamer aan de voorzijde met de woonkamer is samengevoegd), een frans balkon aan de voorzijde en een balkon aan de achterzijde.

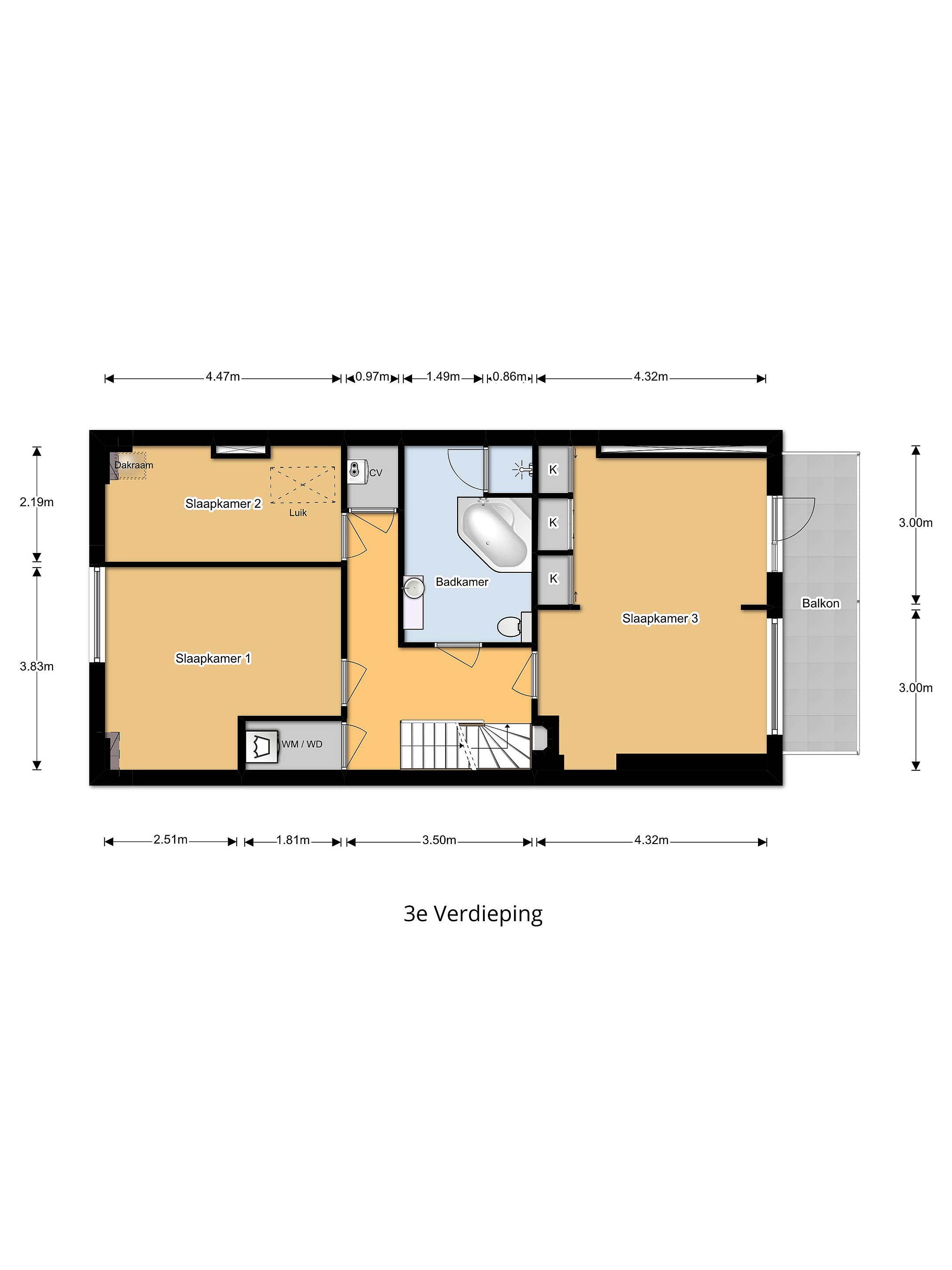
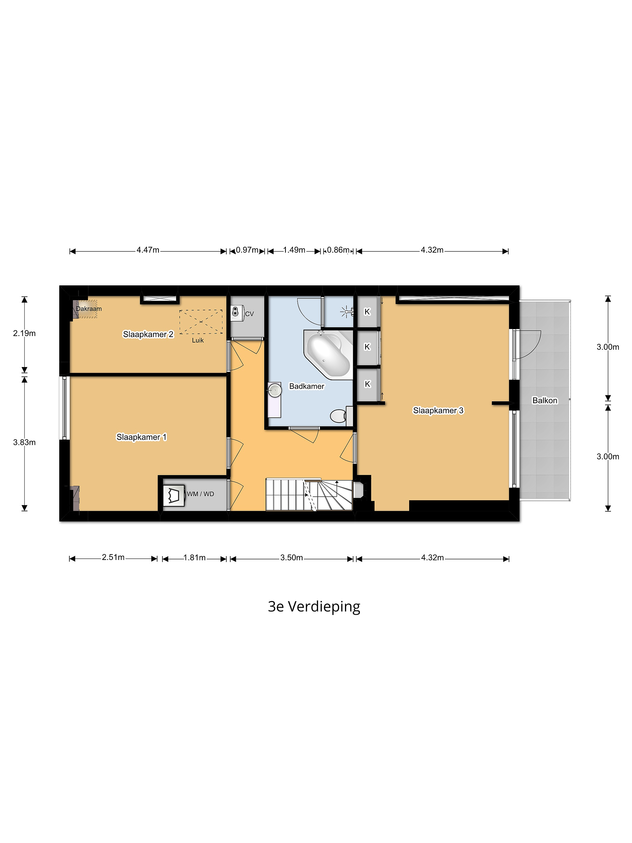
3e verdieping; Drie (voorheen 4) slaapkamers, waarvan een met een balkon. Verder is er een badkamer, een ruimte met opstelplaats voor de wasmachine en droger en een kast met de cv ketel.

4e verdieping; Het dakterras, bereikbaar door middel van een vaste trap en opbouw.

Buitenruimte
Met 2 balkons en een dakterras zit u qua buitenruimte meer dan goed. 2e verdieping, een frans balkon aan de voorzijde en een heerlijk, beschut balkon aan de achterzijde, op het zuid-westen gelegen. 3e verdieping, een balkon aan de achterzijde, grenzend aan een van de slaapkamers (eveneens zuid-westen) en tot slot een prachtig dakterras, bijna 40 m2 groot.

U heeft ongetwijfeld iets meegekregen over de discussie rond erfpacht. Daar hoeft u zich in dit geval geen zorgen over te maken, de woning is namelijk op eigen grond gelegen.

De omgeving
De Watergraafsmeer is een bijzonder stukje Amsterdam en de afgelopen jaren uitgegroeid tot een zeer populaire buurt. Dat begrijpen wij heel goed. Rustig maar centraal, met een gezellige stadse sfeer, fraaie architectuur, betrokken bewoners en toch alle voordelen van een grote stad. Dit zijn enkele van de redenen waarom de Watergraafsmeer is uitgegroeid tot een geliefde woonwijk waar het aangenaam en comfortabel wonen is. Vele soorten winkels, scholen & universiteit, Jaap Eden schaatsbaan, zwembad en sportfaciliteiten liggen in de nabijheid. Er zijn diverse stadsparken in de omgeving, Park Frankendael is zelfs bijna “de achtertuin” van deze woning. Leuke cafés en restaurants zijn daarnaast in de omgeving in ruime mate aanwezig.

Wij nodigen u van harte uit om te komen kijken.

**

In one word delightful! What a fine home this is. Light, space and a roof terrace.

What may we offer you behind this beautiful facade. A spacious double upper house of approximately 156 m2 with a superstructure and roof terrace, located in the “heart” of the Watergraafsmeer, between the Zacharias Jansestraat and Wakkerstraat. The house is part of a characteristic and pre-war building, divided over the second and third floor, with a roof terrace on the fourth floor. In addition to the roof terrace, there is a spacious rear balcony on both the 2nd and 3rd floors. Because the property is located in the middle of the building block, with unobstructed views over the green courtyard gardens.

Layout
Entrance to the property via the street/access door on the ground floor. 2nd floor; Hall, toilet, living room with open kitchen
(merging the side room at the front with the living room), a French balcony at the front and a balcony at the rear.

3rd floor; Three (formerly 4) bedrooms, one with a balcony. There is also a bathroom, a room with space for the washing machine and dryer and a cupboard with the central heating boiler.

4th floor; The roof terrace, accessible by means of a fixed staircase and superstructure.

Outdoor space
With 2 balconies and a roof terrace, you are more than comfortable in terms of outdoor space. 2nd floor, a French balcony at the front and a lovely, sheltered balcony at the rear, facing south-west. 3rd floor, a balcony at the back, adjacent to one of the bedrooms (also south-west facing) and finally a beautiful roof terrace, almost 40 m2 in size.

No doubt you have heard something about the discussion around ground lease. There is no need to worry about that in this case, because the house is located on private land.

Area
The Watergraafsmeer is a special piece of Amsterdam and in recent years has become a very popular neighborhood. We understand that very well. Quiet but central, with a cozy city atmosphere, beautiful architecture, committed residents and yet all the advantages of a big city. These are some of the reasons why Watergraafsmeer has become a popular residential area where it is pleasant and comfortable to live. Many kinds of stores, schools & university, Jaap Eden skating rink, swimming pool and sports facilities are in close proximity. There are several city parks in the area, Park Frankendael is even almost “the backyard” of this property. Nice cafes and restaurants are also widely available in the area.

Accessibility
Excellent accessibility by both private and public transport. The highways Ring
A-10, A-1 and A-2 are easily and quickly accessible. Public transportation in the area is also excellent. Located in the vicinity of NS station Science Park, Muiderpoort and the Amstel Station, where various bus, streetcar, train and metro lines take you quickly to your destination. Rather go by bike? Within no time you are for example in the center of Amsterdam or you are on the Amsterdam Zuidas.

More information is provided in the attached brochure.
Details
In de splitsingsakte/tekening staat het trappenhuis weergegeven als behorende bij het verkochte. Dit is niet juist en zal worden aangepast. (naar algemene ruimte) De kosten van deze wijziging worden betaald door de eigenaar van de begane grond en eerste verdieping.

Lees meer

Kenmerken

Overdracht

Prijs per m2
€ 7.372
Aangeboden sinds
28 september 2025
Status
Beschikbaar
Aanvaarding
In overleg

Bouw

Soort appartement
Bovenwoning, appartement
Soort bouw
Bestaande bouw
Bouwjaar
1898
Soort dak
Plat dak
Staat van onderhouden binnen
Goed
Staat van onderhouden buiten
Goed

Oppervlakte en inhoud

Inhoud van de woning
535 m3
Oppervlakte gebouwgebonden buitenruimten
53 m2

Indeling

Aantal kamers
4
Aantal slaapkamers
3
Aantal woonlagen
3
Voorzieningen
Balkon, open haard, fransbalkon

Buitenruimte

Balkon
Ja
Schuur/berging
Nee

Maandlasten berekenen

De maandlasten voor je woning bestaan uit meer dan alleen de hypotheeklasten. Hieronder vind je een overzicht van de bijkomende kosten en lasten. Zo weet je precies wat je huis per maand gaat kosten. En met de handige vergelijkers kun je ook nog eens snel de beste deals sluiten!

  • Kaart
  • Streetview