Verkocht OV

Alberdingk Thijmstraat 282 1054 AK Amsterdam

57m2
Wonen
3
Kamers
65m2
Perceel
1897
Bouwjaar
DOOR DE ENORME BELANGSTELLING ZIJN ALLE BEZICHTIGINGEN VOLGEBOEKT. JE KUNT JE AANMELDEN VOOR DE WACHTLIJST. MAKELAARS KUNNEN NOG CONTACT OPNEMEN.

VOLLEDIG GERENOVEERD EN KARAKTERVOL DRIEKAMERAPPARTEMENT MET ENSUITE DEUREN EN TWEE BALKONS OP EIGEN GROND IN OUD-WEST

*** English below***

Aan een rustige straat in de geliefde Helmersbuurt ligt dit volledig gerenoveerde driekamerappartement van ruim 57 m2, gelegen op eigen grond. De woning bevindt zich op de tweede verdieping van een karakteristiek pand en combineert authentieke charme met hedendaags comfort. De hoge plafonds (ca. 3 meter) met prachtige ornamenten, sierlijsten op de wanden en de originele ensuite deuren geven het appartement een klassieke, elegante uitstraling. Tegelijkertijd zijn de keuken, badkamer en CV-ketel recent vernieuwd en is de woning volledig geschilderd. Ook het trappenhuis is onlangs gerenoveerd met nieuw schilderwerk en nieuwe vloerbedekking, het geheel voelt verzorgd en instapklaar. Met twee balkons en een prachtige lichtinval aan voor- én achterzijde woon je hier op steenworp afstand van het Vondelpark, de De Hallen en het Leidseplein. Een zeldzame combinatie van sfeer, kwaliteit en locatie.

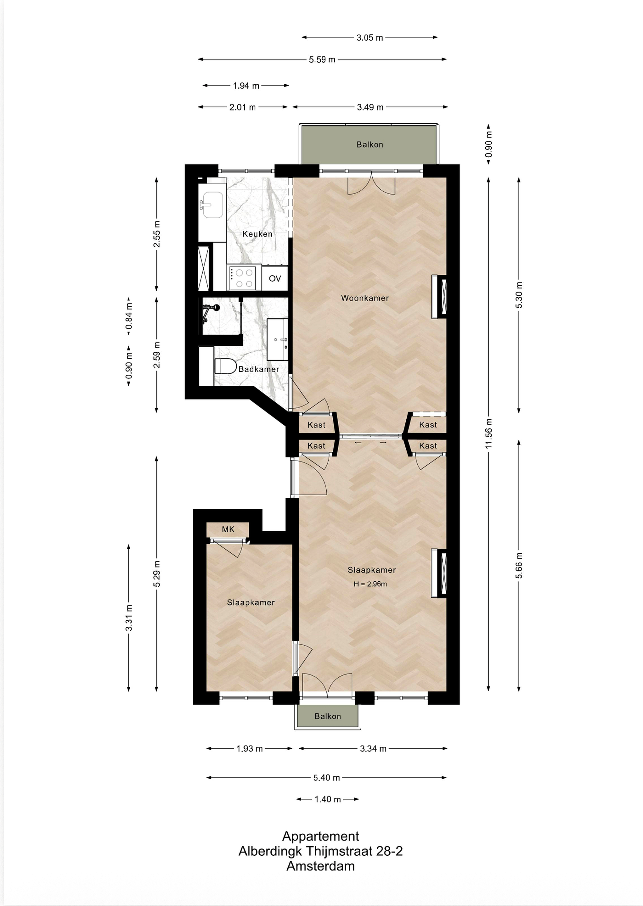
INDELING
Via het vernieuwde gemeenschappelijke trappenhuis bereik je de woning op de tweede verdieping. Je komt direct binnen in de leefruimte die open en royaal aanvoelt.

De woonkamer ligt aan de achterzijde en heeft openslaande deuren naar het zonnige balkon op het zuidwesten. Het daglicht valt hier rijkelijk naar binnen en benadrukt de fraaie plafondhoogte en de sierlijke ornamenten. De karakteristieke ensuite deuren vormen het stijlvolle middelpunt van de woning en verbinden de woonruimte met de slaapkamer aan de voorzijde. Ze geven flexibiliteit én versterken het authentieke karakter van het appartement. Open voor een ruimtelijk effect, gesloten voor privacy — precies zoals je het wilt.

De halfopen keuken is recent volledig vernieuwd en uitgevoerd in een moderne en rustige stijl. Voorzien van diverse inbouwapparatuur, waaronder een elektrische kookplaat, oven, afzuigkap, koelkast, vaatwasser, wasmachine en Quooker. Praktisch ingedeeld en naadloos passend bij de uitstraling van de woning. De badkamer is eveneens recent vernieuwd en centraal gelegen. Uitgevoerd met een inloopdouche, toilet en wastafel. Fris, comfortabel en eigentijds afgewerkt.

Aan de voorzijde bevindt zich de ruime slaapkamer met openslaande deuren naar het Franse balkon. Hier geniet je van het zachte ochtendlicht en de indrukwekkende plafondhoogte van circa drie meter, verrijkt met authentieke ornamenten en sierlijsten. Aangrenzend ligt de tweede kamer, momenteel ingericht als kledingkamer. Deze ruimte beschikt over een op maat gemaakte inbouwkast, waardoor elke centimeter optimaal benut wordt. Uiteraard is deze kamer ook perfect geschikt als werkkamer of logeerruimte.

BUITENRUIMTE
Aan de achterzijde ligt het zonnige balkon op het zuidwesten, waar je tot in de avond kunt genieten van de zon. Aan de voorzijde zorgt het Franse balkon voor charmant straatcontact en ochtendlicht. Altijd een plek in de zon, altijd verbinding met buiten.

EIGEN GROND
De woning is gelegen op eigen grond. Geen erfpacht — een belangrijk pluspunt in Amsterdam.

VERENIGING VAN EIGENAREN (VvE)
De Vereniging van Eigenaren wordt professioneel beheerd door Het Nieuwe VvE Beheer. Er is een MJOP en de maandelijkse servicekosten bedragen € 250,-.

DUURZAAMHEID & ENERGIELABEL
De woning is grotendeels voorzien van dubbel glas en heeft energielabel C.

DE BUURT
De Alberdingk Thijmstraat is een rustige straat in de populaire Helmersbuurt in Oud-West. Om de hoek vind je de Bosboom Toussaintstraat en de Overtoom, met een ruim aanbod aan winkels, cafés en restaurants. Binnen enkele minuten wandel je het Vondelpark in voor een rondje hardlopen of een picknick. De Hallen en het Leidseplein liggen op loopafstand. Hier woon je rustig, maar midden in het stadsleven.

BEREIKBAARHEID & PARKEREN
Het appartement is verrassend goed bereikbaar. Op loopafstand bevinden zich diverse tram- en bushaltes aan de Overtoom en het Leidseplein, waarmee je in korte tijd het centrum, Station Lelylaan of Station Zuid bereikt. Ook met de fiets ben je binnen enkele minuten in de grachtengordel of richting het Museumkwartier. Met de auto is de Ring A10 binnen circa 10 minuten bereikbaar via de Overtoom of de Stadhouderskade. Parkeren is mogelijk via een parkeervergunning (vergunningsgebied Oud-West). Daarnaast zijn er in de directe omgeving parkeergarages beschikbaar, waaronder bij De Hallen en het Byzantium.

BIJZONDERHEDEN
- Woonoppervlakte ruim 57 m2 (NEN 2580 meetrapport beschikbaar)
- Gelegen op eigen grond (géén erfpacht)
- Energielabel C
- Volledig gerenoveerd met nieuwe keuken, badkamer én CV-ketel
- Plafondhoogte ca. 3 meter met authentieke ornamenten, sierlijsten op wanden
- Karakteristieke ensuite deuren
- Zonnig balkon op het zuidwesten, Frans balkon aan de voorzijde
- Op maat gemaakte inbouwkast in tweede kamer
- Vernieuwd trappenhuis met nieuw schilderwerk en vloerbedekking
- VvE wordt professioneel beheerd. Servicekosten € 250,- per maand.
- MJOP aanwezig
- Levering vóór 13 april
- Projectnotaris: Eekhoffcs Notariaat te Amsterdam

Dit is zo’n appartement waar oud en nieuw elkaar perfect vinden. Karakter, licht, buitenruimte en volledig instapklaar — op eigen grond, in een van de meest geliefde buurten van Amsterdam.

Kom deze woning zelf ervaren!
Wonen in het geliefde Oud-West met karakter, hoge plafonds, twee balkons én op eigen grond? Dan is dit jouw kans. Plan vandaag nog een bezichtiging en ervaar zelf de sfeer, het licht en de verfijnde afwerking van dit prachtige appartement aan de Alberdingk Thijmstraat 28-2. Lengers Housing heet je van harte welkom en laat je graag tijdens een persoonlijke rondleiding alle details en mogelijkheden van deze instapklare woning zien.

Belangrijke informatie
De woning is ingemeten conform NEN 2580. De meetinstructie is bedoeld om een indicatie van de gebruiksoppervlakte te geven, maar sluit meetverschillen niet uit. Deze informatie is met grote zorg samengesteld. Toch kunnen er geen rechten aan worden ontleend. We raden kopers aan zelf onderzoek te doen naar alle voor hen relevante zaken. Ons kantoor vertegenwoordigt de verkoper, en voor een soepel aankoopproces adviseren wij om een Vastgoed Ned-makelaar in te schakelen. De Algemene Consumentenvoorwaarden van de Vastgoed Ned zijn van toepassing.

------------------------------------

DUE TO THE HUGE INTEREST, ALL VIEWINGS ARE FULLY BOOKED. YOU CAN JOIN THE WAITING LIST. REAL ESTATE AGENTS CAN STILL CONTACT US.

FULLY RENOVATED AND CHARACTERFUL TWO-BEDROOM APARTMENT WITH ENSUITE DOORS AND TWO BALCONIES ON OWN GROUND IN OUD-WEST

Situated on a quiet street in the highly sought-after Helmersbuurt, this fully renovated two-bedroom apartment of over 57 m2 is located on own ground. The property is positioned on the second floor of a characteristic building and perfectly combines authentic charm with contemporary comfort. The high ceilings (approx. 3 meters) with beautiful ornamental detailing, decorative wall mouldings, and original ensuite doors give the apartment a classic and elegant appearance. At the same time, the kitchen, bathroom, and central heating boiler have all been recently renewed, and the entire apartment has been freshly painted. The communal staircase has also been recently renovated with new paintwork and carpeting — the overall feel is well-maintained and move-in ready. With two balconies and beautiful natural light at both the front and rear, you live here just steps away from the Vondelpark, De Hallen, and Leidseplein. A rare combination of atmosphere, quality, and location.


LAYOUT
Via the renovated communal staircase, you reach the apartment on the second floor. You enter directly into the living area which creates an open and spacious feel.

The living room is located at the rear and features French doors opening onto the sunny southwest-facing balcony. Natural daylight pours in abundantly, highlighting the impressive ceiling height and elegant ornamental details. The characteristic ensuite doors form the stylish centerpiece of the home and connect the living area to the front bedroom. They offer flexibility while enhancing the authentic character of the apartment. Open them for a spacious effect, close them for privacy — exactly as you prefer.

The semi-open kitchen has been recently fully renovated and is designed in a calm and modern style. It is equipped with various built-in appliances, including an electric cooktop, oven, extractor hood, refrigerator, dishwasher, washing machine, and Quooker. Practical in layout and seamlessly aligned with the apartment’s overall aesthetic. The bathroom has also been recently renovated and is centrally located. It features a walk-in shower, toilet, and washbasin. Fresh, comfortable, and finished in a contemporary style.

At the front of the apartment is the spacious primary bedroom with French doors opening onto a charming French balcony. Here you can enjoy soft morning light and the impressive ceiling height of approximately three meters, enriched with authentic ornaments and decorative mouldings. Adjacent is the second room, currently used as a walk-in wardrobe. This space features a custom-built fitted wardrobe, making optimal use of every centimeter. Naturally, this room is also perfectly suitable as a home office or guest room.

OUTDOOR SPACE
At the rear, the sunny southwest-facing balcony allows you to enjoy the sun well into the evening. At the front, the French balcony provides charming street contact and morning light. Always a spot in the sun, always connected to the outdoors.

FREEHOLD PROPERTY
The apartment is situated on own ground— a significant advantage in Amsterdam.

HOMEOWNERS’ ASSOCIATION (VvE)
The Homeowners’ Association is professionally managed by Het Nieuwe VvE Beheer. A long-term maintenance plan (MJOP) is in place, and the monthly service charges amount to €250.

SUSTAINABILITY & ENERGYLABEL
The apartment is largely fitted with double glazing and has energylabel C.

THE NEIGHBOURHOOD
Alberdingk Thijmstraat is a quiet street in the popular Helmersbuurt in Oud-West. Around the corner you will find Bosboom Toussaintstraat and Overtoom, offering a wide variety of shops, cafés, and restaurants. Within minutes, you can walk into Vondelpark for a run or a picnic. De Hallen and Leidseplein are within walking distance. Here, you live peacefully while being in the heart of city life.

ACCESSIBILITY & PARKING
The apartment is surprisingly well connected. Several tram and bus stops are within walking distance along Overtoom and Leidseplein, providing quick access to the city center, Lelylaan Station, or Zuid Station. By bicycle, you can reach the canal belt or the Museum Quarter within minutes. By car, the A10 ring road can be reached in approximately 10 minutes via Overtoom or Stadhouderskade. Parking is available through a residential parking permit (permit area Oud-West). In addition, several parking garages are located nearby, including those at De Hallen and the Byzantium.

KEY FEATURES
- Living area over 57 m2 (NEN 2580 measurement report available)
- Situated on freehold land (no ground lease)
- Energylabel C
- Fully renovated, including new kitchen, bathroom, and central heating boiler
- Ceiling height approx. 3 meters with authentic ornaments and decorative mouldings
- Characteristic ensuite doors
- Sunny southwest-facing balcony and French balcony at the front
- Custom-built fitted wardrobe in the second room
- Renovated communal staircase with new paintwork and carpeting
- Professionally managed Homeowners’ Association
- Monthly service charges €250
- Long-term maintenance plan (MJOP) in place
- Transfer before 13 April
- Project notary: Eekhoffcs Notariaat, Amsterdam

This is one of those apartments where old and new come together perfectly. Character, light, outdoor space, and completely move-in ready — on freehold land, in one of Amsterdam’s most beloved neighborhoods.

Experience This Home Yourself
Living in sought-after Oud-West with character, high ceilings, two balconies, and on freehold land? This is your opportunity. Schedule a viewing today and experience the atmosphere, light, and refined finishing of this beautiful apartment at Alberdingk Thijmstraat 28-2. Lengers Housing warmly welcomes you and will gladly show you all the details and possibilities of this move-in-ready home during a personal viewing.

Important information
The property has been measured in accordance with NEN 2580 guidelines. The measurement instruction is intended to provide an indication of the usable floor area but does not exclude discrepancies. This information has been compiled with great care; however, no rights can be derived from it. Buyers are advised to conduct their own investigation into all matters relevant to them. Our office represents the seller. For a smooth purchase process, we recommend engaging a Vastgoed Ned real estate agent. The General Consumer Conditions of Vastgoed Ned apply.

Lees meer

Kenmerken

Overdracht

Prijs per m2
€ 10.439
Aangeboden sinds
17 februari 2026
Status
Verkocht onder voorbehoud
Aanvaarding
In overleg

Bouw

Soort appartement
Bovenwoning, appartement
Soort bouw
Bestaande bouw
Bouwjaar
1897
Soort dak
Plat dak
Staat van onderhouden binnen
Uitstekend
Staat van onderhouden buiten
Goed

Oppervlakte en inhoud

Inhoud van de woning
209 m3
Oppervlakte gebouwgebonden buitenruimten
3 m2

Indeling

Aantal kamers
3
Aantal slaapkamers
2
Aantal woonlagen
1
Voorzieningen
Vve checklist, balkon, kabel-tv, glasvezel

Buitenruimte

Balkon
Ja
Schuur/berging
Nee

Maandlasten berekenen

De maandlasten voor je woning bestaan uit meer dan alleen de hypotheeklasten. Hieronder vind je een overzicht van de bijkomende kosten en lasten. Zo weet je precies wat je huis per maand gaat kosten. En met de handige vergelijkers kun je ook nog eens snel de beste deals sluiten!

  • Kaart
  • Streetview