Verkocht

Verheijstraat 39 3131 DP Vlaardingen

52m2
Wonen
2
Kamers
0m2
Perceel
1934
Bouwjaar
Starters opgelet! Direct te betrekken 2-kamer parterrewoning met zonnige tuin op het zuiden.

Deze woning bevindt zich in de gewilde woonwijk 'Vettenoordse Polder' nabij het gezellige stadshart van Vlaardingen. In de buurt vind je scholen, openbaar vervoer waaronder NS-station Vlaardingen-Centrum en de uitvalswegen naar de A20 en A4.

Dit lichte appartement beschikt o.a. over een tuingerichte woonkamer, een moderne halfopen keuken, praktische badkamer met ligbad, wastafelmeubel en toilet, en aan de voorzijde een slaapkamer van goed formaat. Het gehele appartement is voorzien van houten kozijnen met dubbel glas.

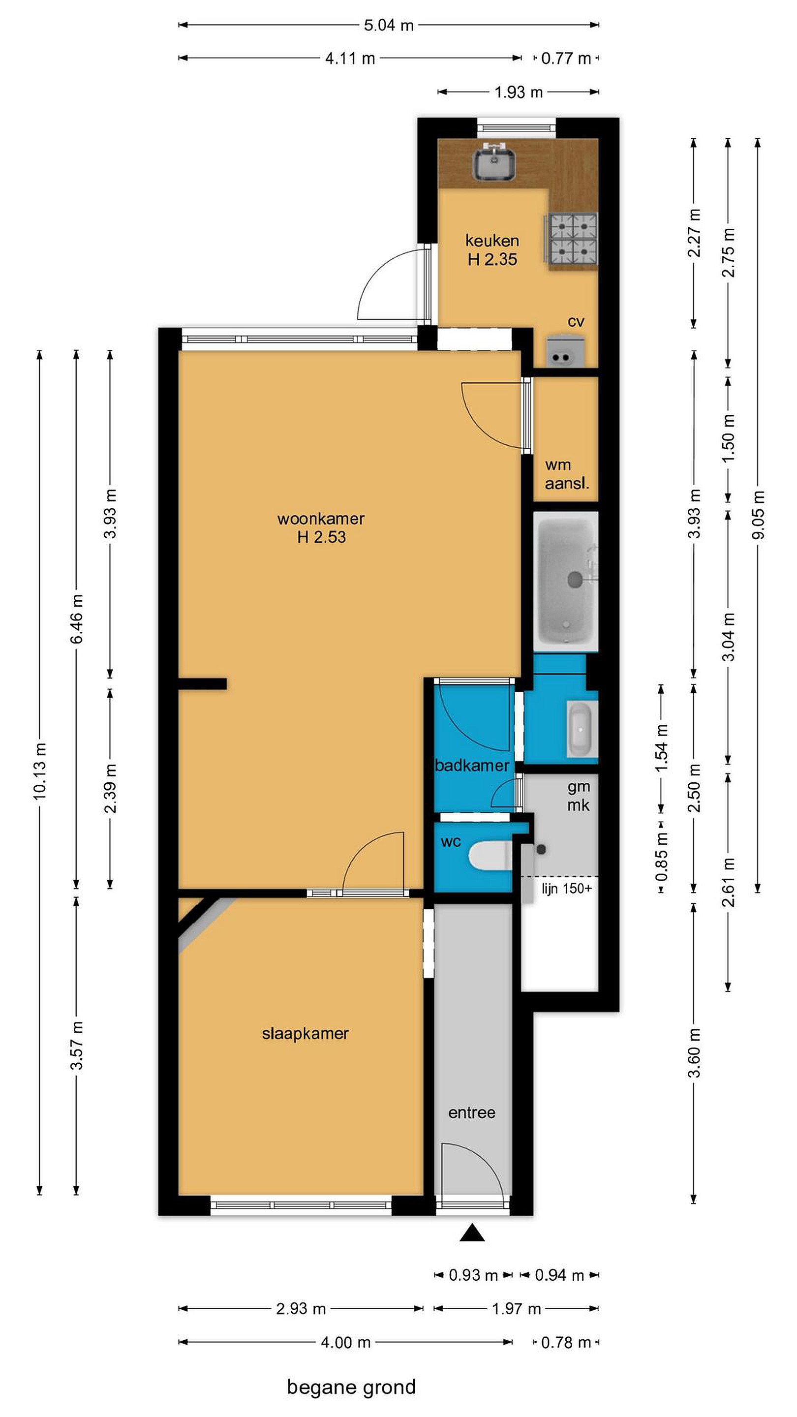
Voor de exacte indeling verwijzen wij je graag door naar de plattegrond achter de fotoreportage.

Indeling:

Entree woning, voorportaal, hal en toegang tot de voorgelegen slaapkamer.

Vanuit deze kamer toegang tot de achtergelegen woonkamer met verlaagd plafond en inbouwspots.

Deze tuingerichte woon-/eetkamer heeft een half open keuken met de volgende apparatuur: 4 -pits gasfornuis met oven, smalle vaatwasser en een afzuigkap.

De Cv-ketel hangt in de keuken; aansluiting voor wasmachine vind je in een kast in de woonkamer.

De badkamer is voorzien van een ligbad, toilet en wastafelmeubel.

Achtertuin met grote houten schuur en achteruitgang. De bovenburen hebben recht van overpad over de achterste strook van de tuin om bij hun berging te kunnen komen.

Bijzonderheden:
- Bouwjaar 1934
- Eigen grond
- Gebruiksoppervlakte wonen ca. 52 m2
- Dubbele beglazing met houten kozijnen
- Remeha CR Tzerra cv combiketel uit 2018
- Achtertuin gelegen op het zuiden
- Vrijstaande houten schuur aanwezig
- Actieve VvE, periodieke bijdrage € 100,00 per maand
- Vrij parkeren
- i.v.m. het bouwjaar van de woning zal, ongeacht de kwaliteit, de ouderdoms-/asbestclausule worden opgenomen in de koopakte
- Notariskeuze voorbehouden aan koper, echter binnen de regio
- Gewenste opleverdatum: kan spoedig

De vermelde informatie is van algemene aard en is niet meer dan een uitnodiging om de woning te bezichtigen of om in onderhandeling te treden. Hoewel deze tekst en plattegrond met zorg zijn samengesteld zijn wij niet aansprakelijk voor eventuele onjuistheden. De toegepaste Meetinstructie sluit verschillen in meetuitkomsten niet volledig uit, door bijvoorbeeld interpretatieverschillen, afrondingen of beperkingen bij het uitvoeren van de meting. Aan de inhoud van deze informatie kunnen geen rechten worden ontleend.

Lees meer

Verkoopgeschiedenis

Aangeboden sinds
6 maart 2026
Verkoopdatum
21 mei 2026
Looptijd
2 maanden

Kenmerken

Overdracht

Prijs per m2
€ 4.808
Aangeboden sinds
6 maart 2026
Status
Verkocht
Aanvaarding
In overleg

Bouw

Soort appartement
Benedenwoning, appartement
Soort bouw
Bestaande bouw
Bouwjaar
1934
Soort dak
Zadeldak
Staat van onderhouden binnen
Goed
Staat van onderhouden buiten
Goed

Oppervlakte en inhoud

Inhoud van de woning
162 m3
Oppervlakte externe bergruimte
7 m2

Indeling

Aantal kamers
2
Aantal slaapkamers
1
Aantal woonlagen
1
Voorzieningen
Vve checklist, tuin, schuur/berging

Buitenruimte

Balkon
Nee
Schuur/berging
Ja

Maandlasten berekenen

De maandlasten voor je woning bestaan uit meer dan alleen de hypotheeklasten. Hieronder vind je een overzicht van de bijkomende kosten en lasten. Zo weet je precies wat je huis per maand gaat kosten. En met de handige vergelijkers kun je ook nog eens snel de beste deals sluiten!

  • Kaart
  • Streetview