Hoogstraat 206b 3131 BR Vlaardingen

95m2
Wonen
2
Kamers
0m2
Perceel
2019
Bouwjaar
KOPERS OPGELET! | 2/3 KAMER APPARTEMENT | KINDVRIENDELIJKE WOONWIJK | CA 95 M2 | CENTRUM VLAARDINGEN| ENERGIELABEL A | OPLEVERING Z.S.M.

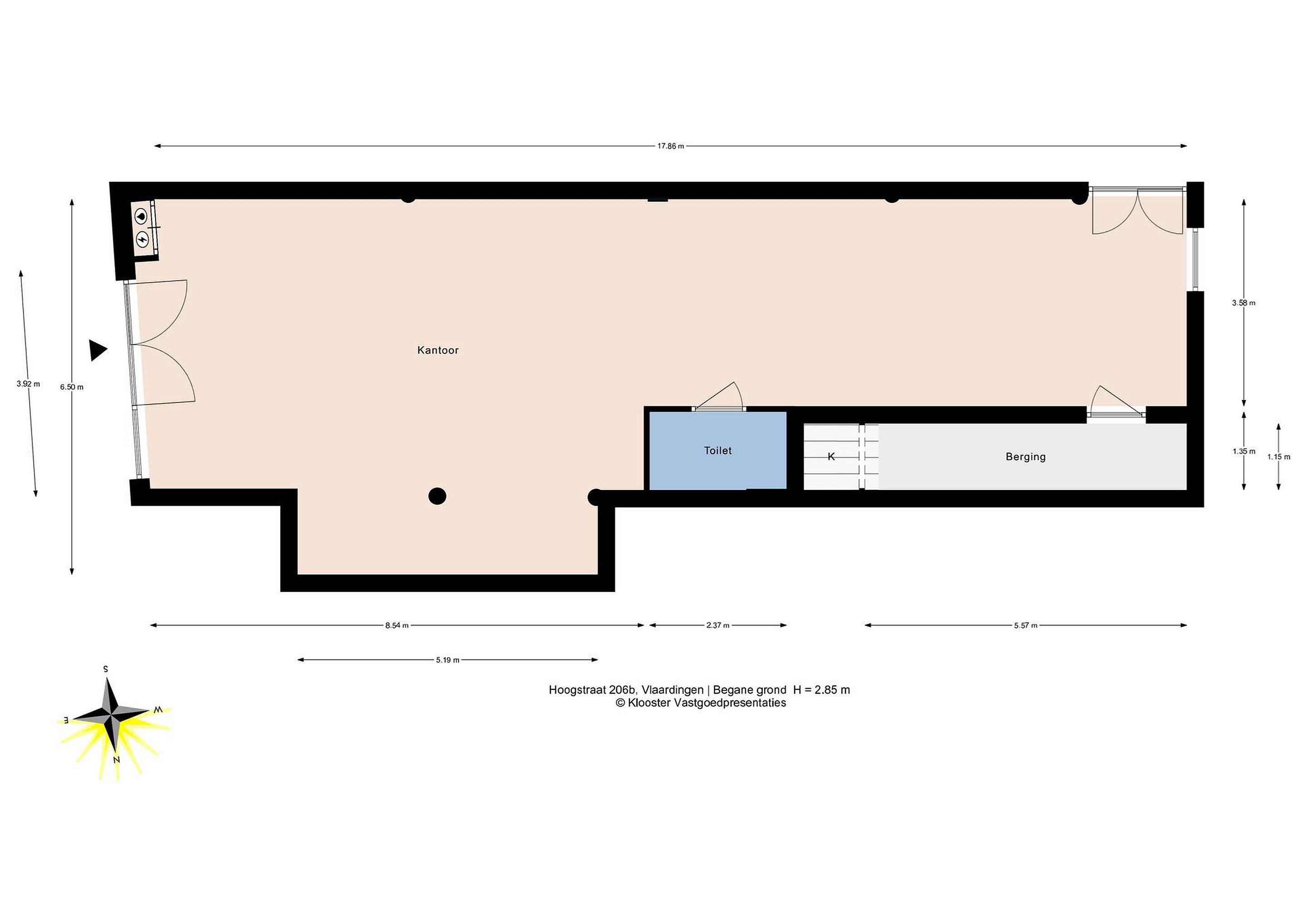
We hebben er weer een, met trots bieden we dit pareltje in Vlaardingen aan op de Hoogstraat 206B. Direct leverbaar als horeca-/winkelruimte en kan ook woning in gebruik genomen worden. De horeca-/winkelruimte heeft een oppervlakte van circa 95m2. Het pand is gebouwd in 2019 en recent intern afgewerkt en ingericht. Diverse voorbereidingen en voorzieningen ten behoeve van een horeca gelegenheid (categorie 1) zijn aanwezig. Deze ruimte beschikt over een energielabel A en dus lage maandelijkse kosten.
De drie impressiefoto’s geven een inspirerend beeld van hoe dit pand kan worden getransformeerd tot een moderne, strakke woning. De solide basis is reeds aanwezig, wat volop mogelijkheden biedt voor een stijlvolle woning/winkel.

De ligging van dit heerlijk woon-werkhuis is perfect voor iedereen die graag in het centrum zou willen wonen of werken. Door deze centrale ligging is een divers winkelaanbod, zijn diverse cafeetjes en restaurantjes om de hoek gelegen. Tevens beschikt de woning in de directe omgeving over zowel het openbaar vervoer als uitvalswegen richting de A20 en A4. Indien u even helemaal tot rust wilt komen dan ligt natuurgebied de Broekpolder eveneens op korte afstand, waar u gebruik kunt maken van diverse wandel- en fietsroutes.

Bijzonderheden
- Deels laminaat vloer en deels plavuizen vloer;
- Bouwjaar: 2019;
- Ca. 95m2;
- Energielabel A;
- Eigen grond;
- Zeer centraal gelegen;
- Overdracht voorkeur z.s.m.

Bestemming:
- ambachtelijke bedrijvigheid (dit kan omgezet naar woonbestemming);
- detailhandel, met uitzondering van supermarkten en volumineuze detailhandel;
- dienstverlening;
- horeca tot en met categorie 1 van de bij deze regels behorende Staat van horeca-activiteiten;
- kantoren met baliefunctie;
- maatschappelijke voorzieningen;
- wonen;
Lees meer

Kenmerken

Overdracht

Prijs per m2
€ 2.937
Aangeboden sinds
10 september 2025
Status
Beschikbaar
Aanvaarding
Direct

Bouw

Soort appartement
Benedenwoning, appartement
Soort bouw
Bestaande bouw
Bouwjaar
2019
Soort dak
Plat dak
Staat van onderhouden binnen
Uitstekend
Staat van onderhouden buiten
Uitstekend

Oppervlakte en inhoud

Indeling

Aantal kamers
2
Aantal slaapkamers
1
Aantal woonlagen
1
Voorzieningen
Vve checklist

Buitenruimte

Balkon
Nee
Schuur/berging
Nee

Maandlasten berekenen

De maandlasten voor je woning bestaan uit meer dan alleen de hypotheeklasten. Hieronder vind je een overzicht van de bijkomende kosten en lasten. Zo weet je precies wat je huis per maand gaat kosten. En met de handige vergelijkers kun je ook nog eens snel de beste deals sluiten!

  • Kaart
  • Streetview