Oranjelaan 1 6301 GW Valkenburg

70m2
Wonen
2
Kamers
0m2
Perceel
1991
Bouwjaar
DEZE WONING WORDT AANGEBODEN DOOR POOTERS MAKELAARDIJ
Dit voormalige bankgebouw is het afgelopen jaar volledig getransformeerd naar kleinschalig appartementencomplex. Dit appartement bevindt zich op de begane grond met ca.70m2 gebruiksoppervlakte wonen en beschikt over een royale open keuken met living, badkamer, berging en 1 slaapkamer. Dit appartement is reeds voorzien van een compleet afgewerkte badkamer. De overige ruimtes bieden nog alle vrijheid om naar eigen smaak en stijl ingericht te worden. Denk dan aan het kiezen van je eigen keuken, vloerafwerking en wandkleuren. Aan de voorzijde van het appartement is nog een terras, hier wordt nog een afscheiding gerealiseerd. Ook beschikt dit appartement over een privéparkeerplaats en gezamenlijke fietsenberging.

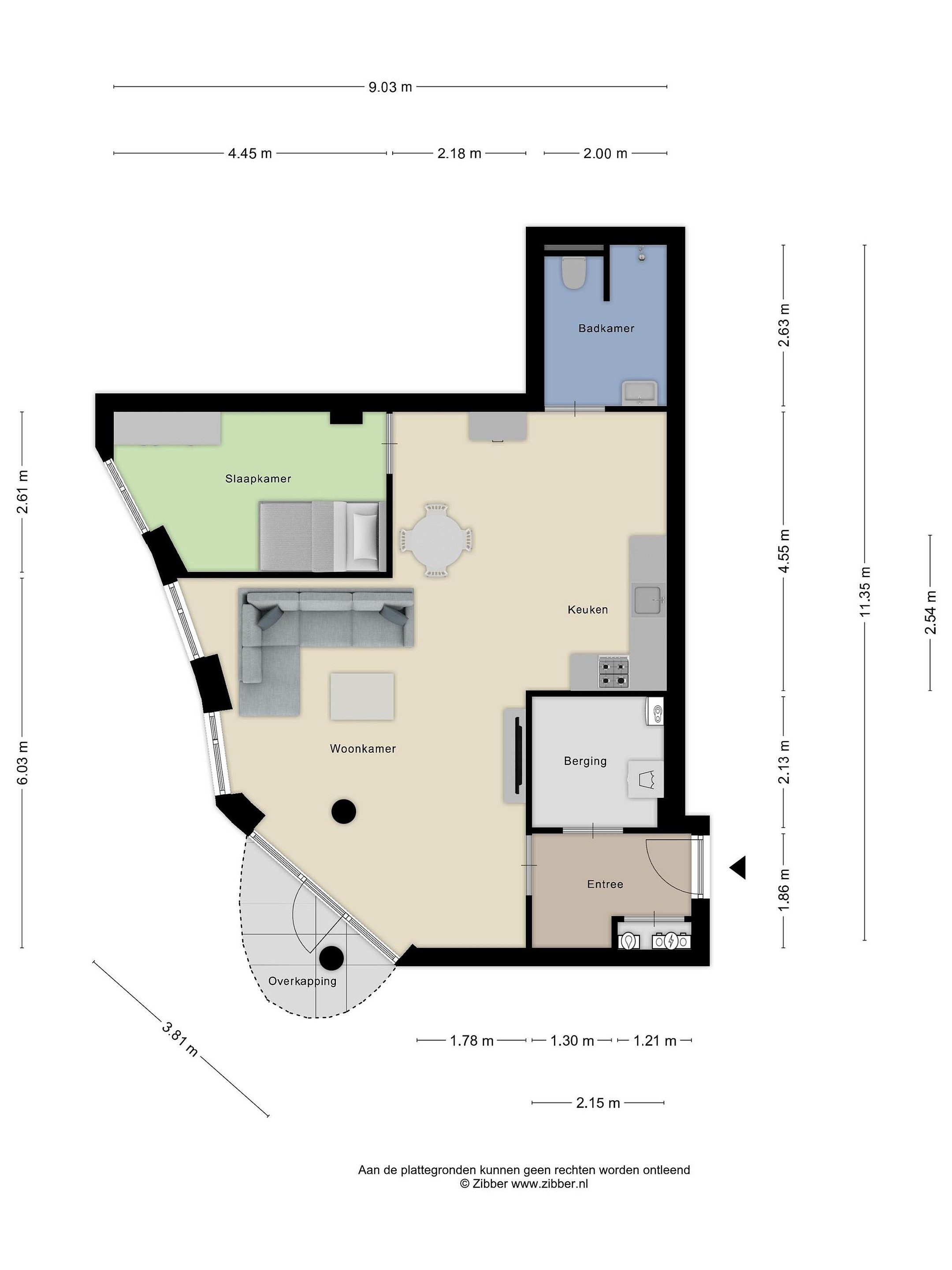
Indeling:
Centrale inkom met brievenbussen. Aan de linkerzijde van de entree bevindt zich de voordeur van Oranjelaan 1. Hal (ca.4m2) die toegang biedt tot de berging, living en de overige ruimtes. De meterkast bevindt zich in de hal en beschikt over een 3 fase aansluiting. Aan de rechterzijde gelegen de royale berging (ca.4m2), hier bevinden zich de cv-ketel, mechanische ventilatie en de wasmachine aansluiting. Vanuit de living met open keuken (ca.43m2) heeft men toegang tot alle overige ruimtes. Aan de linkerzijde van het woongedeelte ligt de slaapkamer (ca.10m2) Ernaast bevindt zich de geheel betegelde badkamer (ca.5m2) die beschikt over een inloopdouche, zwevend toilet en wastafel.

Vanuit de Oranjelaan heeft men via de poort toegang tot de achtergelegen parkeerplaatsen, hier heeft men een vaste parkeerplek. De centrale hal is ook via de achterzijde van het complex (parkeerplaatsen) bereikbaar.

Extra informatie:
- Gezamenlijke fietsenberging;
- Vaste parkeerplaats buiten op afgesloten terrein;
- Meterkast, 3 fase aansluiting;
- Nefit cv-ketel, eigendom, bouwjaar 2024;
- Aluminiumkozijnen met HR++ beglazing;
- Mechanische ventilatie;
- Energielabel A, geldig tot 24-04-2034:
- Bij overdracht notaris wordt er €5000,- in mindering gebracht i.v.m. aanschaf keuken;

De Oranjelaan gelegen in het bruisende centrum van Valkenburg aan de Geul op loopafstand van winkels, restaurants, terrassen en het NS-station. Op korte afstand van natuur voor wandel- en fietsuitstapjes. Op korte afstand van de uitvalswegen richting Maastricht, Heerlen en Eindhoven.

Ter bescherming van de belangen van zowel koper als verkoper, wordt uitdrukkelijk gesteld dat een koopovereenkomst met betrekking tot deze onroerende zaak eerst dan tot stand komt nadat koper en verkoper de koopovereenkomst hebben getekend ("schriftelijkheidsvereiste").De termijn die wordt opgenomen voor eventuele (overeengekomen) ontbindende voorwaarden (bv. Financiering) is in de regel 4 tot 6 weken na het sluiten van de mondelinge wilsovereenkomst.

De waarborgsom/bankgarantie is 10% van de koopsom. De koper dient deze 2 weken ná het vervallen van de ontbindende voorwaarden bij de desbetreffende notaris te deponeren.
Koper is te allen tijde gerechtigd voor eigen rekening een bouwkundige keuring te (laten) verrichten dan wel andere adviseurs te raadplegen teneinde een goed inzicht te verkrijgen over de staat van onderhoud.

Bovenstaande vrijblijvende informatie is door Pooters Makelaardij met de nodige zorgvuldigheid samengesteld. Echter aanvaardt Pooters Makelaardij geen enkele aansprakelijkheid voor enige onvolledigheid, onjuistheid of anderszins, dan wel de gevolgen daarvan. Oppervlakten en maten zijn indicatief.
Lees meer

Kenmerken

Overdracht

Prijs per m2
€ 4.214
Aangeboden sinds
7 oktober 2025
Status
Beschikbaar
Aanvaarding
In overleg

Bouw

Soort appartement
Benedenwoning, appartement
Soort bouw
Bestaande bouw
Bouwjaar
1991
Soort dak
Plat dak
Staat van onderhouden binnen
Goed
Staat van onderhouden buiten
Goed

Oppervlakte en inhoud

Inhoud van de woning
233 m3
Oppervlakte gebouwgebonden buitenruimten
4 m2

Indeling

Aantal kamers
2
Aantal slaapkamers
1
Aantal woonlagen
1
Voorzieningen
Ventilatie

Buitenruimte

Balkon
Nee
Schuur/berging
Nee

Maandlasten berekenen

De maandlasten voor je woning bestaan uit meer dan alleen de hypotheeklasten. Hieronder vind je een overzicht van de bijkomende kosten en lasten. Zo weet je precies wat je huis per maand gaat kosten. En met de handige vergelijkers kun je ook nog eens snel de beste deals sluiten!

  • Kaart
  • Streetview