Zeedijk 2211 1154 PP Uitdam

78m2
Wonen
3
Kamers
0m2
Perceel
2016
Bouwjaar
Royaal appartement met prachtig uitzicht over de haven!

Welkom aan de Zeedijk 2-211 in Uitdam, een prachtige appartement gelegen in de haven van EuroParcs Poort van Amsterdam. Het appartement, gebouwd in 2016, biedt een woonoppervlakte van 78 m2. Met een moderne afwerking, luxe voorzieningen en een tuin met vrij uitzicht over de haven, is dit een plek waar comfort en ontspanning centraal staan.

Huidige huuropbrengst
Indien gewenst kan je nog profiteren van een zeer aantrekkelijke huuropbrengst van €18.000,- op jaarbasis en loopt t/m 21-juli-2026. Verhuur is geen verplichten.

De buurt
Uitdam is een pittoresk dorpje, gelegen aan het Markermeer en op korte afstand van Amsterdam. Deze woning bevindt zich op EuroParcs Poort van Amsterdam met veel groen en water. De ligging is perfect voor natuurliefhebbers en biedt een heerlijke balans tussen rust en bereikbaarheid. Voorzieningen zoals winkels, scholen en openbaar vervoer zijn binnen handbereik, terwijl je tegelijkertijd geniet van de privacy en sereniteit van het recreëren/ wonen aan de dijk.

Begane grond
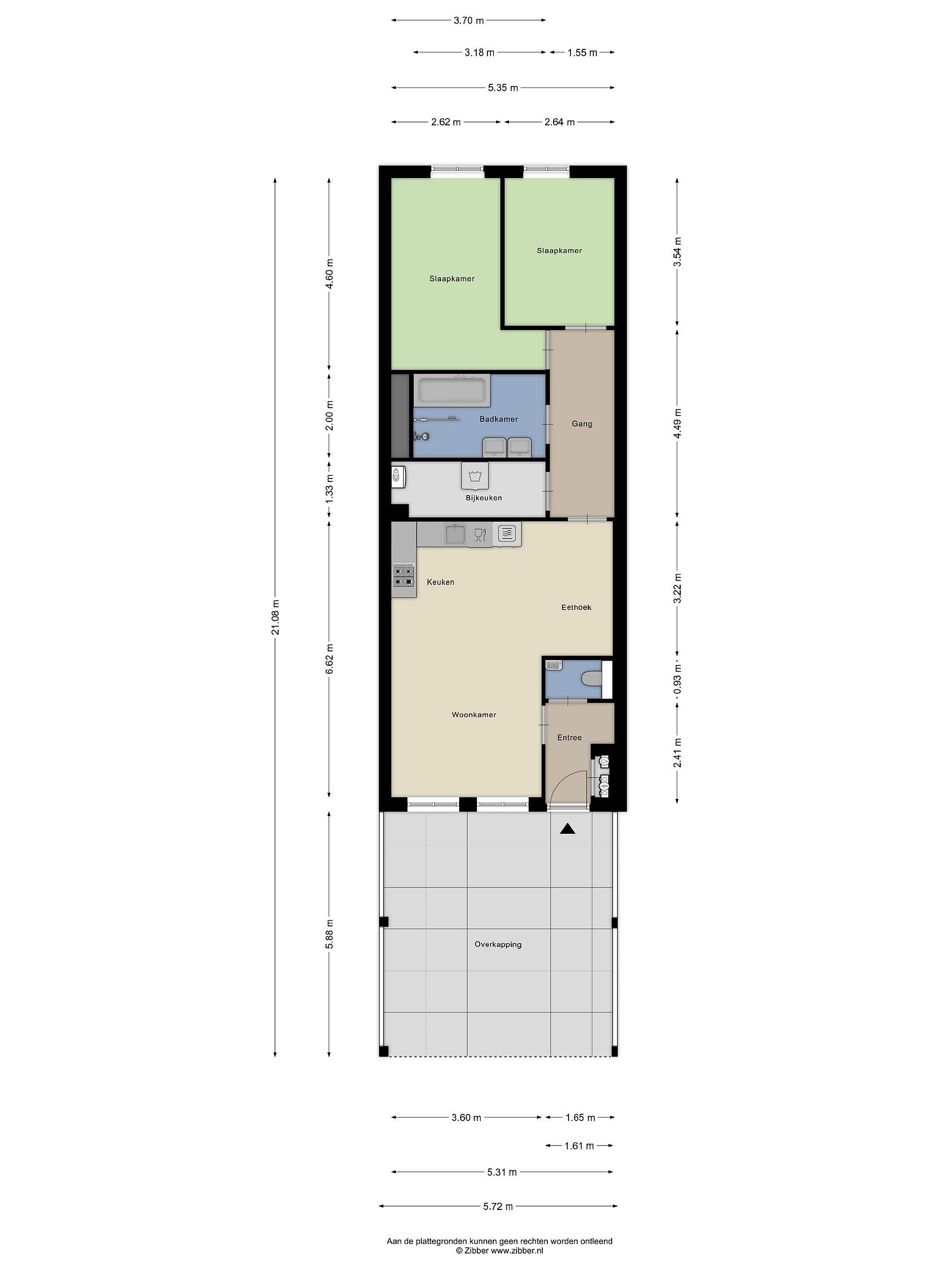
Bij binnenkomst ervaar je direct de moderne uitstraling en het lichte karakter van deze woning. De woning biedt een slimme indeling met functionele en sfeervolle ruimtes; te beginnen met een nette entree, die toegang biedt tot de meterkast, het toilet en het leefgedeelte. De royale woonkamer is voorzien van twee grote ramen en een prachtige lichtinval. Hier geniet je van een het uitzicht over haven en het water. Er is meer dan genoeg ruimte voor een sfeervolle zithoek, en een grote eethoek plaats je eenvoudig bij de open keuken.

De keuken is uitgerust met een modern hoekmeubel met hoogwaardige inbouwapparatuur, waaronder een combi-oven, gaskookplaat, afzuigkap, vaatwasser en koelkast. Het donkere natuursteen werkblad en de strakke witte kasten zorgen voor een eigentijdse uitstraling. Op de begane grond bevindt zich tevens de eerste en tweede slaapkamer, ideaal voor gasten of als werkkamer. Aangrenzend vind je een moderne badkamer met een inloopdouche, ligbad en wastafelmeubel. Ook is er een grote berging voor het opslaan van diverse spullen.

Buitenruimte
Het appartement beschikt over een groen aangelegde tuin met grote overkapping, grenzend aan de haven. Hier kun je in alle rust genieten van de buitenlucht en het schitterende uitzicht. De ruime overkapping biedt mogelijkheden voor een comfortabele lounge- of eethoek. Daarnaast is er voldoende ruimte voor groenliefhebbers om een eigen invulling te geven aan de tuin.

Bijzonderheden
- Mooi appartement op de begane grond
- Moderne afwerking en uitstekend onderhouden
- Woonoppervlakte: 78 m2
- Bouwjaar: 2016
- Royale woonkamer
- Moderne keuken met hoogwaardige apparatuur
- Twee ruime slaapkamers
- Vrij uitzicht op de haven en natuur
- Centrale ligging met goede bereikbaarheid naar Amsterdam
- Actieve VvE (€107 per maand)
- Huidige huuropbrengst €18.000 op jaarbasis. Loopt t/m 21-juli-2026 (optioneel)
- Woning kan gebruikt worden voor eigen gebruik, volledig verhuren of een combinatie van eigen gebruik en verhuur. Hier ben je als eigenaar volledig vrij in om te kiezen.

Deze woning is de perfecte keuze voor wie op zoek is naar een plek waar rust, luxe en natuur samenkomen. Maak snel een afspraak voor een bezichtiging en ervaar zelf het unieke karakter van deze woning aan de Zeedijk in Uitdam!

Interesse in deze woning? Schakel direct uw eigen VBO-aankoopmakelaar in. Uw VBO-aankoopmakelaar komt op voor úw belang en bespaart u tijd, geld en zorgen. Adressen van collega VBO-aankoopmakelaars vindt u op vbo.nl.
Lees meer

Kenmerken

Overdracht

Prijs per m2
€ 2.554
Aangeboden sinds
14 oktober 2025
Status
Beschikbaar
Aanvaarding
In overleg

Bouw

Soort appartement
Benedenwoning, appartement
Soort bouw
Bestaande bouw
Bouwjaar
2016
Soort dak
Zadeldak
Staat van onderhouden binnen
Uitstekend
Staat van onderhouden buiten
Uitstekend

Oppervlakte en inhoud

Inhoud van de woning
258 m3
Oppervlakte gebouwgebonden buitenruimten
32 m2

Indeling

Aantal kamers
3
Aantal slaapkamers
2
Aantal woonlagen
1
Voorzieningen
Tuin, ventilatie, kabel-tv

Buitenruimte

Balkon
Nee
Schuur/berging
Nee

Maandlasten berekenen

De maandlasten voor je woning bestaan uit meer dan alleen de hypotheeklasten. Hieronder vind je een overzicht van de bijkomende kosten en lasten. Zo weet je precies wat je huis per maand gaat kosten. En met de handige vergelijkers kun je ook nog eens snel de beste deals sluiten!

  • Kaart
  • Streetview