Broersveld 140B 3111 LK Schiedam

46m2
Wonen
3
Kamers
0m2
Perceel
1875
Bouwjaar
Bijzonder en uniek object in rijke eclectische trant uit het derde kwart van de 19e eeuw met winkelpui uit 1892 van architect N.H. de Roo Jr.

Het pand is een voormalige bakkerij maar heeft in de loop der jaren ook diverse gemeentelijke instanties gehuisvest. Na de laatste grondige renovatie in 2011 is een zeer karakteristiek woon-/winkelpand gerealiseerd dat thans geheel als woning in gebruik is bij de huidige eigenaar.

Hoge plafonds en ramen alsmede fraaie detailleringen van weleer en een gezellige stadstuin maken dit een uniek object!

En dan de locatie – beter kan bijna niet. Je woont hier midden in het historisch centrum van Schiedam, met leuke restaurantjes, terrasjes, winkels, het theater en de bibliotheek allemaal op loopafstand.
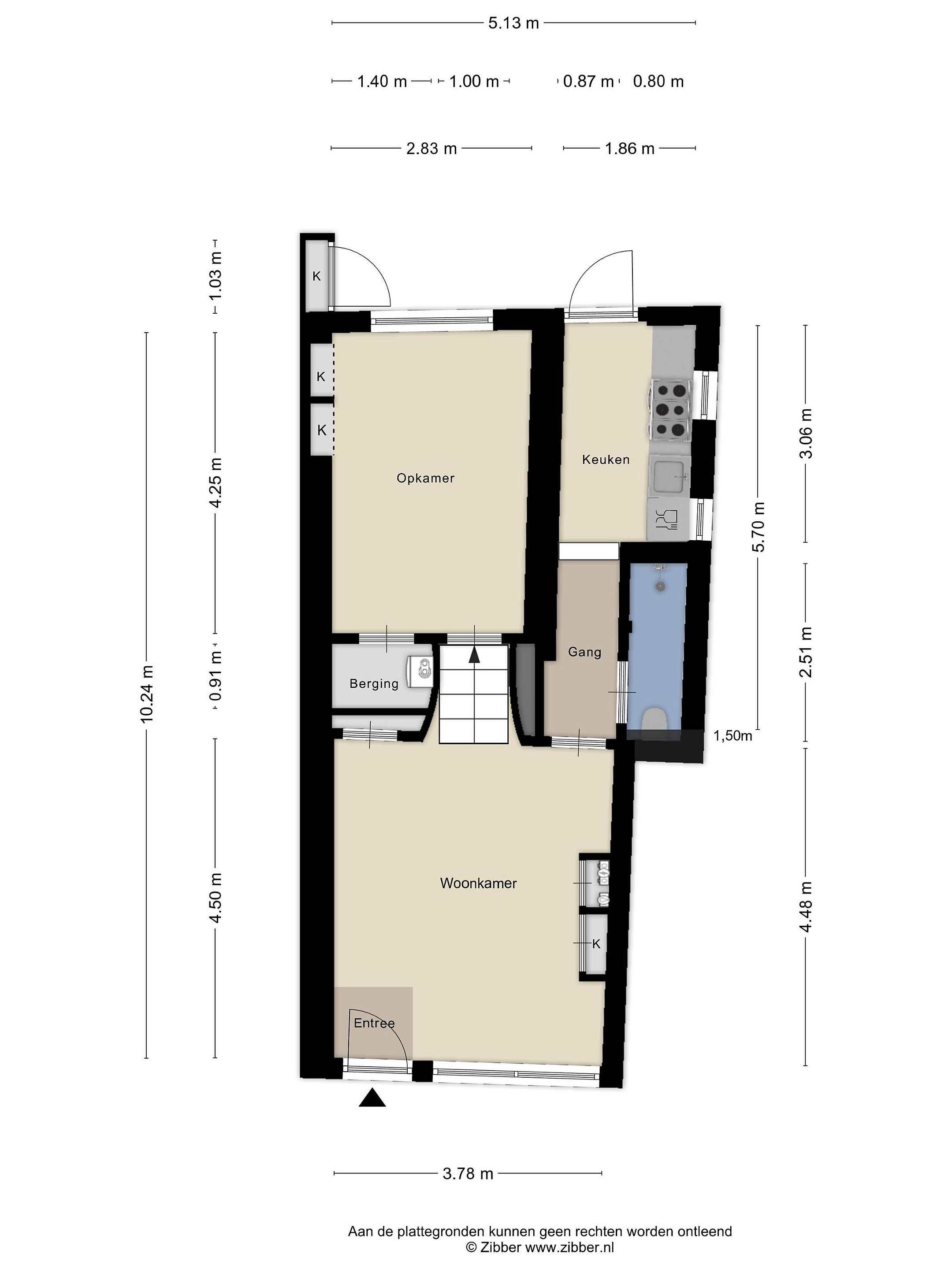
Begane grond
Bij binnenkomst sta je direct in de sfeervolle woning. Deze ruimte wordt momenteel gebruikt als eetkamer en heeft een maar liefst 4 meter hoog plafond. Er is veel licht door de hoge ramen en een leuk zicht op de gezellige en levendige winkelstraat. Via het nog originele trapje kom je in de opkamer vanwaar je uitkijkt op de achtertuin. Via een klein trapje kom je in het souterrain dat thans dient als slaapkamer. Het balkenplafond en de ramen op maaiveldniveau geven het een zeer knusse sfeer. Hier vind je ook een wastafel en de wasmachineaansluiting. Deze ruimte is niet zo hoog en daardoor bestempeld als “inpandige ruimte”. De keuken is voorzien van een nette keukeninrichting met diverse keukenapparatuur waaronder een fornuis en een vaatwasser. De badkamer is voorzien van een douche en toilet. Vanuit de keuken is er toegang tot de ommuurde en aangelegde achtertuin met een uitpad. Er is een gemeenschappelijke fietsenberging aanwezig.
Al met al een zeer bijzonder object op en toplocatie!!

Details
* de vraagprijs is een bieden vanaf prijs
* erfpacht afgekocht tot 28-6-2061
* gemeentelijk monument en beschermd stadsgezicht
* VVE bijdrage € 82,46 per maand
* totaal gebruiksoppervlak 63 m2 waarvan woonoppervlak 46m2 en inpandige ruimte 17m2
* badkamer – 2024
* keuken - 2020
* energielabel D
* CV ketel - 2023
* vloerverwarming in de badkamer
* in opdracht van verkoper is een bouwkundige keuring uitgevoerd, het rapport is ter inzage
* bij deze woning (ouder dan 30 jaar) is de ouderdomsclausule van toepassing.
* bij deze woning (gebouwd voor 1993) is de asbestclausule van toepassing.

Biedlogboek
Vanaf 1 januari 2023 zijn makelaars wettelijk verplicht een biedlogboek bij te houden bij de verkoop van bestaande woningen (en wanneer de koper en/of de verkoper een particulier is). Biedingen kunt u per die datum, en indien gewenst, nog steeds mondeling met ons bespreken maar dient u daarna digitaal aan ons te bevestigen via Eerlijk Bieden.

Toelichtingsclausule BBMI/NEN2580
De meetinstructie is gebaseerd op de BBMI/NEN2580. De meetinstructie is bedoeld om een meer eenduidige manier van meten toe te passen voor het geven van een indicatie van de gebruiksoppervlakte. De meetinstructie sluit verschillen in meetuitkomsten niet volledig uit, door bijvoorbeeld interpretatieverschillen, afrondingen of beperkingen bij het uitvoeren van de meting.

Rechtsgeldige koopovereenkomst pas ná ondertekening
Een mondelinge overeenstemming tussen de particuliere verkoper en de particuliere koper is niet rechtsgeldig. Met andere woorden: er is geen koop. Er is pas sprake van een rechtsgeldige koop als de particuliere verkoper en de particuliere koper de koopovereenkomst hebben ondertekend. Dit vloeit voort uit artikel 7:2 Burgerlijk Wetboek. Een bevestiging van de mondelinge overeenstemming per e-mail of een toegestuurd concept van de koopovereenkomst wordt overigens niet gezien als een ‘ondertekende koopovereenkomst’.

Deze informatie is met zorg samengesteld, maar voor de juistheid ervan kan door Moerman & De Jong Makelaars geen aansprakelijkheid worden aanvaard, noch kan aan de vermelde gegevens enig recht worden ontleend. Nadrukkelijk is vermeld dat deze informatieverstrekking niet als een aanbieding of offerte mag worden beschouwd.






Lees meer

Kenmerken

Overdracht

Prijs per m2
€ 6.522
Aangeboden sinds
19 maart 2026
Status
Beschikbaar
Aanvaarding
In overleg

Bouw

Soort appartement
Benedenwoning, appartement
Soort bouw
Bestaande bouw
Bouwjaar
1875
Staat van onderhouden binnen
Goed
Staat van onderhouden buiten
Goed

Oppervlakte en inhoud

Inhoud van de woning
208 m3
Oppervlakte overige inpandige ruimten
17 m2

Indeling

Aantal kamers
3
Aantal slaapkamers
1
Aantal woonlagen
1
Voorzieningen
Vve checklist, tuin

Buitenruimte

Balkon
Nee
Schuur/berging
Nee

Maandlasten berekenen

De maandlasten voor je woning bestaan uit meer dan alleen de hypotheeklasten. Hieronder vind je een overzicht van de bijkomende kosten en lasten. Zo weet je precies wat je huis per maand gaat kosten. En met de handige vergelijkers kun je ook nog eens snel de beste deals sluiten!

  • Kaart
  • Streetview