Verkocht

Bilthovenselaan 37 2574 TG 's-Gravenhage

83m2
Wonen
3
Kamers
0m2
Perceel
1926
Bouwjaar
Bent u op zoek naar een benedenwoning waarbij u enkel de dozen uit hoeft te pakken? Dan bent u hier aan het juiste adres. Deze 3/4 kamer benedenwoning is keurig verzorgd en voorzien van een moderne keuken en badkamer, 2 slaapkamers een aangebouwde serre en zonnige achtertuin!

De woning is centraal gelegen op loopafstand van het Zuiderpark en diverse winkelgelegenheden. Ook openbaar vervoer is in de direct omgeving te vinden.

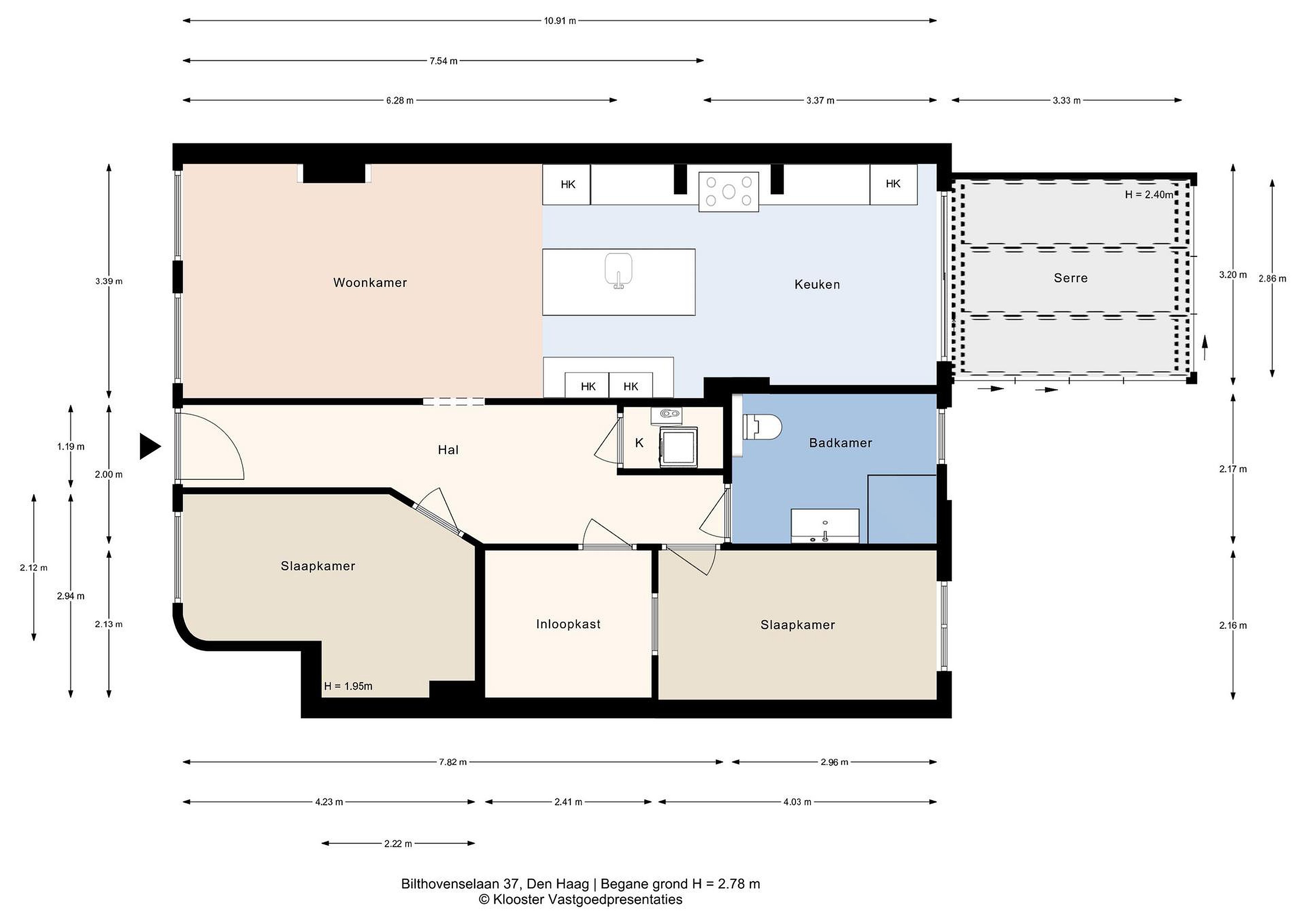
Begane grond
Entree woning, hal welke toegang geeft tot alle vertrekken. Op het moment dat u de woonkamer wordt er maar één ding duidelijk, dit appartement heel veel sfeer, is keurig verzogd en zo te betrekken. Aan de voorzijde treft u een heerlijke zithoek met in de het midden centraal de Boretti keuken gelegen v.v. spoeleiland, 6 pits gas kookplaat met oven en afzuigkap, vaatwasser en aansluiting koel/vriescombinatie. Aan de achterzijde van de woonkamer treft u een eetkamer met toegang tot de aangebouwde serre met daarachter de verzorgde tuin. Slaapkamer aan de voorzijde van de woning, inloop kastenkamer en ruime ouderslaapkamer aan de achterzijde van de woning. De badkamer is v.v. douche, wastafelmeubel, toilet en wasmachine-/droger aansluiting.


Details
- Type woning: appartement (benedenwoning)
- Bouwjaar 1926
- Woonoppervlak: ca. 83 m2
- De grond is belast met erfpacht, de canon bedraagt € 234,30 per half jaar
- De VvE is actief, de bijdrage is € 125,- per maand (2 ½ jaar geleden is het dak vernieuwd)
- De woning is geheel v.v. kunststof kozijnen met dubbel glas
- Verwarming en warm water middels cv-combi ketel (bouwjaar 2012)
- De woning beschikt over een fijne tuin
- Het betreft een beschermd stadsgezicht
- Conform het bouwjaar van de woning zullen wij de materialen en ouderdomsclausule opnemen in de koopovereenkomst
- Oplevering in overleg

Lees meer

Verkoopgeschiedenis

Aangeboden sinds
24 november 2025
Verkoopdatum
2 maart 2026
Looptijd
3 maanden

Kenmerken

Overdracht

Prijs per m2
€ 3.782
Aangeboden sinds
24 november 2025
Status
Verkocht
Aanvaarding
In overleg

Bouw

Soort appartement
Benedenwoning, appartement
Soort bouw
Bestaande bouw
Bouwjaar
1926
Soort dak
Plat dak
Staat van onderhouden binnen
Goed
Staat van onderhouden buiten
Goed

Oppervlakte en inhoud

Inhoud van de woning
335 m3
Oppervlakte externe bergruimte
4 m2
Oppervlakte overige inpandige ruimten
9 m2

Indeling

Aantal kamers
3
Aantal slaapkamers
2
Aantal woonlagen
1
Voorzieningen
Tuin, schuur/berging, schuifpui

Buitenruimte

Balkon
Nee
Schuur/berging
Ja

Maandlasten berekenen

De maandlasten voor je woning bestaan uit meer dan alleen de hypotheeklasten. Hieronder vind je een overzicht van de bijkomende kosten en lasten. Zo weet je precies wat je huis per maand gaat kosten. En met de handige vergelijkers kun je ook nog eens snel de beste deals sluiten!

  • Kaart
  • Streetview