Verkocht OV

Zwaanshals 252B 3036 KZ Rotterdam

52m2
Wonen
3
Kamers
0m2
Perceel
1912
Bouwjaar
INSTAPKLAAR 3-KAMERAPPARTEMENT MET TUIN, ENERGIELABEL A, GELEGEN AAN DE GEWILDE ZWAANSHALS

Aan de Zwaanshals 252B in Rotterdam ligt dit verzorgde en instapklare 3-kamerappartement met tuin, bereikbaar vanuit de slaapkamer. De woning beschikt over energielabel A, een complete keuken, moderne badkamer en een separaat zwevend toilet.

INDELING EN COMFORT
U betreedt het appartement via een nette entree met toegang tot alle vertrekken. De indeling voelt logisch en efficiënt. Grote raampartijen zorgen voor een prettige lichtinval en een open, rustige woonbeleving.

WOONKAMER EN KEUKEN
De woonkamer biedt ruimte voor een comfortabele zithoek en eettafel. De open keuken sluit hier naadloos op aan en beschikt over diverse inbouwapparatuur. De afwerking oogt strak en tijdloos, passend bij het instapklare karakter.

SLAAPKAMERS EN TUIN
De woning telt twee slaapkamers. Vanuit de hoofdslaapkamer bereikt u direct de tuin. Deze buitenruimte biedt privacy en vormt een fijne plek voor ontspanning midden in de stad.

BADKAMER EN SANITAIR
De badkamer beschikt over een wastafelmeubel en een moderne inloopdouche. Het separate zwevende toilet bevindt zich in de hal. Beide ruimtes ogen verzorgd en praktisch ingericht.

DUURZAAM EN ZORGELOOS
Met energielabel A profiteert u van een energiezuinige woning en lage vaste lasten. De nette staat van onderhoud maakt direct gebruik mogelijk, zonder extra investeringen.

OMGEVING EN SFEER
De Zwaanshals staat bekend om haar levendige karakter met speciaalzaken, horeca en een creatieve sfeer. Het stadscentrum, openbaar vervoer en uitvalswegen liggen op korte afstand. De wijk combineert stedelijke dynamiek met een dorpse uitstraling.

INTERESSE?
Deze woning biedt comfort, locatie en buitenruimte in één. Neem contact op voor een bezichtiging en ervaar zelf de mogelijkheden van dit appartement.

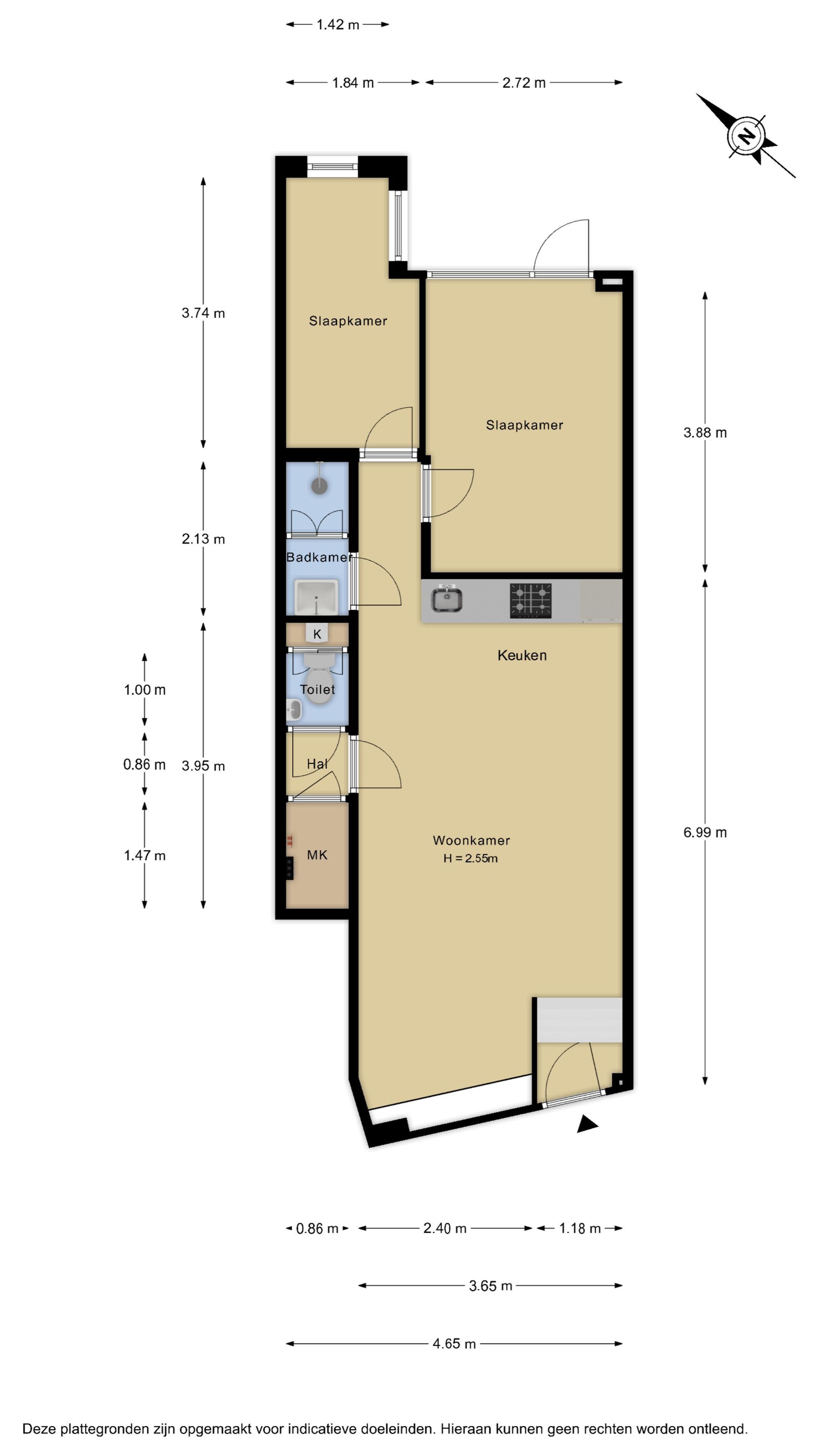
GLOBALE INDELING
Ontdek met de plattegronden de indeling en ervaar de mogelijkheden. Laat je inspireren door de sfeervolle foto’s en wandel virtueel door de woning. Krijg een levensechte indruk. Klik, kijk en ontdek hoe deze plek jouw nieuwe thuis kan worden!

ALGEMEEN
Oppervlakte woning ca. 52m2
Inhoud woning ca. 170m3
Oplevering in overleg, kan snel
Bouwjaar omstreeks 1912
Eigen grond
Verwarming en warm water d.m.v. cv-ketel
Definitief energielabel A
Projectnotaris van toepassing
Verkoop onder voorbehoud van definitieve splitsing
VvE wordt definitief geactiveerd bij een professionele VvE beheerder, concept stukken staan gereed, maandelijkse bijdrage € 88,65

Ondanks dat deze aanmelding met de nodige zorgvuldigheid is samengesteld, is alle verstrekte informatie nadrukkelijk onder voorbehoud, uitsluitend indicatief, bedoeld als voorbeeld en daardoor niet bindend voor het eindresultaat. Aan deze woninginformatie kunnen geen rechten of verplichtingen worden ontleend, onzerzijds wordt geen enkele aansprakelijkheid aanvaard voor enige onvolledigheid, onjuistheid of anderszins, dan wel de gevolgen daarvan.
Lees meer

Kenmerken

Overdracht

Prijs per m2
€ 5.481
Aangeboden sinds
14 januari 2026
Status
Verkocht onder voorbehoud
Aanvaarding
Direct

Bouw

Soort appartement
Benedenwoning, appartement
Soort bouw
Bestaande bouw
Bouwjaar
1912
Soort dak
Zadeldak
Staat van onderhouden binnen
Uitstekend
Staat van onderhouden buiten
Uitstekend

Oppervlakte en inhoud

Indeling

Aantal kamers
3
Aantal slaapkamers
2
Aantal woonlagen
1
Voorzieningen
Tuin, kabel-tv

Buitenruimte

Balkon
Nee
Schuur/berging
Nee

Maandlasten berekenen

De maandlasten voor je woning bestaan uit meer dan alleen de hypotheeklasten. Hieronder vind je een overzicht van de bijkomende kosten en lasten. Zo weet je precies wat je huis per maand gaat kosten. En met de handige vergelijkers kun je ook nog eens snel de beste deals sluiten!

  • Kaart
  • Streetview