Verkocht OV

Verboomstraat 96A 3082 JR Rotterdam

81m2
Wonen
2
Kamers
163m2
Perceel
1939
Bouwjaar
Comfortabele benedenwoning met zonnige tuin, balkon en verrassend veel leefruimte
In een karakteristieke straat in het geliefde Oud-Charlois ligt deze goed onderhouden benedenwoning, verdeeld over het souterrain en de begane grond. De woning op eigen grond beschikt over een ruime tuin van ruim 60 m2 op het zuidoosten, een balkon en is verzorgd afgewerkt. Dankzij de praktische indeling en het prettige wooncomfort is dit een woning waar u zich direct thuis voelt.

Via de eigen entree bereikt u de hal met vaste trap naar het souterrain. De lichte woonkamer is strak afgewerkt met gestucte wanden en plafonds en een moderne laminaatvloer. Grote raampartijen zorgen voor een aangename lichtinval en een prettige verbinding met buiten.

De open keuken sluit naadloos aan op de woonkamer en is voorzien van diverse inbouwapparatuur, waaronder een inductiekookplaat, oven, afzuigkap en vaatwasser. Vanuit de keuken is er toegang tot het balkon, een fijne plek voor een moment buiten. Zowel de woonkamer als de slaapkamer zijn uitgerust met airconditioning voor een aangename binnentemperatuur.

Badkamer
De moderne badkamer is compleet uitgevoerd met een regendouche, hangend toilet en wastafelmeubel en beschikt over mechanische ventilatie.

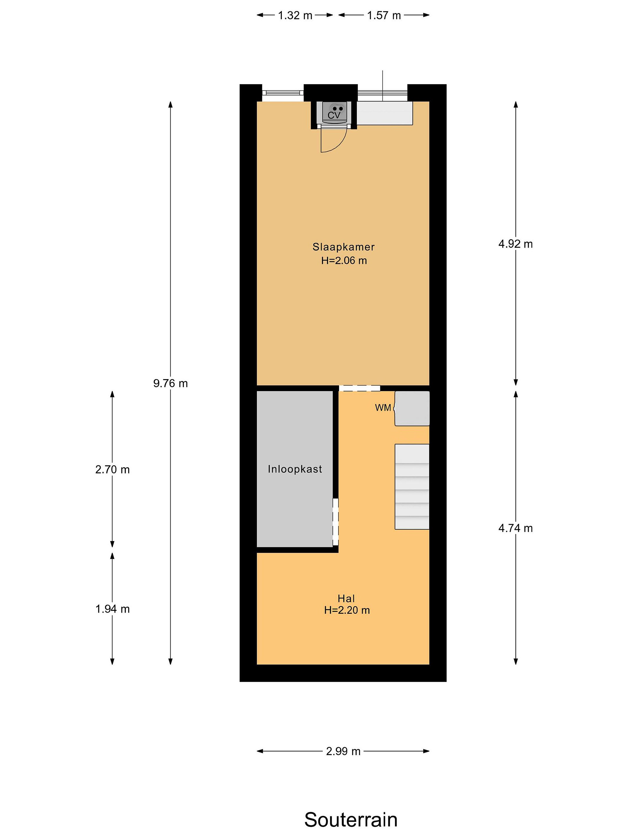
Souterrain
In het souterrain bevindt zich een ruime en knusse slaapkamer aan de tuinzijde, voorzien van airconditioning en met directe toegang tot de tuin. Daarnaast is er een gang en een praktische bergkamer. Deze verdieping biedt flexibele mogelijkheden, zoals het realiseren van een tweede slaapkamer, een werkruimte of hobbykamer.

Tuin en balkon
De achtertuin van circa 60 m2, gelegen op het zuidoosten, biedt volop ruimte om te ontspannen en is bereikbaar via een achterom. Een fijne rustige buitenruimte in de levendige stad die het woongenot compleet maakt. Daarnaast beschikt de woning over een balkon aan de achterzijde op de begane grond.

Ligging
De woning is gelegen in een woonwijk in Rotterdam-Charlois, met diverse voorzieningen in de directe omgeving, zoals supermarkten, winkels, basisscholen, speeltuinen en een huisarts. Openbaar vervoer (bus en tram) is op korte loopafstand bereikbaar. Via uitvalswegen en de Maastunnel is het centrum van Rotterdam snel te bereiken. Parkeren is mogelijk met een vergunning.

Een woning die rust, comfort en praktische mogelijkheden op een prettige manier combineert. Overdracht bij voorkeur omstreeks 2 maart 2026. Wij begeleiden u graag persoonlijk bij een bezichtiging en geven u met plezier een helder en eerlijk beeld van deze woning.
Begane grond
Begane grond
Entree, ruime woonkamer met eethoek en airco, half open keuken met diverse inbouwapparatuur zoals inductie kookplaat en vaatwasser en toegang tot het balkon. De badkamer is voorzien van een inloopdouche en een hangend toilet.

Tuin
Ruime onderhoudsarme tuin van ruim 60 m2 met achterom, toegang tot het balkon en souterrain, gelegen op het zuidoosten.

Details
- Benedenwoning met woonruimte op begane grond en souterrain
- Zonnige tuin op het zuidoosten met achterom en een balkon op de begane grond
- Airconditioning in woonkamer en slaapkamer (2023 en 2025) en Cv-installatie vernieuwd in 2022
- Praktische indeling met mogelijkheden voor een tweede slaapkamer of thuiswerkplek
- Gelegen op eigen grond
- Gunstige ligging met alle dagelijkse voorzieningen en openbaar vervoer binnen handbereik
- Recht van overpad voor bovenwoning naar de berging in het souterrain
- Oplevering zo spoedig mogelijk en in overleg

Lees meer

Kenmerken

Overdracht

Prijs per m2
€ 3.889
Aangeboden sinds
9 januari 2026
Status
Verkocht onder voorbehoud
Aanvaarding
In overleg

Bouw

Soort appartement
Benedenwoning, appartement
Soort bouw
Bestaande bouw
Bouwjaar
1939
Soort dak
Zadeldak
Staat van onderhouden binnen
Goed
Staat van onderhouden buiten
Goed

Oppervlakte en inhoud

Inhoud van de woning
258 m3
Oppervlakte gebouwgebonden buitenruimten
7 m2

Indeling

Aantal kamers
2
Aantal slaapkamers
1
Aantal woonlagen
2
Voorzieningen
Vve checklist, tuin, ventilatie, kabel-tv, airconditioning

Buitenruimte

Balkon
Nee
Schuur/berging
Nee

Maandlasten berekenen

De maandlasten voor je woning bestaan uit meer dan alleen de hypotheeklasten. Hieronder vind je een overzicht van de bijkomende kosten en lasten. Zo weet je precies wat je huis per maand gaat kosten. En met de handige vergelijkers kun je ook nog eens snel de beste deals sluiten!

  • Kaart
  • Streetview