Hilledijk 77A 3072 RD Rotterdam

95m2
Wonen
3
Kamers
0m2
Perceel
1964
Bouwjaar
Luxe Stadsleven aan de Hilledijk – High-End Wonen met Karakter

Welkom bij Hilledijk 77A: een elegant en volledig gerenoveerd (2020) appartement op een toplocatie, achter de dynamische Laan op Zuid en op loopafstand van hotspots als de Wilhelminapier en Katendrecht. Hier combineer je het gemak van stedelijk wonen met het comfort van een luxe thuis.

Waarom dit jouw nieuwe thuis is:
✅ Turn-key & high-end afgewerkt
Van vloerverwarming tot stalen deuren, van lamelparket tot marmer-look keukenblad – aan elk detail is gedacht. Dit is instapklaar wonen in stijl.

✅ Royale leefruimte van ca. 97 m2
Een lichte, ruime woonkamer met open keuken van maar liefst 50 m2, perfect om te ontspannen of gasten te ontvangen. Via de schuifpui stap je zo het zonnige balkon op van ca. 10 m2.

✅ Luxe keuken & badkamer
De open keuken is een droom voor elke kookliefhebber: strak design, diepe lades en topapparatuur zoals een inductiekookplaat, combi-oven en vaatwasser. De badkamer voelt als een privéspa met een inloopregendouche, design ligbad en dubbele wastafel.

✅ Twee comfortabele slaapkamers
Met ca. 17 m2 en 10,5 m2 zijn beide slaapkamers ruim opgezet en bieden ze volop indelingsmogelijkheden.

✅ Toplocatie in Rotterdam-Zuid
Je woont hier te midden van cultuur, horeca, en uitstekende OV-verbindingen. Binnen enkele minuten ben je in het centrum of op Zuidplein, en met de fiets bereik je de hotspots aan het water.

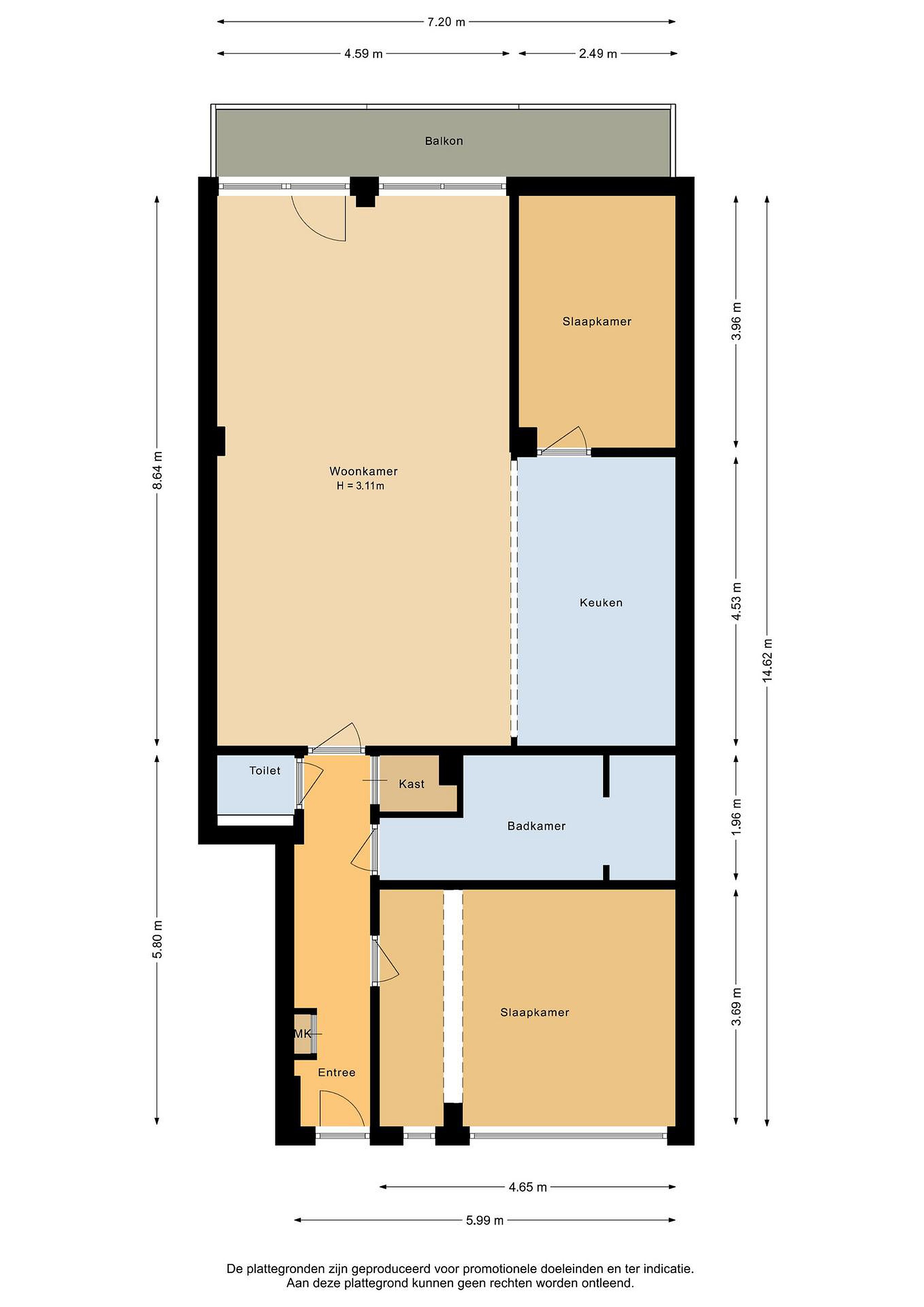
Indeling:
Begane grond

Eigen entree

Hal met modern toilet en meterkast

Royale woonkamer met luxe open keuken (ca. 50 m2)

Balkon van ca. 10 m2

Slaapkamer I: ca. 17,2 m2

Slaapkamer II: ca. 10,5 m2

Luxe badkamer: ca. 9 m2 met inloopdouche, ligbad, dubbele wastafel

Separate wasruimte met aansluiting voor wasmachine/droger

Kenmerken op een rij:
Bouwjaar: 1964 / Volledige renovatie in 2020

Woonoppervlakte: ca. 97 m2

(Vloer)Verwarming en warm water via stadsverwarming

Luxe afwerking & instapklaar

Lees meer

Kenmerken

Overdracht

Prijs per m2
€ 4.737
Aangeboden sinds
6 oktober 2025
Status
Beschikbaar
Aanvaarding
Per datum

Bouw

Soort appartement
Benedenwoning, appartement
Soort bouw
Bestaande bouw
Bouwjaar
1964
Staat van onderhouden binnen
Uitstekend
Staat van onderhouden buiten
Uitstekend

Oppervlakte en inhoud

Indeling

Aantal kamers
3
Aantal slaapkamers
2
Aantal woonlagen
1
Voorzieningen
Vve checklist, balkon

Buitenruimte

Balkon
Ja
Schuur/berging
Nee

Maandlasten berekenen

De maandlasten voor je woning bestaan uit meer dan alleen de hypotheeklasten. Hieronder vind je een overzicht van de bijkomende kosten en lasten. Zo weet je precies wat je huis per maand gaat kosten. En met de handige vergelijkers kun je ook nog eens snel de beste deals sluiten!

  • Kaart
  • Streetview