Herengracht 52A 2312 LE Leiden

60m2
Wonen
3
Kamers
0m2
Perceel
1650
Bouwjaar
Luxe en sfeervol 3-kamerappartement met zonnige stadstuin aan de Herengracht in Leiden!

Koopsom vanaf € 375.000,-

Aan één van de mooiste grachten van Leiden, midden in het historische centrum, bevindt zich dit stijlvolle en instapklare 3-kamerappartement met een ruime, zonnige tuin op het westen. De woning ligt op de begane grond van een karakteristiek Rijksmonument uit circa 1650 en combineert moderne luxe met authentieke details en een rustige ligging aan het water.

De Herengracht is een van de meest geliefde locaties in Leiden. Op loopafstand vind je gezellige cafés, restaurants, winkels en supermarkten, terwijl het station en de uitvalswegen eenvoudig bereikbaar zijn. Parkeren kan direct voor de deur of in de directe omgeving met een parkeervergunning.
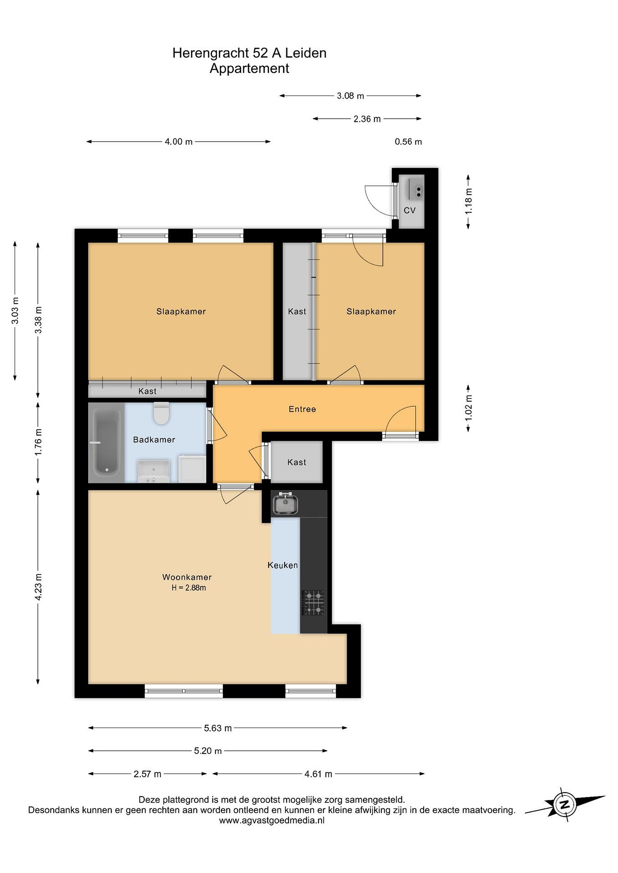
Begane grond
Begane grond: Via de centrale entree met intercom en brievenbus bereik je de woning. De hal met praktische bergkast biedt toegang tot alle vertrekken.

Aan de achterzijde ligt de eerste slaapkamer, voorzien van op maat gemaakte vaste kasten en een praktisch stapelbed met onderbed. Vanuit deze kamer leiden openslaande deuren naar de beschutte stadstuin, waar je volop kunt genieten van de middag- en avondzon.

De tweede (hoofd)slaapkamer grenst eveneens aan de tuin en beschikt over ruime inbouwkasten die perfect passen bij het moderne, rustige interieur.

De volledig betegelde badkamer is voorzien van een ligbad met douche, wastafelmeubel, toilet, designradiator en aansluitingen voor wasmachine en droger.

Aan de voorzijde bevindt zich de lichte en ruime woonkamer met hoge plafonds en grote ramen die zorgen voor een prettige sfeer en veel natuurlijk licht. De open keuken is modern uitgevoerd in lichte tinten met RVS-accenten en beschikt over diverse inbouwapparatuur, waaronder een combimagnetron, vaatwasser, gaskookplaat, afzuigkap en koel-vriescombinatie.

Tuin
De zonnige stadstuin (circa 7,62 x 3,83 meter) ligt op het westen en biedt veel privacy. Een ideale plek om in alle rust buiten te zitten, midden in de binnenstad. In de tuin bevindt zich tevens een handige bergkast met de CV-opstelling (HR-combiketel).

Details
- Bouwjaar: ca. 1650
- Rijksmonument
- Woonoppervlakte: ca. 59 m2 (volgens NEN 2580)
- Inhoud: ca. 221 m3
- Geheel voorzien van dubbele beglazing en/of voorzetramen
- Het geheel wordt gemeubileerd verkocht.
- Mechanische ventilatie in keuken en badkamer
- Zonnige tuin met veel privacy
- Bouwtechnische keuring aanwezig
- Parkeervergunning via Gemeente Leiden.
- Gezonde en actieve VvE, maandelijkse bijdrage €150,-
- Oplevering in overleg

Koopsom vanaf € 375.000,- / Vraagprijs € 400.000,-
Alle biedingen vanaf € 375.000,- worden in overweging genomen.

Lees meer

Kenmerken

Overdracht

Prijs per m2
€ 6.250
Aangeboden sinds
11 november 2025
Status
Beschikbaar
Aanvaarding
In overleg
Bijzonderheden
Gemeubileerd

Bouw

Soort appartement
Benedenwoning, appartement
Soort bouw
Bestaande bouw
Bouwjaar
1650
Soort dak
Schilddak
Staat van onderhouden binnen
Goed
Staat van onderhouden buiten
Goed

Oppervlakte en inhoud

Inhoud van de woning
222 m3
Oppervlakte gebouwgebonden buitenruimten
29 m2
Oppervlakte overige inpandige ruimten
1 m2

Indeling

Aantal kamers
3
Aantal slaapkamers
2
Aantal woonlagen
1
Voorzieningen
Tuin, ventilatie, kabel-tv

Buitenruimte

Balkon
Nee
Schuur/berging
Nee

Maandlasten berekenen

De maandlasten voor je woning bestaan uit meer dan alleen de hypotheeklasten. Hieronder vind je een overzicht van de bijkomende kosten en lasten. Zo weet je precies wat je huis per maand gaat kosten. En met de handige vergelijkers kun je ook nog eens snel de beste deals sluiten!

  • Kaart
  • Streetview