Verkocht

Stevinhof 4 1433 JG Kudelstaart

53m2
Wonen
2
Kamers
0m2
Perceel
2013
Bouwjaar
Aan de rand van het centrum gelegen comfortabel twee kamer appartement van 53 m2, met een fijn balkon op het noord-westen, een eigen parkeerplaats en fietsenstalling. De woning ligt op loopafstand van onder meer diverse winkels en de Westeinderplassen en is onderdeel van het moderne en energiezuinige complex Stevinhof dat in 2013 gebouwd.

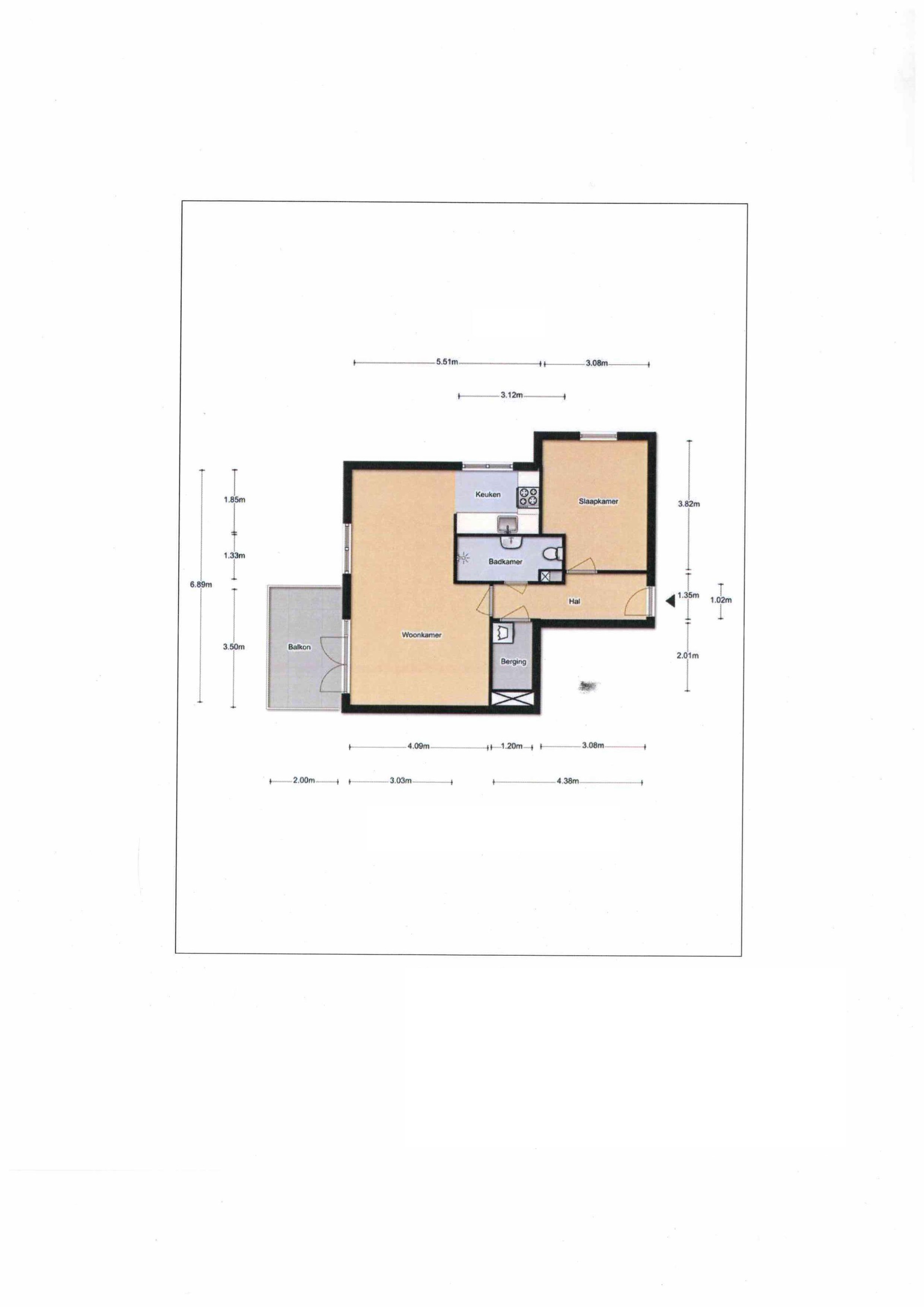
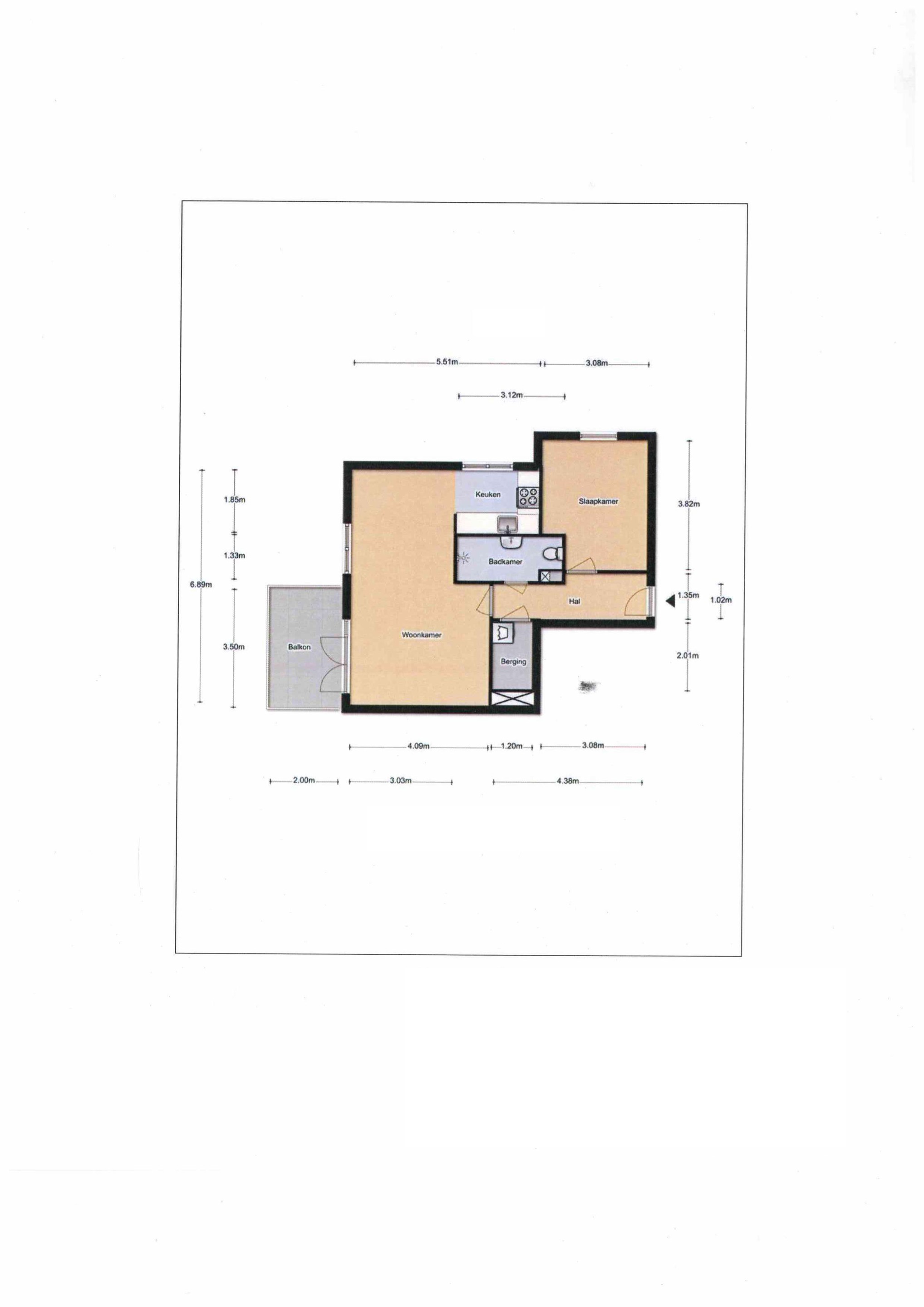
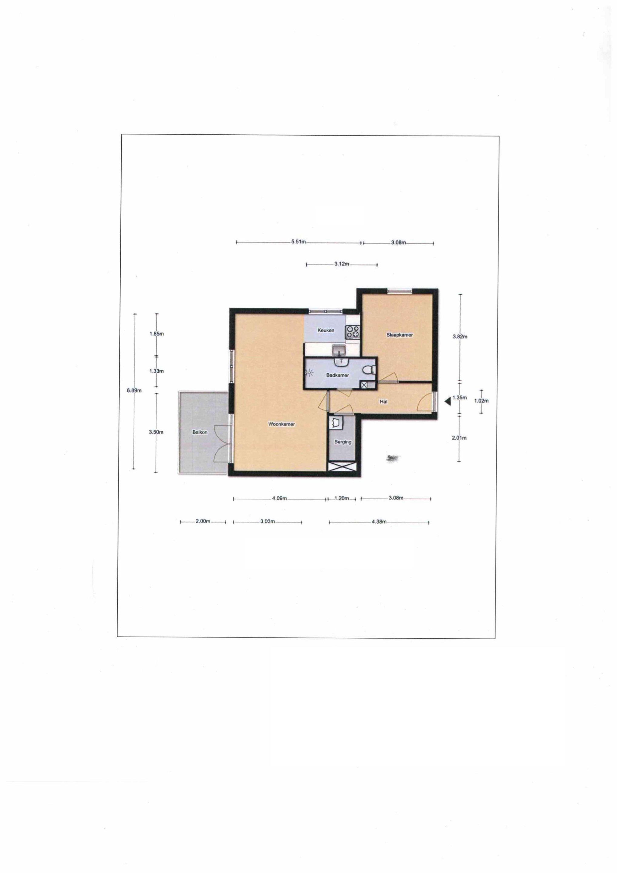
Indeling
Via de gemeenschappelijke entree komt u bij de voordeur. Vanuit de hal zijn de badkamer, slaapkamer, berging en woonkamer met half open keuken bereikbaar. De badkamer is voorzien van een inloopdouche, wastafelmeubel en toilet. Er is verder een inpandige berging met opstelplaats voor de wasmachine en droger. De keuken is in een L opstelling uitgevoerd en voorzien van diverse inbouwapparatuur. Vanuit de lichte woonkamer is via openslaande deuren het balkon bereikbaar. De hele woning is voorzien van vloerverwarming.

Er is tot slot een eigen parkeerplaats op een afgesloten terrein en een gezamenlijke fietsenstalling.

Nieuwsgierig of meer informatie? Maak snel een afspraak, wij leiden u met plezier rond en informeren u graag.
Lees meer

Verkoopgeschiedenis

Aangeboden sinds
26 november 2025
Verkoopdatum
28 januari 2026
Looptijd
2 maanden

Kenmerken

Overdracht

Prijs per m2
€ 6.604
Aangeboden sinds
26 november 2025
Status
Verkocht
Aanvaarding
In overleg

Bouw

Soort appartement
Benedenwoning, appartement
Soort bouw
Bestaande bouw
Bouwjaar
2013
Soort dak
Schilddak
Staat van onderhouden binnen
Goed
Staat van onderhouden buiten
Goed

Oppervlakte en inhoud

Inhoud van de woning
143 m3
Oppervlakte gebouwgebonden buitenruimten
7 m2

Indeling

Aantal kamers
2
Aantal slaapkamers
1
Aantal woonlagen
1
Voorzieningen
Balkon, ventilatie, lift

Buitenruimte

Balkon
Ja
Schuur/berging
Nee

Maandlasten berekenen

De maandlasten voor je woning bestaan uit meer dan alleen de hypotheeklasten. Hieronder vind je een overzicht van de bijkomende kosten en lasten. Zo weet je precies wat je huis per maand gaat kosten. En met de handige vergelijkers kun je ook nog eens snel de beste deals sluiten!

  • Kaart
  • Streetview