Verkocht OV

Lage Kant 37 4817 GE Breda

70m2
Wonen
3
Kamers
0m2
Perceel
1999
Bouwjaar
Ruim en licht 3-kamer appartement met tuin en achterom.
De woning is gelegen in rustige wijk Brabantpark, met veel groen in de omgeving.
Op korte afstand van het bruisende centrum van Breda en met alle dagelijkse voorzieningen in de nabije omgeving.
Er is voldoende gelegenheid tot vrij parkeren voor de deur.
De uitvalswegen richting Utrecht, Rotterdam en Antwerpen zijn perfect.
Winkelcentrum “Heusdenhout” en winkelcentrum “de Burcht” zijn nabij net zoals sportverenigingen, kinderopvang en basisscholen.
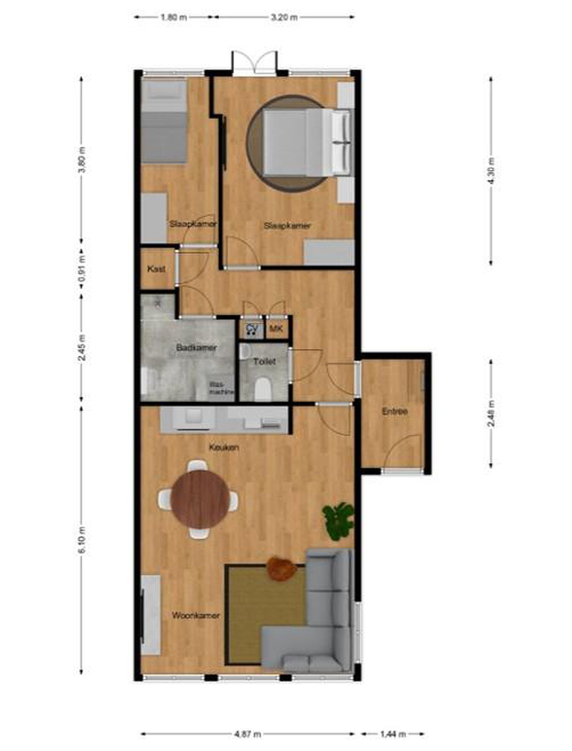
Begane grond
Hal/ entree voorzien van houten vloer, toegang tot de woonkamer, het toilet, de badkamer en de slaapkamers;
Toilet, volledig betegeld met fonteintje;
De ruime woonkamer met open keuken (ca. 4.87 m x 6.10 m) voorzien van houten vloer, grote raampartijen welke zorgen voor veel licht;
De volledig betegelde badkamer (ca. m x 2.45 m) beschikt over een ruime douche en wastafelmeubel, tevens aansluiting voor wasapparatuur;
Slaapkamer achterzijde (ca. 3.20 m x 4.30 m) voorzien van betonnen vloer, middels openslaande deuren toegang tot de tuin;
Slaapkamer achterzijde (ca. 1.80 m x 3.80 m) voorzien van een betonnen vloer.


Complex:
Vve bijdrage is ca. € 121,- per maand , hieronder vallen o.a.: de kosten voor de opstalverzekering (glas-/brandverzekering), schoonmaak van de algemene ruimten, verlichting van de algemene ruimten, reservering voor klein- en groot onderhoud.
Het betreft een gezonde en actieve Vereniging van Eigenaars, de stukken hiervan zijn aanwezig.

Tuin
De tuin welke op het noordoosten gesitueerd is, is voorzien van sierbestrating en toegang tot de berging;
Berging voorzien van elektra.

Details
Lichte en ruime woonkamer;
Fijne tuin met grote schuur en achterom;
Op loopafstand van alle voorzieningen;
Goede winkelvoorzieningen;
Vrij parkeren in de nabije omgeving;
Omgeven door groen;
Perfecte ligging.

Lees meer

Kenmerken

Overdracht

Prijs per m2
€ 4.271
Aangeboden sinds
25 september 2025
Status
Verkocht onder voorbehoud
Aanvaarding
In overleg

Bouw

Soort appartement
Benedenwoning, appartement
Soort bouw
Bestaande bouw
Bouwjaar
1999
Soort dak
Plat dak
Staat van onderhouden binnen
Goed
Staat van onderhouden buiten
Goed

Oppervlakte en inhoud

Inhoud van de woning
190 m3
Oppervlakte externe bergruimte
5 m2

Indeling

Aantal kamers
3
Aantal slaapkamers
2
Aantal woonlagen
1
Voorzieningen
Tuin, schuur/berging

Buitenruimte

Balkon
Nee
Schuur/berging
Ja

Maandlasten berekenen

De maandlasten voor je woning bestaan uit meer dan alleen de hypotheeklasten. Hieronder vind je een overzicht van de bijkomende kosten en lasten. Zo weet je precies wat je huis per maand gaat kosten. En met de handige vergelijkers kun je ook nog eens snel de beste deals sluiten!

  • Kaart
  • Streetview