Verkocht OV

Kerkstraat 6B 4571 BC Axel

53m2
Wonen
3
Kamers
0m2
Perceel
2023
Bouwjaar
In het bruisende centrum van Axel is een modern appartementsgebouw verrezen met zeven splinternieuwe appartementen, perfect afgestemd op de behoeften van starters en investeerders. Deze stijlvolle woningen, geschikt voor één- of tweepersoonshuishoudens, combineren comfort en efficiëntie met een eigentijdse uitstraling. Gelegen in de dynamische kanaalzone biedt dit project niet alleen een uitstekende woonkwaliteit, maar ook een interessante kans voor beleggers die willen inspelen op de groei van deze gewilde omgeving.

Axel is een klein stadje in het Oosten van Zeeuws-Vlaanderen en is gunstig gelegen ten opzichte van plaatsen als Hulst, Terneuzen en Sas van Gent. Ook de Belgische regio Antwerpen en Het Zeeuwse Goes zijn binnen afzienbare tijd te bereiken.

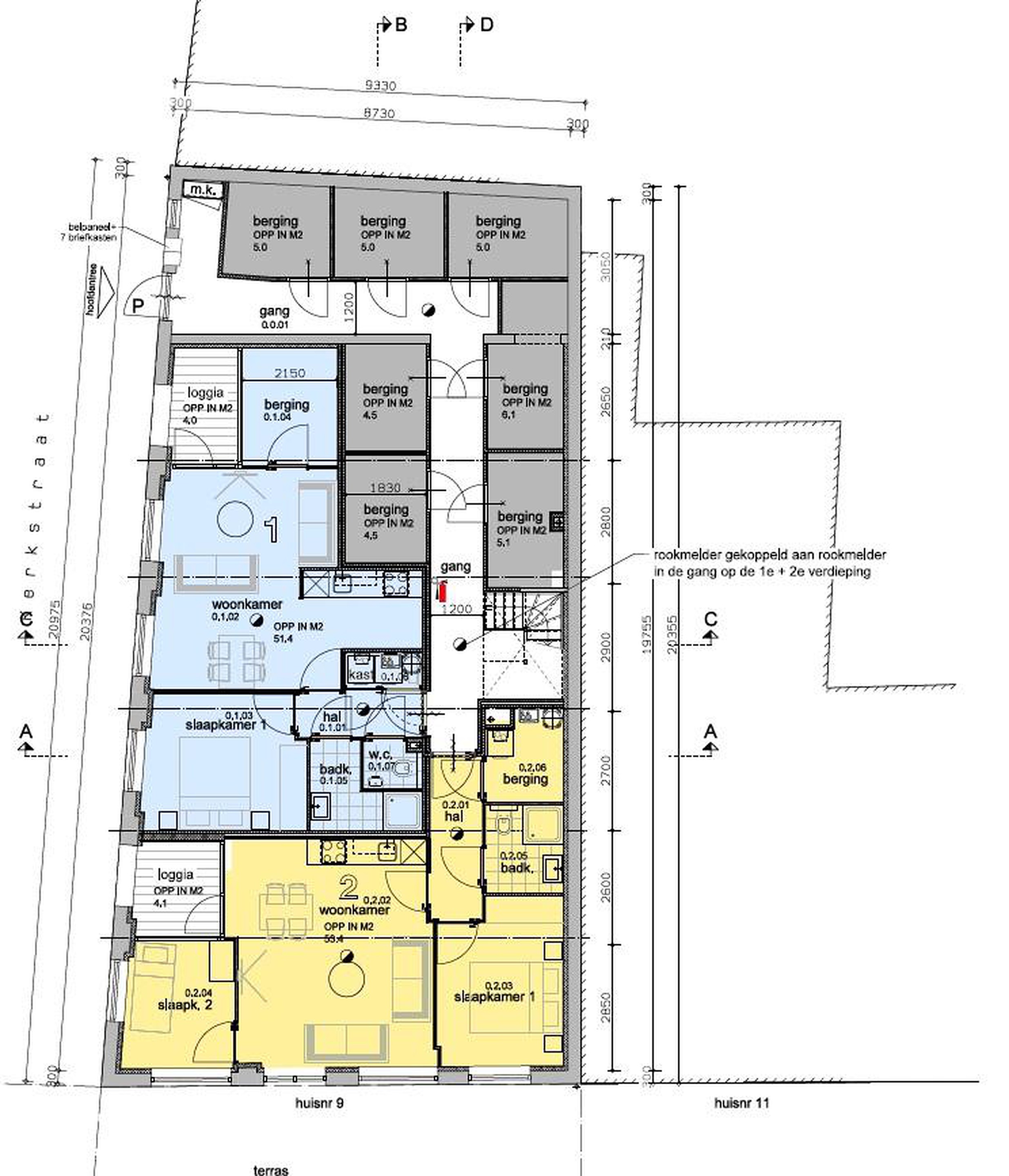
Dit appartement met 2 slaapkamers is gelegen op de begane grond van het gebouw en kent een oppervlakte van 53 vierkante meter. Het object is daarnaast voorzien van een loggia van circa 4 vierkante meter.
Het appartement wordt opgeleverd met inbegrip van een keuken, badkamer en vloeren.

Nieuwsgierig geworden en wenst u meer informatie? Neem dan contact met ons op
Lees meer

Kenmerken

Overdracht

Prijs per m2
€ 3.539
Aangeboden sinds
28 maart 2025
Status
Verkocht onder voorbehoud
Aanvaarding
In overleg

Bouw

Soort appartement
Benedenwoning, appartement
Soort bouw
Bestaande bouw
Bouwjaar
2023
Staat van onderhouden binnen
Goed
Staat van onderhouden buiten
Goed

Oppervlakte en inhoud

Indeling

Aantal kamers
3
Aantal slaapkamers
2
Aantal woonlagen
1
Voorzieningen

Buitenruimte

Balkon
Nee
Schuur/berging
Nee

Maandlasten berekenen

De maandlasten voor je woning bestaan uit meer dan alleen de hypotheeklasten. Hieronder vind je een overzicht van de bijkomende kosten en lasten. Zo weet je precies wat je huis per maand gaat kosten. En met de handige vergelijkers kun je ook nog eens snel de beste deals sluiten!

  • Kaart
  • Streetview