Poststraat 41 6828 EK Arnhem

60m2
Wonen
3
Kamers
0m2
Perceel
2023
Bouwjaar
Starters opgelet!!!
Deze woning is beschikbaar met slechts netto €943,- maandlasten!

“Jouw stadse oase in het Spijkerkwartier – luxe, licht en levendigheid in één”

Op zoek naar een instapklaar appartement waar comfort, luxe én sfeer samenkomen? Dan is dit jouw kans! Aan een rustig straatje in het geliefde Spijkerkwartier vind je dit prachtige appartement van ca. 60 m2. Een woning die tot in de puntjes is afgewerkt, voorzien van hoogwaardige materialen en moderne gemakken. Hier geniet je van stijlvol wonen, met de bruisende stad letterlijk om de hoek. Het appartement is in 2023 gebouwd en is uiterst energiezuinig... Zo beschikt deze moderne woning onder meer over zonnepanelen, een warmtepomp gecombineerd met vloerverwarming en een airconditioning in de woonkamer/keuken. En wat heel bijzonder is; het appartement beschikt over een eigen parkeerplaats zodat het parkeren van je auto geen probleem hoeft te zijn.

Indeling & comfort

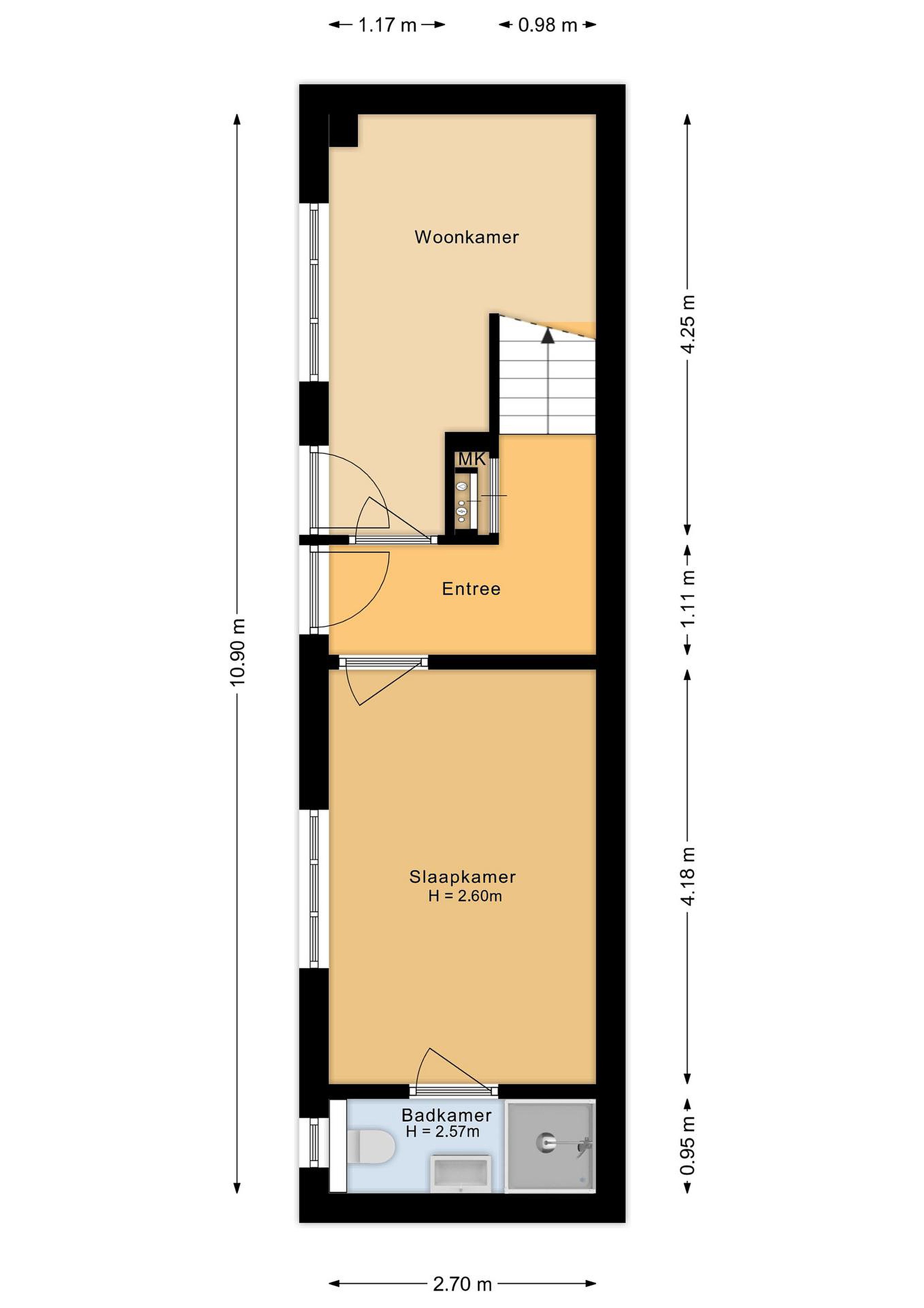
Bij binnenkomst ervaar je direct de strakke en eigentijdse afwerking. De woning beschikt over een royale slaapkamer en een extra werkkamer/slaapkamer – ideaal als thuiswerkplek, hobbykamer of logeerkamer. In de deze kamer vind je tevens de witgoedaansluiting; praktisch en slim opgelost.

Grenzend aan de slaapkamer ligt een moderne badkamer met douche, wastafel en toilet. Compact, maar met een luxe uitstraling en uitstekend afgewerkt met prachtige materialen.

De eerste verdieping is de echte eyecatcher: een lichte, gezellige woonkamer met een luxe, open keuken met schiereiland, welke ook uitstekend als bar kan worden gebruikt. Deze keuken is volledig uitgerust met topapparatuur van Bosch en vormt het hart van de woning – koken en gezellig tafelen gaan hier moeiteloos samen.

Via de woonkamer stap je zo het zonnige dakterras/balkon op, afgewerkt met stijlvolle houten vlonderplanken. Een heerlijke plek om te ontspannen met een kop koffie in de ochtendzon of een goed glas wijn aan het einde van de dag.

Het appartement beschikt daarnaast over een separaat toilet op de eerste verdieping, een luxe gietvloer die de woning een strak en modern karakter geeft, én over moderne voorzieningen zoals, zonnepanelen, een warmtepomp en airconditioning. Dit betekent: comfortabel wonen, energiezuinig en klaar voor de toekomst ! Verder is op de eerste verdieping een ruime berging aanwezig, waarin zich ook de warmtepompinstallatie en de mechanische ventilatie bevinden,

De wijk: Spijkerkwartier

Wonen in het Spijkerkwartier is wonen in een van de meest geliefde en levendige wijken van Arnhem. Deze karakteristieke buurt staat bekend om haar monumentale panden, charmante straatjes en creatieve, culturele sfeer. De woning ligt net achter de Steenstraat; alle voorzieningen en faciliteiten zijn dus op loopafstand van dit appartement gelegen. In het Spijkerkwartier vind je gezellige koffietentjes, restaurants, speciaalzaken en sfeervolle straatjes. Het centrum van Arnhem ligt op loopafstand, net als het station Velperpoort.

Ook voor de rust en bereikbaarheid zit je hier goed: je woont in een rustige straat, maar binnen enkele minuten rijd je zo de uitvalswegen op richting de A12 en A50. Ook het station Velperpoort is binnen enkele minuten lopen te bereiken.

Belangrijk om te weten:

- Woonoppervlakte ca. 65 m2
- Luxe afwerking met gietvloer, warmtepomp, vloerverwarming en airconditioning
- Ruime slaapkamer + extra werkkamer/slaapkamer
- Moderne badkamer + separaat toilet
- Balkon/dakterras voorzien houten vlonderplanken
- Gelegen in het bruisende Spijkerkwartier
- Niet-zelfbewoningsclausule van toepassing
- eigen parkeerplaats

Poststraat 41 is dé ideale woning voor wie houdt van comfortabel, luxe en sfeervol wonen, midden in een van de meest bruisende wijken van Arnhem. Instapklaar, duurzaam, een parkeerplek en met alles wat je nodig hebt binnen handbereik. Dit is wonen met karakter!

Koopovereenkomst:
Bij de verkoop wordt de standaard VBO koopovereenkomst gehanteerd. Indien nodig zal er een clausule worden opgenomen waaruit blijkt dat de verkoper niet de bewoner van de woning is geweest. Bij woningen welke ouder zijn dan 20 jaar, worden de asbestclausule en de ouderdomsclausule standaard opgenomen;

De bovengenoemde informatie hebben wij met de grootste zorg en de nodige zorgvuldigheid samengesteld. Onzerzijds wordt er echter geen enkele aansprakelijkheid aanvaard voor enige onvolledigheid, onjuistheid, omissie of anderszins, alsook voor de eventuele gevolgen daarvan. Alle opgegeven maten zijn zorgvuldig en professioneel opgenomen, maar wel indicatief.

Wanneer u geïnteresseerd bent in deze fraaie woning, kunt u een bezichtiging aanvragen via onze website www.blinqmakelaars.nl
Lees meer

Kenmerken

Overdracht

Prijs per m2
€ 5.550
Aangeboden sinds
30 september 2025
Status
Beschikbaar
Aanvaarding
In overleg

Bouw

Soort appartement
Benedenwoning, appartement
Soort bouw
Bestaande bouw
Bouwjaar
2023
Staat van onderhouden binnen
Uitstekend
Staat van onderhouden buiten
Uitstekend

Oppervlakte en inhoud

Inhoud van de woning
224 m3
Oppervlakte gebouwgebonden buitenruimten
6 m2

Indeling

Aantal kamers
3
Aantal slaapkamers
2
Aantal woonlagen
2
Voorzieningen
Vve checklist, balkon, ventilatie, airconditioning

Buitenruimte

Balkon
Ja
Schuur/berging
Nee

Maandlasten berekenen

De maandlasten voor je woning bestaan uit meer dan alleen de hypotheeklasten. Hieronder vind je een overzicht van de bijkomende kosten en lasten. Zo weet je precies wat je huis per maand gaat kosten. En met de handige vergelijkers kun je ook nog eens snel de beste deals sluiten!

  • Kaart
  • Streetview