Prinsegracht 80 2512 GC 's-Gravenhage

75m2
Wonen
3
Kamers
0m2
Perceel
1772
Bouwjaar
See English text below

Uniek Rijks monumentaal (achter)grachtenpand in het centrum van Den Haag met zonnige tuin.

Zeer karaktervolle 3-kamerwoning met tuin, gelegen in het centrum van Den Haag op loopafstand van de Grote markt en het Spui met vele winkels, leuke restaurants, cafés, bioscopen, en openbaar vervoer (bus 25, 130, tram 2, 6 en Randstadrail 3, 4). Uitvalswegen zijn binnen 10 minuten te bereiken. Parkeren is mogelijk met een vergunning. Een ideale plek om te genieten van het bruisende stadsleven. De woning betreft het achterhuis verdeeld over 3 woonlagen, de keuken bevindt zich in het voorhuis. In de tuin is het genieten van de rust, terwijl u zich midden in het centrum van Den Haag bevindt.
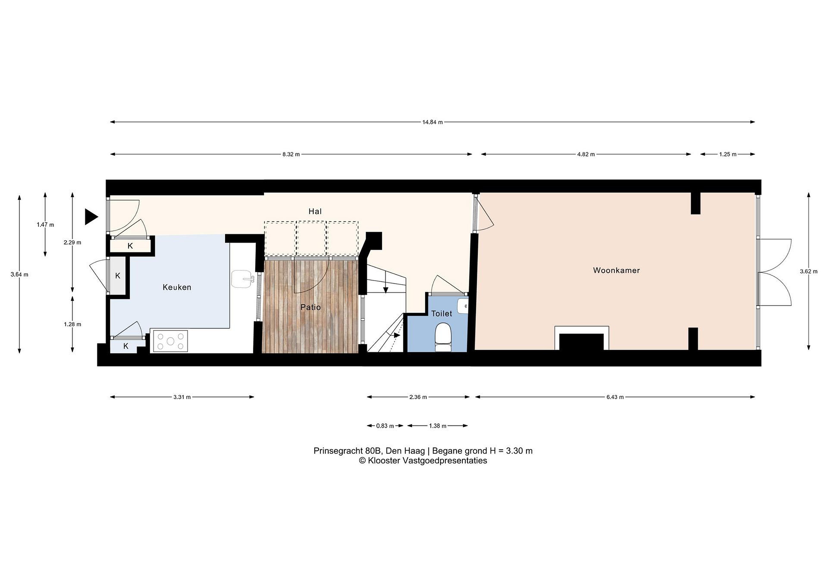
Begane grond
Aan de voormalige gracht heeft u toegang tot het appartement via een natuurstenen stoep met stoeppaal en hekwerk. Prachtige authentieke voordeur, hal met marmeren tegels en plafondlijsten.

In de voorkamer (gedeeld gebruik) zijn de originele fresco's uit de late 18e eeuw nog aanwezig. De vier jaargetijden zijn afgebeeld door een onbekende schilder. Groen marmeren schouw, balkenplafond en lambrisering. Portaal met plafondlijsten, berging onder de trap van het voorhuis. Hier bevindt zich ook de wijnkelder met 18e-eeuwse tegelvloer en ingebouwde kluis.
Entree appartement. Fraaie hal met massief eiken parket. Gezellige keuken in het voorhuis van de woning, voorzien van tegelvloer, servieskast, vaatwasser, fornuis met oven (Boretti), koelkast en afzuigkap. Via een hal met glazen dak bereikt u het achterhuis. Hier ligt ook een fijne patio met zwart-witte tegels.

De rest van deze woning bevindt zich in het achterhuis. Hal, ruim toilet met bergkast onder de trap. Woonkamer met brede planken vloerdelen, plafondlijsten, werkende open haard met marmeren schouw en spiegel. Vanuit de woonkamer bereikt u via openslaande deuren de ruime tuin, circa 10 meter diep en 4 meter breed. De tuin ligt op het zuidoosten met een (stoof)perenboom en een houten veranda. Een oase van rust midden in Den Haag.

De trap brengt u naar de eerste verdieping waar zich een ruime slaapkamer met vaste kastenwand en een recent gerenoveerde badkamer met douchecabine, wastafel en extra toilet, bevinden. Vanuit de slaapkamer komt u op een zonnig balkon. De tweede, ruime slaapkamer bevindt zich op de tweede verdieping (zolder). Hier bevinden zich ook de CV-ketel en de wasmachine.

Details

- Woonhuis/ grachtenpand
- Het betreft een Rijksmonument
- Bouwjaar 1772
- Woonoppervlakte 75,3 m2
- Zolder 16,1 m2
- Tuin ca 40 m2
- De woning is gelegen op eigen grond
- VvE recent geactiveerd, bijdrage €125.- / maand
- Verwarming en warm water middels cv combi ketel Vaillant (2010)
- De woning is gedeeltelijk voorzien van dubbel glas
- Ouderdoms- , asbest- en niet-bewonersclausule van toepassing
- Rapport technische keuring aanwezig
- Aanvaarding in overleg

Unique monument canal house at the back in the center of The Hague with a sunny garden.

Very characterful 2-bedroom apartment with a garden, located in the center of The Hague within walking distance of the Grote Markt and het Spui with many shops, lovely restaurants, cafés, cinemas, and public transport (bus 25, 130, tram 2, 6 and Randstadrail 3, 4). Major roads can be reached within 10 minutes. Parking is possible with a permit. An ideal place to enjoy the vibrant city life. The property concerns the rear house spread over 3 living floors, while the kitchen is located in the front house. In the garden, you can enjoy the peace and quietness while being in the heart of The Hague.

From the former canal, you have access to your apartment via a natural stone sidewalk with a post and gate. Beautiful authentic front door, hallway with marble tiles and ceiling moldings.

In the front room (shared use), the original frescoes from the late 18th century are still present. The Four Seasons are painted by an unknown painter. Green marble fireplace, beam ceiling, and paneling. Vestibule with ceiling moldings, storage under the stairs of the front house. Here is also the wine cellar with an 18th-century tiled floor and built-in safe.
Apartment entrance. Beautiful hallway with solid oak parquet. Cozy kitchen in the front part of the house, equipped with tiled floor, china cabinet, dishwasher, stove with oven (Boretti), refrigerator, and extractor hood. Through a hallway with a glass roof, you reach the rear house. Here is also a lovely patio with black-and-white tiles.
The rest of this house is located in the rear house. Hall, spacious toilet with storage cupboard under the stairs. Living room with wide plank floors, ceiling moldings, a working open fireplace with marble mantel and mirror. From the living room, you can access the spacious garden through French doors, approximately 10 meters deep and 4 meters wide. The garden faces southeast and has a (stove) pear tree and a wooden veranda. An oasis of tranquility in the heart of The Hague. The stairs lead to the first floor, where there is a spacious bedroom with built-in wardrobes and a recently renovated bathroom with shower cabin, sink, and extra toilet. From the bedroom, you step out onto a sunny balcony. The second, spacious bedroom is on the second floor (attic), where you will also find the central heating boiler and the washing machine.


Lees meer

Kenmerken

Overdracht

Prijs per m2
€ 6.640
Aangeboden sinds
9 februari 2026
Status
Beschikbaar
Aanvaarding
In overleg

Bouw

Soort appartement
Beneden boven woning, appartement
Soort bouw
Bestaande bouw
Bouwjaar
1772
Staat van onderhouden binnen
Redelijk
Staat van onderhouden buiten
Redelijk

Oppervlakte en inhoud

Inhoud van de woning
345 m3
Oppervlakte gebouwgebonden buitenruimten
5 m2
Oppervlakte overige inpandige ruimten
16 m2

Indeling

Aantal kamers
3
Aantal slaapkamers
2
Aantal woonlagen
3
Voorzieningen
Tuin, balkon, schuur/berging

Buitenruimte

Balkon
Ja
Schuur/berging
Ja

Maandlasten berekenen

De maandlasten voor je woning bestaan uit meer dan alleen de hypotheeklasten. Hieronder vind je een overzicht van de bijkomende kosten en lasten. Zo weet je precies wat je huis per maand gaat kosten. En met de handige vergelijkers kun je ook nog eens snel de beste deals sluiten!

  • Kaart
  • Streetview