Verhuurd

Beneluxlaan 1363 BJ Almere

152m2
Wonen
4
Kamers
99m2
Perceel
2008
Bouwjaar
This modern and surprisingly spacious corner house, spread over three full floors, is characterized by its unique layout, strong sense of space, and excellent natural light. In addition, the property is energy-efficient with energy label A.

Thanks to the large windows and the partially double-height ceiling (approx. 5 meters) in the kitchen, a bright and open living space is created with an impressive sense of volume. The property features a light-filled kitchen with cooking island, a spacious living room, and both a balcony and a generous roof terrace. Both outdoor spaces offer unobstructed views over the water and surrounding greenery, creating a peaceful and pleasant living environment.

You can park on your two private parking spaces located just a few meters from the property, ensuring you always have a spot available.

This home is ideally suited for a couple or remote workers seeking comfortable and stylish living in a quiet yet well-connected location.

H I G H L I G H T S

- Modern corner house
- Living space: 152 m2, 4 rooms, 1 luxury bathroom
- Energy label A
- Spread over 3 full floors
- Spacious open-plan kitchen open kitchen with Siemens built-in appliances
- Bright living space with large windows
- High-quality finishes, including herringbone PVC flooring and high skirting boards.
- Balcony with open views
- Recently upgraded south-facing roof terrace
- Spacious living room with mezzanine
- Multifuntional room on ground floor, ideal as home office or guest bedroom
- Utilty / laundry room
- 2 private parking spaces, additional parkitng and EV charging points available in the street
- District heating

C O N D I T I O N S

- Available immediately
- Rental period: 12 months (diplomatic clause applies)
- Rent: €2,850 per month, including furniture. Excluding gas, water, electricity, internet, and TV
- Security deposit: 2 months' rent
- Subject to owner's approval
- No pets
- Smoking not allowed

L A Y O U T

Ground floor
Entrance with hallway and meter cupboard. At the front of the property, there is a multifunctional room equipped with a double bed and washbasin, ideal as a guest room or home office. This floor also includes a practical utility/laundry room.

At the rear, you will find the spacious kitchen with cooking island, equipped with Siemens built-in appliances including a fridge, freezer, dishwasher, oven with steam function, induction cooktop and stainless steel extractor hood. The kitchen stands out due to its impressive ceiling height, enhanced by the large windows and mezzanine, creating a bright and open atmosphere. From the kitchen, there is direct access to the balcony with unobstructed views over the water and greenery

First floor (living area)
The bright and spacious living room is located on this level and features large windows on both the front and rear sides. From here, you have direct access to the generous roof terrace, which spans the full width of the house and serves as an extension of the living space.

The open quarter-turn staircase is a stylish design feature and leads to the upper floor.

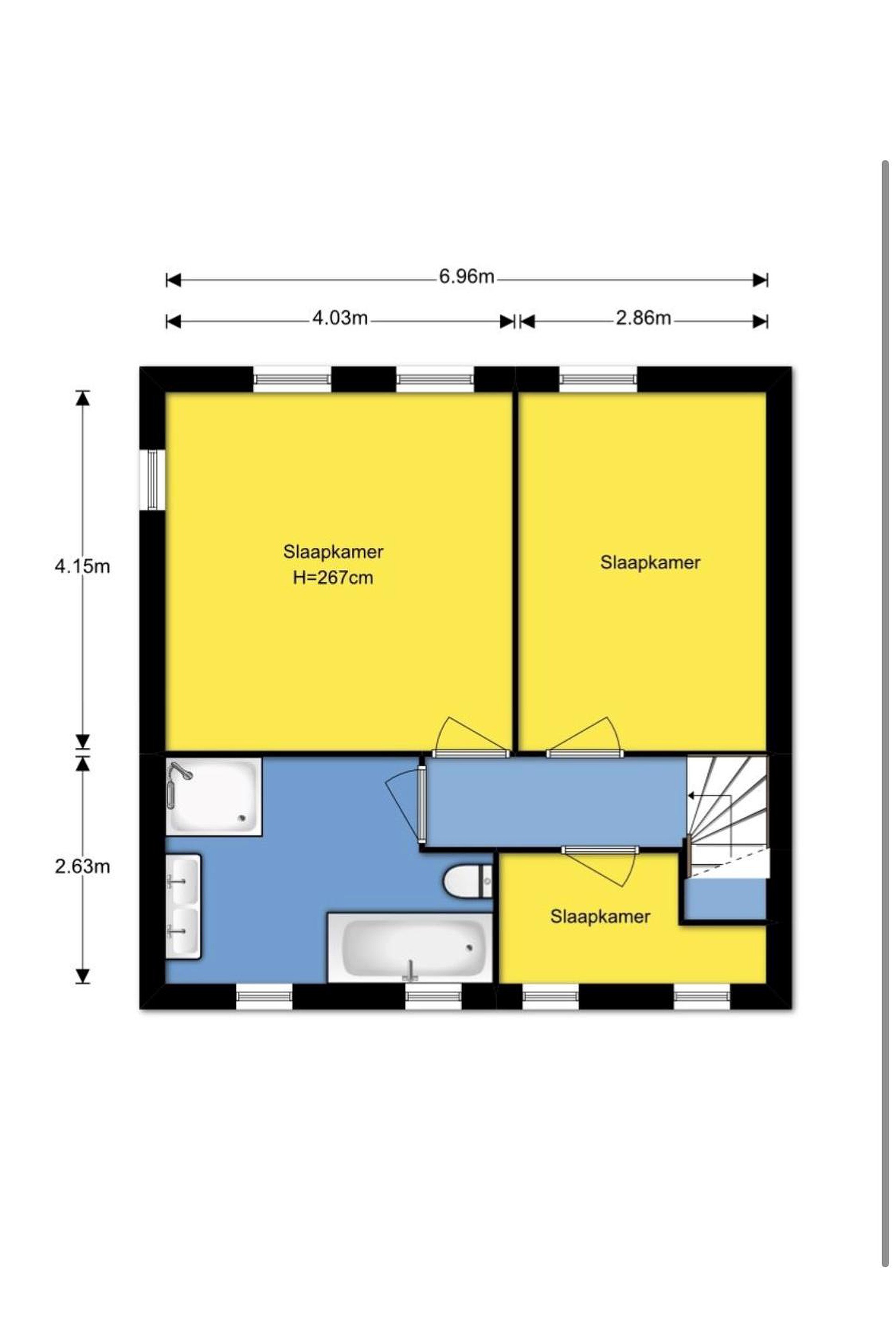
Second floor (sleeping and relaxing area)
Landing with access to one master bedroom and an additional room. One bedroom is fitted with a double bed, while the other is currently used as a hobby or fitness room. At the front, there is a separate walk-in closet. The flooring on this level is finished with engineered wood flooring.

The luxury bathroom, also located at the front, features a bathtub, rain shower, double washbasin, and wall-mounted toilet. The floor is finished with luxurious taupe Mosa tiles.

L O C A T I O N

- Located in Europakwartier, Almere Poort
- Quiet yet central residential area
- Walking distance to supermarkets, sports facilities and public transport
- Easy access to A6 (Almere & Amsterdam)
- Almere Poort train station nearby
- Close to Cascadepark and Homeruspark
- Near Almeerderstrand (beach & water sports)
- Restaurants, beach clubs and events nearby

S E L E C T I O N

Allocation Criteria for a Rental Property – NEWCURB Makelaars:
- Order of response
- Source of income / type of employment contract
- Income level (minimum 3x the monthly rent)
- Rental history
- Household composition
- Positive screening

We advise based on objective criteria; however, the final decision rests with the property owner.

D I S C L A I M E R

This information has been compiled with due care. However, no liability is accepted for any inaccuracies or incompleteness, nor for the consequences thereof. All measurements and surface areas are indicative. The final level of furnishing may differ from the photos.
Lees meer

Verhuurgeschiedenis

Aangeboden sinds
14 april 2026
Verhuurdatum
19 mei 2026
Looptijd
één maand

Kenmerken

Overdracht

Aangeboden sinds
14 april 2026
Status
Verhuurd
Aanvaarding
Direct
Bijzonderheden
Gemeubileerd

Bouw

Soort woonhuis
Eengezinswoning, hoek woning
Soort bouw
Bestaande bouw
Bouwjaar
2008
Soort dak
Plat dak
Staat van onderhouden binnen
Uitstekend
Staat van onderhouden buiten
Uitstekend

Oppervlakte en inhoud

Perceeloppervlakte
99 m2
Inhoud van de woning
456 m3

Indeling

Aantal kamers
4
Aantal slaapkamers
3
Aantal woonlagen
3
Voorzieningen
Balkon

Buitenruimte

Balkon
Ja
Schuur/berging
Nee

Maandlasten berekenen

De maandlasten voor je woning bestaan uit meer dan alleen de hypotheeklasten. Hieronder vind je een overzicht van de bijkomende kosten en lasten. Zo weet je precies wat je huis per maand gaat kosten. En met de handige vergelijkers kun je ook nog eens snel de beste deals sluiten!

  • Kaart
  • Streetview