Professor Cobbenhagenlaan 5037 Tilburg

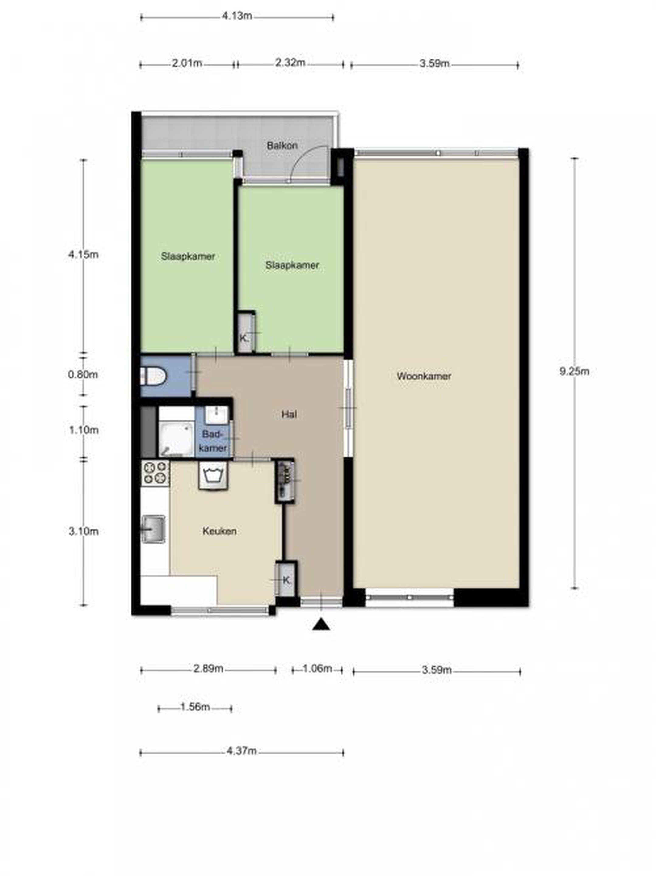
74m2
Wonen
3
Kamers
0m2
Perceel
Bouwjaar
Bemiddelingskosten
Nee
Object
Direct bij de eigenaar
Borg
860
Garantiestelling
Mogelijk
Huurtoeslag
Niet mogelijk
Inkomen eis
2,8 X Maandhuur Bruto
Huurtermijn
Onbepaalde termijn
Oplevering
Kaal
Lees meer

Kenmerken

Overdracht

Aangeboden sinds
8 november 2025
Status
Beschikbaar
Aanvaarding
In overleg

Bouw

Soort appartement
Bovenwoning, appartement
Soort bouw
Bestaande bouw
Bouwjaar

Oppervlakte en inhoud

Indeling

Aantal kamers
3
Aantal slaapkamers
2
Aantal woonlagen
1
Voorzieningen

Buitenruimte

Balkon
Nee
Schuur/berging
Nee

Maandlasten berekenen

De maandlasten voor je woning bestaan uit meer dan alleen de hypotheeklasten. Hieronder vind je een overzicht van de bijkomende kosten en lasten. Zo weet je precies wat je huis per maand gaat kosten. En met de handige vergelijkers kun je ook nog eens snel de beste deals sluiten!

  • Kaart
  • Streetview