Janssteeg 6 6811 GC Arnhem

120m2
Wonen
3
Kamers
0m2
Perceel
1998
Bouwjaar
Waar vind je in hartje centrum van Arnhem een gemeubileerde woning met twee royale slaapkamers en een ruime garage? Met alle faciliteiten, de leukste restaurantjes om de hoek maar toch rustig gelegen?

Bent u op zoek naar een dergelijke woning dan is dit wellicht uw ideale corporate apartment!

Deze luxe uitgevoerde gemeubileerde bovenwoning met 2 slaapkamers, patio en ruime garage is vrij uniek, zowel qua ligging als in afwerking.

De woning is gelegen op loopafstand van het centraal station (rechtstreekse verbinding met Amsterdam), winkels, bioscoop, restaurants en cafés.
Diverse uitvalswegen zijn uitstekend bereikbaar. De bewoner kan een ontheffing aanvragen voor de binnenstad om zo direct aan te rijden op de inpandige parkeergarage.

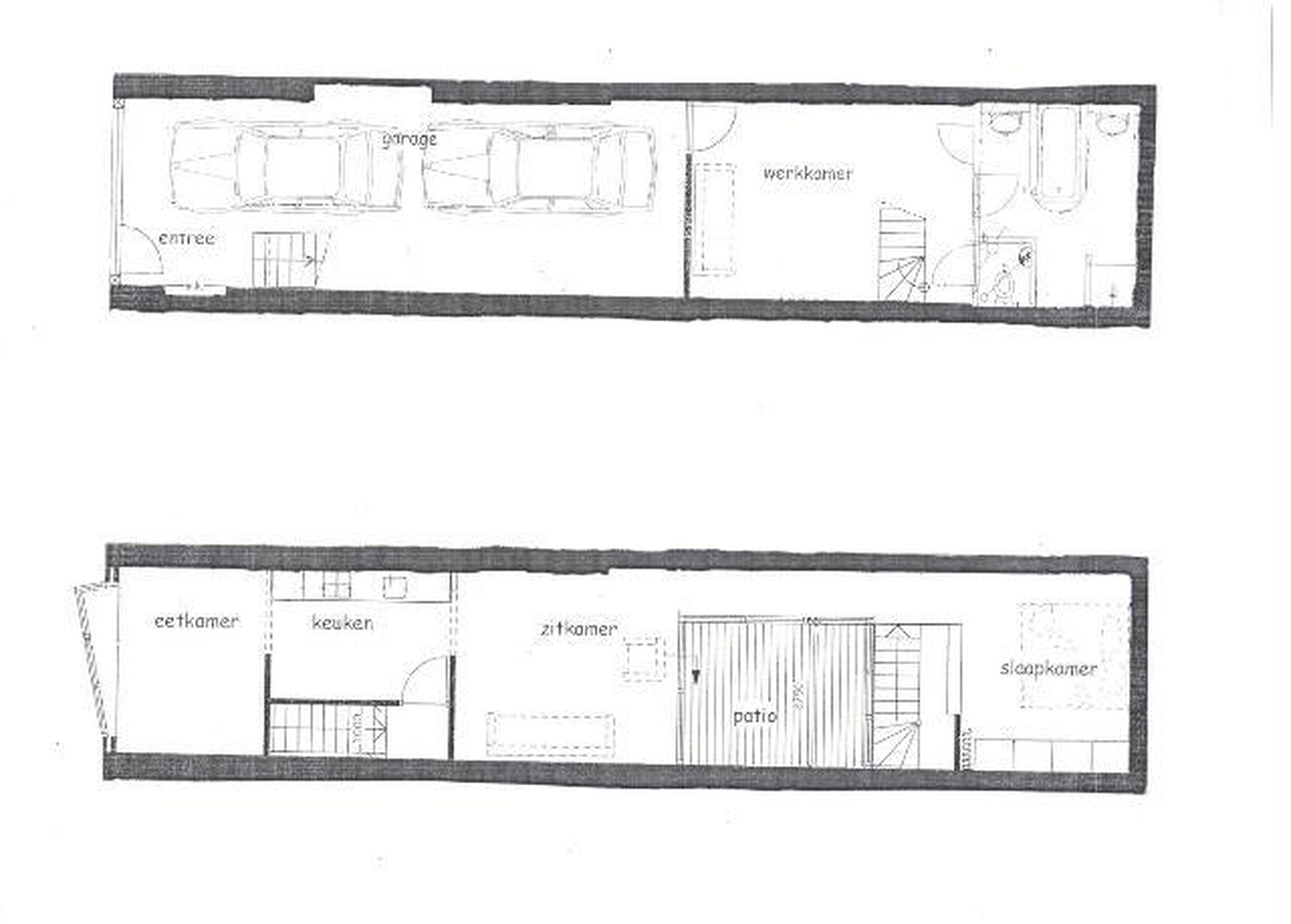
Indeling:
Begane grond:
Entree, ruime garage met automatische deuren en luchtzuiveringssysteem.
Toegangsdeur naar trap welke leidt naar de woonverdieping. Op de begane grond is nog een tweede ingang die uitkomt in de beneden gelegen ruime ouderslaapkamer en op dit niveau bevindt zich ook de badkamer met royaal ligbad, toilet, inloopdouche en dubbel wastafelmeubel. Een interne trap leidt naar de eerste verdieping.

Ruime woonkamer voorzien van houten vloeren, luxe open keuken met natuurstenen blad en voorzien van Atag apparatuur, waaronder een vaatwasser, 5-pits gaskookplaat, afzuigkap, koel/vriescombinatie en combi oven. Doorloop naar de 2e slaapkamer voorzien van ruime kastenwand, voorzien van een eenpersoonsbed, maar wat eventueel kan worden vervangen door een tweepersoonsbed.
Midden in het appartement is op speelse wijze een patio gerealiseerd welke via een schuifdeur bereikt wordt . Hier kan je in alle rust genieten van de zomeravonden.

Bijzonderheden:
- Energielabel A;
- De woning is volledig en zeer smaakvol gemeubileerd;
- Twee ruime slaapkamers;
- Badkamer met inloopdouche, dubbel wastafelmeubel en royaal ligbad;
- Ruime garage;
- Midden in het centrum van Arnhem gelegen;
- Zeer luxe afwerking;
- Voorzien van dubbele beglazing;
- Woonoppervlakte (120 m2) is exclusief de garage;
- Beschikbaar voor langere periode.

Exclusief g/w/e, tv, internet en lokale heffingen.

Wanneer u geinteresseerd bent in deze woning, kunt u via onze website www.blinqmakelaars.nl een bezichtiging inplannen.
Lees meer

Kenmerken

Overdracht

Aangeboden sinds
7 januari 2026
Status
Beschikbaar
Aanvaarding
In overleg
Bijzonderheden
Gemeubileerd

Bouw

Soort appartement
Bovenwoning, appartement
Soort bouw
Bestaande bouw
Bouwjaar
1998
Soort dak
Plat dak
Staat van onderhouden binnen
Uitstekend
Staat van onderhouden buiten
Uitstekend

Oppervlakte en inhoud

Indeling

Aantal kamers
3
Aantal slaapkamers
2
Aantal woonlagen
2
Voorzieningen

Buitenruimte

Balkon
Nee
Schuur/berging
Nee

Maandlasten berekenen

De maandlasten voor je woning bestaan uit meer dan alleen de hypotheeklasten. Hieronder vind je een overzicht van de bijkomende kosten en lasten. Zo weet je precies wat je huis per maand gaat kosten. En met de handige vergelijkers kun je ook nog eens snel de beste deals sluiten!

  • Kaart
  • Streetview