Verhuurd

Ir J.p. van Muijlwijkstraat 392 6828 BR Arnhem

79m2
Wonen
3
Kamers
0m2
Perceel
1955
Bouwjaar
Aan de rand van het centrum ligt de ir. J.P. van Muijlwijkstraat, parallel aan de gezellige en bruisende Steenstraat. Zowel de winkels als de diverse stations zijn op loopafstand aanwezig. Dit zonnige gemeubileerde driekamerappartement (twee slaapkamers) ligt op de bovenste etage van een klein complex. De grote ramen aan voor-en achterzijde zorgen voor een doorzonwoning met veel natuurlijke lichtinval. Daarnaast zijn aan zowel voor- als achterzijde ruime balkons aanwezig! Het appartement kent een ruime indeling en is smaakvol gemeubileerd.

Indeling
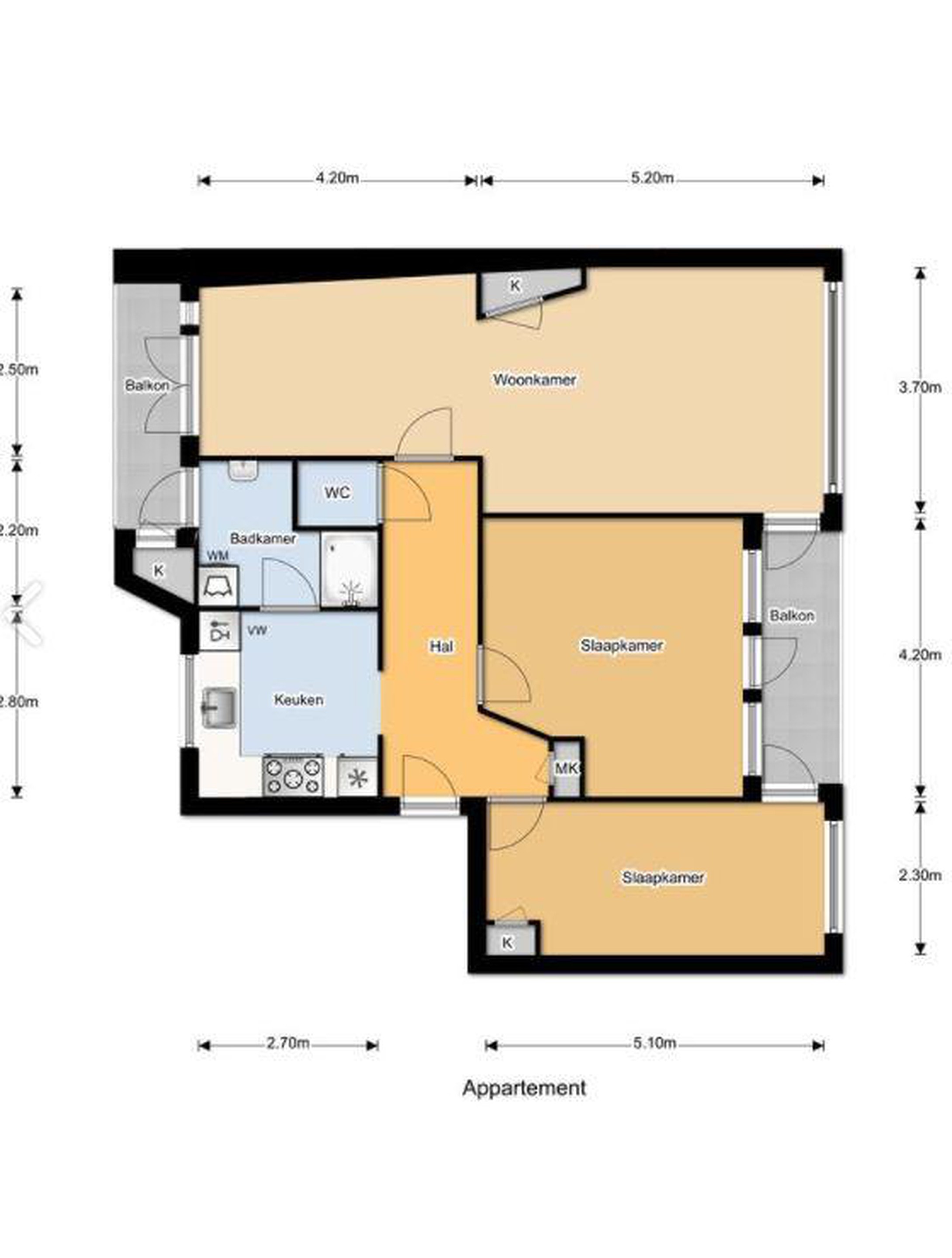
Entree complex, trap naar verdieping en entree appartement met aan de rechterzijde toegang tot de eerste slaapkamer die toegang biedt tot het balkon aan de voorzijde. Links van de gang is de toegang tot de keuken. Deze ruime keuken met veel aanrechtbladruimte heeft een inbouw koel-vriescombinatie een 5-pits Bosch gasfornuis, inbouw heteluchtoven en grill en inbouw vaatwasser.

Aangrenzend badkamer met ruime inloopdouche met regendouche. Boven de inloopdouche is actieve ventilatie. De douche is voorzien van een vaste wastafel en kolomkast. In de badkamer is tevens de wasmachine.

Terug in de gang is er aan de rechterzijde de tweede slaapkamer, eveneens met toegang tot het balkon. Aan de linkerkant van de gang bevindt zich het toilet, terwijl aan het einde van de gang de woonkamer is. De woonkamer is 9,40 meter diep en loopt van voor tot achterzijde van het appartement. Aan de voorzijde zijn grote ramen over de gehele breedte geplaatst die zorgen voor veel natuurlijk licht. Een deur, eveneens met veel glas biedt toegang tot het balkon. De ramenpartij aan de voorzijde zorgt voor zicht op het centrum van Arnhem. Aan de achterzijde staat de eetkamertafel en is toegang tot het balkon aan de achterzijde via de openslaande deuren. Het balkon aan de achterzijde is nog ruimer dan het balkon aan de voorzijde en biedt veel mogelijkheden om in alle rust buiten te zitten.

Bij dit appartement hoort ook een ruime inpandige berging van 9 m2 die veel opslagruimte biedt. De berging is ideaal voor het plaatsen van meerdere fietsen.

Bijzonderheden:

- Zonnig driekamer doorzon appartement op bovenste etage
- Zeer centraal gelegen
- Twee balkons waarvan de voorste op het zuiden
- Ruime inpandige berging, geschikt voor stalling van fietsen
- Volledig gemeubileerd
- Nabij centraal station
- Geschikt voor maximaal 2 personen
- Niet geschikt voor studenten/woningdelers
- Huisdieren niet toegestaan
- Huur is inclusief maandelijkse schoonmaak van 2,5 uur
- Energielabel C

Exclusief g/w/e, tv, internet, lokale heffingen en € 65,00 servicekosten per maand.

Heeft u belangstelling voor dit appartement? Schrijf u dan nu geheel vrijblijvend en kosteloos in via onze website www.blinqmakelaars.nl.
Lees meer

Verhuurgeschiedenis

Aangeboden sinds
11 september 2025
Verhuurdatum
17 oktober 2025
Looptijd
één maand

Kenmerken

Overdracht

Aangeboden sinds
11 september 2025
Status
Verhuurd
Aanvaarding
Per datum
Bijzonderheden
Gemeubileerd

Bouw

Soort appartement
Bovenwoning, appartement
Soort bouw
Bestaande bouw
Bouwjaar
1955
Staat van onderhouden binnen
Uitstekend
Staat van onderhouden buiten
Uitstekend

Oppervlakte en inhoud

Inhoud van de woning
234 m3
Oppervlakte gebouwgebonden buitenruimten
10 m2

Indeling

Aantal kamers
3
Aantal slaapkamers
2
Aantal woonlagen
1
Voorzieningen
Tuin, balkon

Buitenruimte

Balkon
Ja
Schuur/berging
Nee

Maandlasten berekenen

De maandlasten voor je woning bestaan uit meer dan alleen de hypotheeklasten. Hieronder vind je een overzicht van de bijkomende kosten en lasten. Zo weet je precies wat je huis per maand gaat kosten. En met de handige vergelijkers kun je ook nog eens snel de beste deals sluiten!

  • Kaart
  • Streetview