Verhuurd

Jan Tooropstraat 6256 1061 AE Amsterdam

120m2
Wonen
5
Kamers
120m2
Perceel
2006
Bouwjaar
This very luxurious and spacious 5-room apartment is located on the sixth floor (the top floor) of a comfortable new construction complex equipped with an elevator and a shared inner courtyard. The property is very attractive and has an excellent location: within 10 minutes by bike you are in the heart of Amsterdam! Additionally, it is ideally situated in relation to the A10 ring road, Schiphol, the Zuidas, public transportation, and several parks.

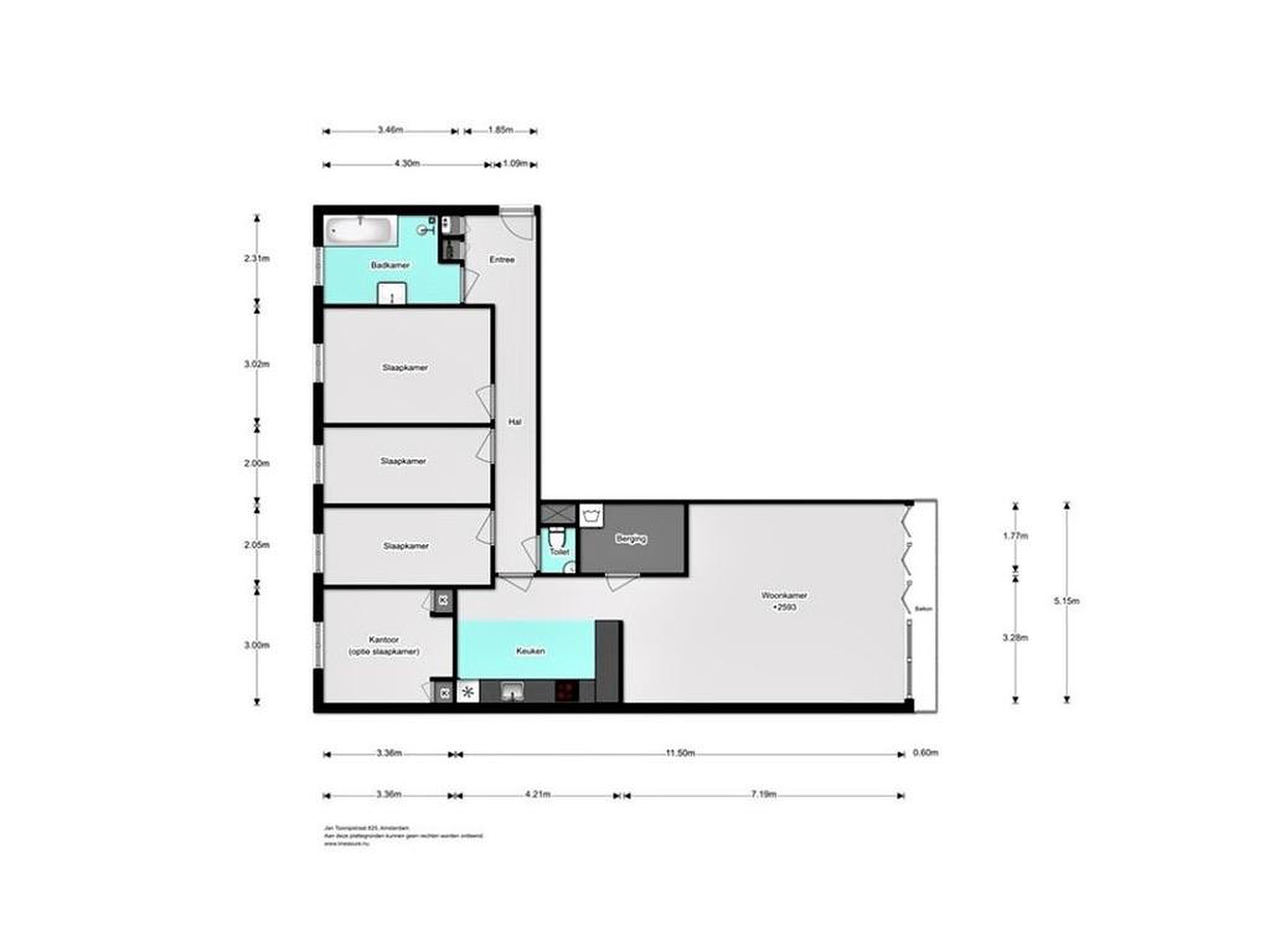
Layout: Central entrance with elevator access to the apartment on the sixth floor. Beautiful hallway with access to all rooms. Firstly, access to the modern bathroom equipped with a bathtub, separate shower, and a vanity unit. Separate toilet with sink. Three full-sized bedrooms, one of which is furnished as a dressing room on the photos. Lovely steel door providing access to the spacious living room with open kitchen. From the living room, access to a delightful west-facing balcony. The kitchen is equipped with various built-in appliances, including a refrigerator and large freezer, induction hob with extractor hood, dishwasher, oven, combination microwave, and a Quooker. From the kitchen, there is also access to the dining room through sliding doors. This space can also serve well as a work/study room. Furthermore, from the kitchen, there is access to a very spacious storage/laundry room. In the basement, there is an indoor communal bicycle storage available.

Within walking distance, you will find the metro, tram, and various bus connections. Additionally, just a few minutes' walk away are the Rembrandtpark and the Sloterplas for leisure. Various shops and restaurants can also be found in the immediate vicinity.

In short, a spacious and practically laid out apartment in a great location.

It is possible to rent a parking space in the underground parking garage.

Details:
- Size of the property: 120 m2
- Number of bedrooms: 3 bedrooms + 1 additional bedroom ensuite to kitchen
- Number of bathrooms: 1
- Type of house: Apartment
- Construction year of the house: 2006
- Interior decoration: Semi-furnished
- Flooring: Laminate
- Quality of public transportation: Good

Also in this rental house:
- Optionally a garage place is possible for an additional € 100,- per month
- Separate shower
- Bath tub
- Separate toilet
- Elevator
- Storage: box
- 6th floor
- Energy label: A
- Balcony (facing South-West)

Appliances:
- Fridge: Available
- Freezer: Available
- Dishwasher: Available
- Oven: Available
- Microwave: Available
- Washer: Not available
- Dryer: Not available

Conditions:
- Pets allowed
- Sharing allowed for two professional working people
- No guarantors, the tenant needs to be able to pay the rent himself
- Smoking not allowed
- Children allowed
- Measurements not conform NEN 2580
- Type of rental agreement: model C for long term

The rental price of this house is exclusive Gas/Electricity/Water, TV/Internet and local Taxes.
Lees meer

Verhuurgeschiedenis

Aangeboden sinds
17 maart 2026
Verhuurdatum
30 maart 2026
Looptijd
13 dagen

Kenmerken

Overdracht

Aangeboden sinds
17 maart 2026
Status
Verhuurd
Aanvaarding
Direct

Bouw

Soort appartement
Bovenwoning, appartement
Soort bouw
Bestaande bouw
Bouwjaar
2006
Staat van onderhouden binnen
Uitstekend
Staat van onderhouden buiten
Uitstekend

Oppervlakte en inhoud

Indeling

Aantal kamers
5
Aantal slaapkamers
4
Aantal woonlagen
1
Voorzieningen
Balkon, schuur/berging, lift

Buitenruimte

Balkon
Ja
Schuur/berging
Ja

Maandlasten berekenen

De maandlasten voor je woning bestaan uit meer dan alleen de hypotheeklasten. Hieronder vind je een overzicht van de bijkomende kosten en lasten. Zo weet je precies wat je huis per maand gaat kosten. En met de handige vergelijkers kun je ook nog eens snel de beste deals sluiten!

  • Kaart
  • Streetview