Verhuurd

Meester G. Groen van Prinstererlaan 33 1181 TN Amstelveen

105m2
Wonen
4
Kamers
105m2
Perceel
1955
Bouwjaar
This apartment is highly valued for its exceptional centrality and convenience. The street features easy access to the entire Stadshart Amstelveen, including its large shopping center, theater, restaurants, and other urban amenities, all within a short walk. Despite being so central, the location remains appealing due to its proximity to the vast Amsterdamse Bos for recreation. The area is exceptionally well-connected by public transport and major road arteries, making it an ideal choice for quick access to Amsterdam and Schiphol.

Details:
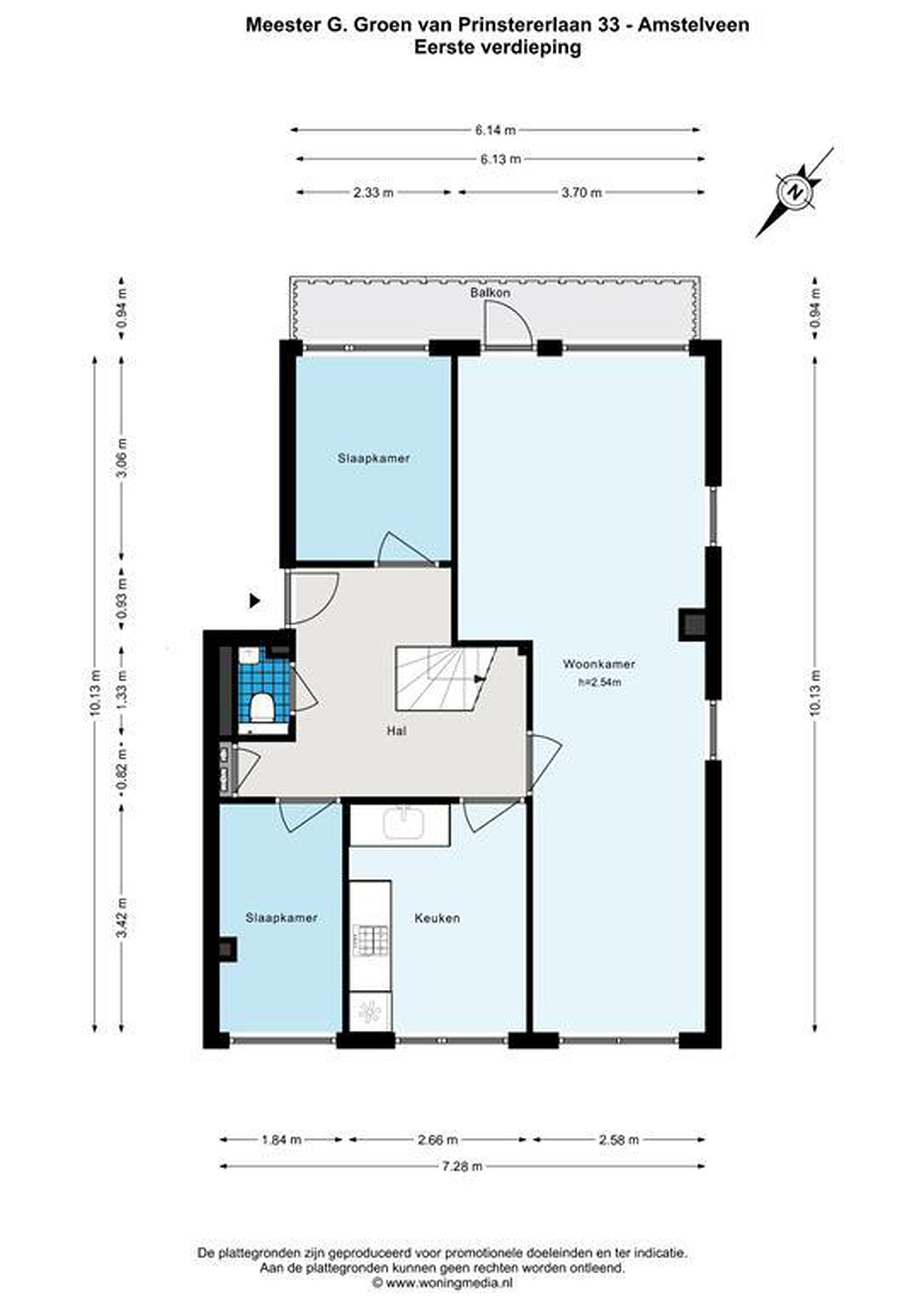
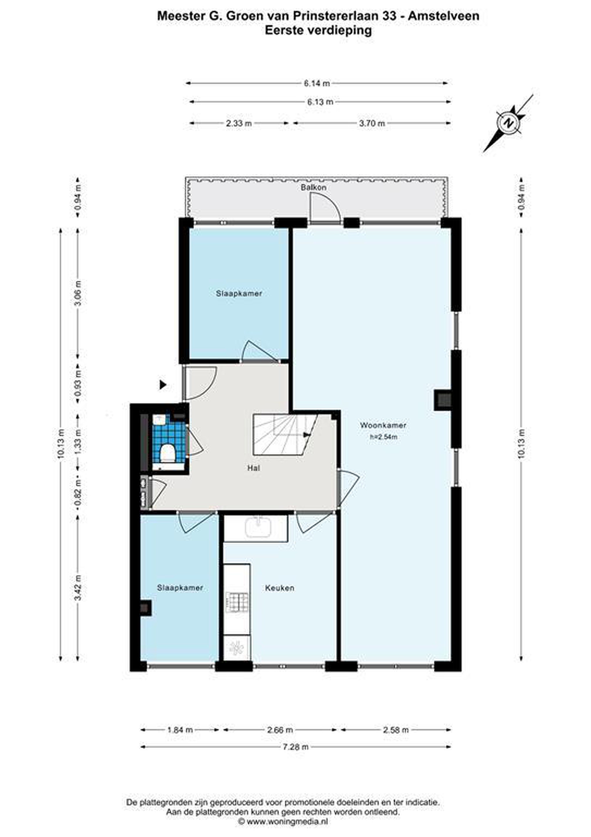
Size of the house: 105 m2
Number of bedrooms: 3 (one big size and one small size)
Number of bathrooms: 1
Type of house: Apartment
Quality of public transportation: Good
Interior decoration: Upholsted (semi-furnished)
Flooring: Laminate

Also in this rental house:
Parking possibility: Permit
Separate shower
Separate toilet
Storage: box
Balcony
1st and 2nd floor
Lees meer

Verhuurgeschiedenis

Aangeboden sinds
20 november 2025
Verhuurdatum
30 december 2025
Looptijd
één maand

Kenmerken

Overdracht

Aangeboden sinds
20 november 2025
Status
Verhuurd
Aanvaarding
Per datum

Bouw

Soort appartement
Bovenwoning, appartement
Soort bouw
Bestaande bouw
Bouwjaar
1955
Staat van onderhouden binnen
Uitstekend
Staat van onderhouden buiten
Uitstekend

Oppervlakte en inhoud

Indeling

Aantal kamers
4
Aantal slaapkamers
3
Aantal woonlagen
2
Voorzieningen
Balkon, schuur/berging

Buitenruimte

Balkon
Ja
Schuur/berging
Ja

Maandlasten berekenen

De maandlasten voor je woning bestaan uit meer dan alleen de hypotheeklasten. Hieronder vind je een overzicht van de bijkomende kosten en lasten. Zo weet je precies wat je huis per maand gaat kosten. En met de handige vergelijkers kun je ook nog eens snel de beste deals sluiten!

  • Kaart
  • Streetview