Verhuurd

Bevelandselaan 99 1181 JN Amstelveen

80m2
Wonen
3
Kamers
80m2
Perceel
1965
Bouwjaar
Details:
Size of the house (m2) approximately 80 m2
Number of bedrooms: 2
Number of bathrooms: 1
Type of house: Apartment
Quality of public transportation: Good
Interior decoration: Furnished
Flooring: Wood
5th floor

Also in this apartment:
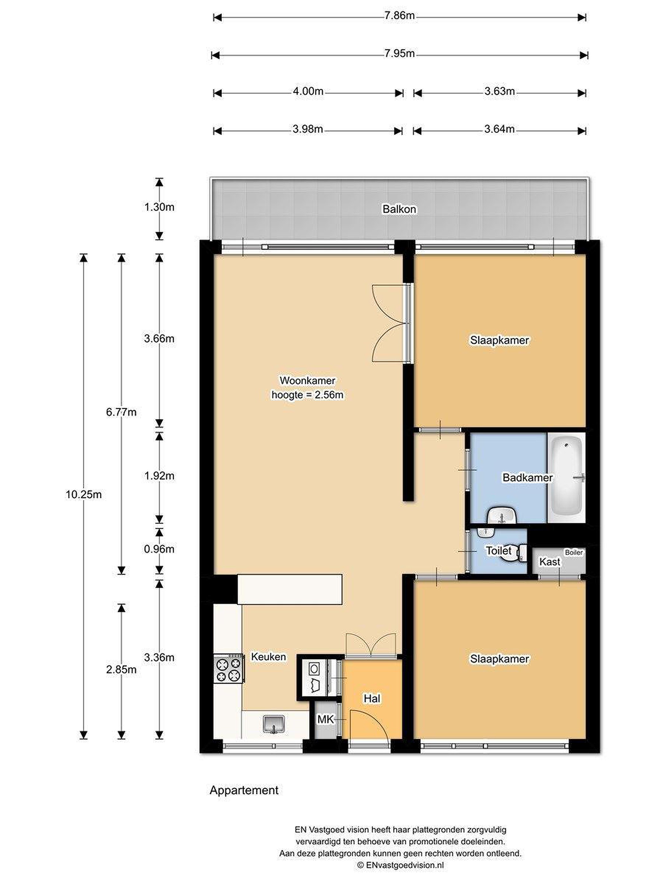
This attractive, furnished apartment with 80m2 living space has two double bedrooms, and is situated on the 5th floor. The quality and presentation of the furniture is classic with a modern twist. The building is in walking distance of an international grocery market and public transport.

Lay-out
Entrance: The hallway has an airy feeling due to the glass door that leads into a large living and dining area.

Living room: the apartment is a large, sunny living/dining room with a nice laminate floor throughout the whole apartment. Large windows, have access to a balcony that is the full length of the apartment. This looks look out on to the well kept, spacious, greenery.

Kitchen: The open plan, U- shaped, kitchen is an eye catcher due to the modern apple green cabinets. The kitchen is equipped with all modern appliances and is situated on the front of the flat.

Bedrooms: The bedrooms are very light, due to the large windows,
Both bedrooms are spacious and are very suitable as double bedrooms. One has access to the balcony.

Bathroom: The bathroom is tiled from top to bottom with genuine marble and has a bathtub, shower over the tub, sink . The high quality, atmosphere and style of the rest of the apartment is continued here.

Location:
The flat is located in north Amstelveen close to two large shopping malls and walking distance from the local shops, between the WTC and Amstelveen centre. There is more than sufficient parking space in front of the apartment.

Shopping centre: Plein 60 in Amstelveen and Gelderlandplein in Buitenveldert.
Public transportation:
metro/tram 51 central station- WTC – Amstelveen Westwijk
5 central station- WTC- Plein 60
Busses: 142 Wilnis/Uithoorn – central station Amsterdam
147 Alphen aan de Rijn/Nieuwkoop – Amstelveen busstation
170 Uithoorn – central station Amsterdam
172 Kudelstaart/Aalsmeer - central station Amsterdam
Ring road connect to A9, A2, A10 and A4 and busses to Schiphol.
Sport facilities: All Sports + swimming pool - Cricket, rugby, tennis, football etc.
Restaurants: Amstelveen centre and the old village of Amstelveen

On top of the rental price comes an advance payment of € 75,- for block heating and warm water.
Lees meer

Verhuurgeschiedenis

Aangeboden sinds
20 november 2025
Verhuurdatum
2 december 2025
Looptijd
12 dagen

Kenmerken

Overdracht

Aangeboden sinds
20 november 2025
Status
Verhuurd
Aanvaarding
Direct
Bijzonderheden
Gemeubileerd

Bouw

Soort appartement
Bovenwoning, appartement
Soort bouw
Bestaande bouw
Bouwjaar
1965
Staat van onderhouden binnen
Uitstekend
Staat van onderhouden buiten
Uitstekend

Oppervlakte en inhoud

Indeling

Aantal kamers
3
Aantal slaapkamers
2
Aantal woonlagen
1
Voorzieningen
Balkon, schuur/berging, lift

Buitenruimte

Balkon
Ja
Schuur/berging
Ja

Maandlasten berekenen

De maandlasten voor je woning bestaan uit meer dan alleen de hypotheeklasten. Hieronder vind je een overzicht van de bijkomende kosten en lasten. Zo weet je precies wat je huis per maand gaat kosten. En met de handige vergelijkers kun je ook nog eens snel de beste deals sluiten!

  • Kaart
  • Streetview