Prinsessenpark 9 3331 GZ Zwijndrecht

118m2
Wonen
5
Kamers
202m2
Perceel
1987
Bouwjaar
Prinsessenpark 9 – Moderne luxe, verrassend veel ruimte en helemaal instapklaar!

Wonen aan het Prinsessenpark 9 betekent kiezen voor comfort, ruimte en een smaakvolle afwerking. Deze moderne 2-onder-1-kapwoning is tot in de puntjes verzorgd. Bij binnenkomst valt meteen de ruime en lichte woonkamer op. Door het doorbreken van de garage is er een prachtige extra ruimte ontstaan die naadloos aansluit op de living. Een plek waar je alle kanten mee op kunt: werk je graag vanuit huis, heb je een creatieve hobby of wil je gewoon een extra relaxplek? De ruimte is er uitstekend geschikt voor.

De open keuken is een echte blikvanger. Luxe uitgevoerd, voorzien van alle moderne apparatuur en perfect gepositioneerd om gezellig te koken terwijl je in contact blijft met de rest van het gezin of je gasten.

Op de eerste verdieping wachten drie slaapkamers, waarvan de twee kamers aan de achterzijde extra royaal zijn dankzij de brede dakkapel. De nette, verzorgde badkamer completeert deze verdieping en biedt alles wat je nodig hebt. Op de tweede verdieping is er nog een ruime slaapkamer.

De oprit biedt ruimte om op eigen terrein te parkeren, en de heerlijke achtertuin ins onderhoudsvriendelijk en maakt dat je hier in alle rust kunt genieten van het buitenleven.

Prinsessenpark 9 is een woning die modern is afgewerkt, instapklaar is en ideaal voor wie ruimte zoekt zonder te hoeven klussen. Hier woon je royaal, comfortabel en op een prachtige kindvriendelijke plek in Zwijndrecht aan een doodlopende weg.
Begane grond
HAL
Entree met toiletruimte, meterkast, trap naar de verdieping en toegang tot de woonkamer.

WOONKAMER
De woonkamer is uitgevoerd met een schuifpui naar de tuin en trapkast. En er is een doorgang naar een voormalige kantoorruimte welke nu in gebruik is als relaxruimte. (voormalig gedeelte van de garage)

KEUKEN (2022)
Luxe keuken welke is voorzien van de volgende inbouwapparatuur:
- koelkast
- vriezer
- vaatwasser
- inductiekookplaat met afzuiging (Bora)
- koffiezetapparaat
- oven (stoom & heteluchtoven)

Eerste verdieping
De gehele eerste verdieping is voorzien van een PVC vloer.

OVERLOOP
Met toegang tot de vertrekken en vaste trap naar de verdieping.

SLAAPKAMER 1
Ruime slaapkamer aan de achterzijde met kunststof dakkapel voorzien van rolluik.

SLAAPKAMER 2
Ruime slaapkamer aan de voorzijde met openslaande deuren naar het balkon

BADKAMER
Moderne badkamer met wastafelmeubel, tweede toilet en ligbad voorzien van douchecabine.

SLAAPKAMER 3
Ruime slaapkamer aan de achterzijde met kunststof dakkapel voorzien van rolluik.

Tweede verdieping
Gehele tweede verdieping voorzien van PVC vloer.

VOORZOLDER
Met aansluiting wasapparatuur en opstelling combiketel (2017 - binnenzijde in 2022 geheel vervangen). Bergruimte achter de schuifdeuren en toegang tot bergzolder.

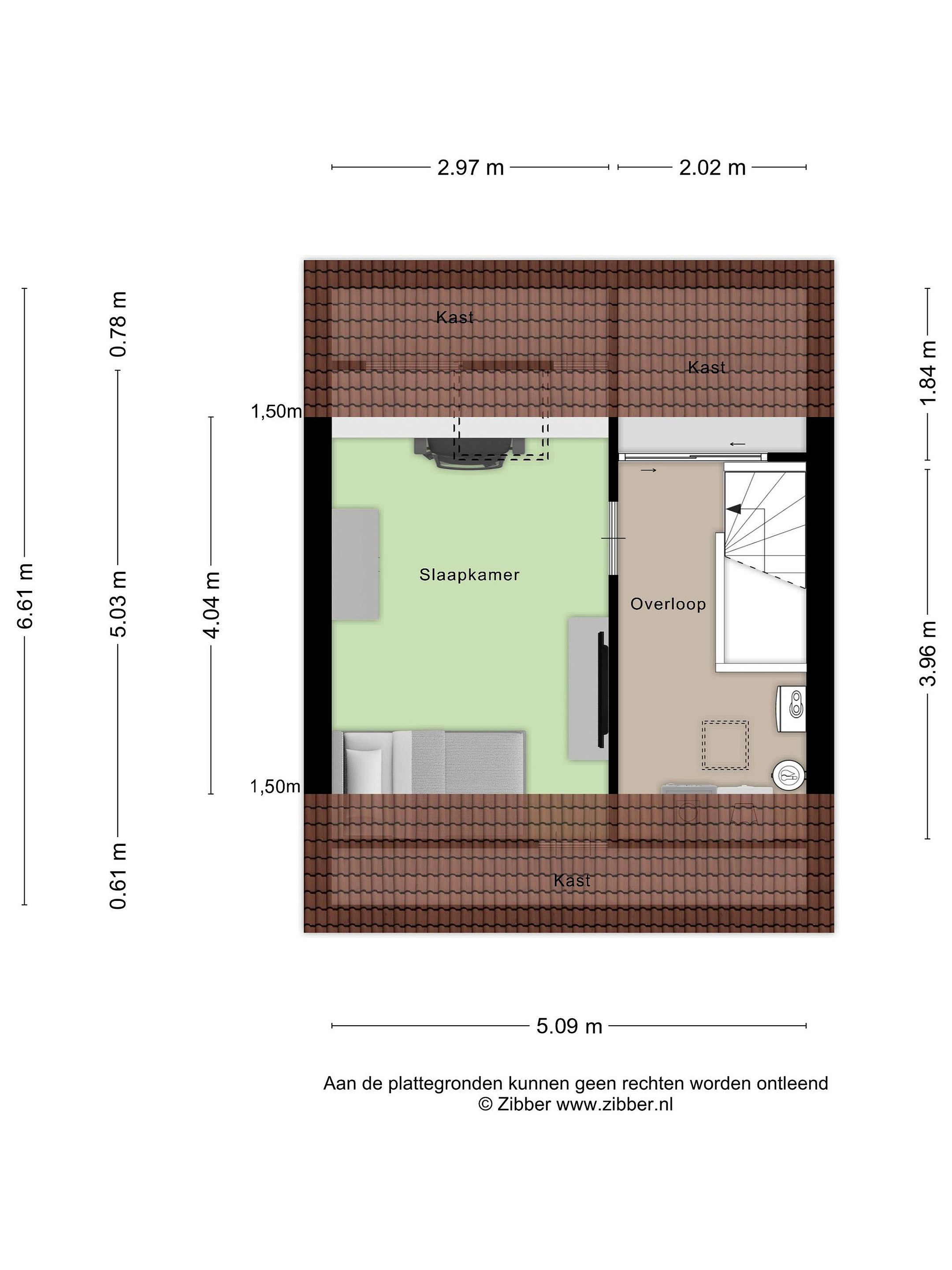
SLAAPKAMER 4
Ruime slaapkamer met dakvenster en bergruimte achter de knieschotten. Deze slaapkamer is voorzien van een daikin airconditioning welke naast koelen ook kan verwarmen.


Details
- De woning is opgemeten conform de branche brede meetinstructie. Deze meetinstructie is gebaseerd op de NEN2580. De meetinstructie is bedoeld om een meer eenduidiger manier van meten toe te passen voor het geven van een indicatie van de gebruiksoppervlakte. De meetinstructie sluit verschillen in meetuitkomsten niet volledig uit, door bijvoorbeeld interpretatieverschillen, afrondingen of beperkingen bij het uitvoeren van de meting.

- Bezichtigingen uitsluitend op afspraak met en via Bremmer Makelaars

- Oplevering: in overleg

- Voor de maatvoering verwijzen wij naar de plattegronden elders op de website of naar de brochure.

- De notariële eigendomsoverdracht zal plaatsvinden bij de notaris van de kopers keuze, mits deze is gelegen in een straal van 15km rondom de woning. Verkopers eventuele meerkosten (zoals reiskosten, notariële volmacht, e.d.) als gevolg van kopers notariskeuze buiten dit gebied komen volledig voor rekening van koper.


Lees meer

Kenmerken

Overdracht

Prijs per m2
€ 4.449
Aangeboden sinds
28 november 2025
Status
Beschikbaar
Aanvaarding
In overleg

Bouw

Soort woonhuis
Eengezinswoning, geschakelde twee-onder-een-kap woning
Soort bouw
Bestaande bouw
Bouwjaar
1987
Soort dak
Zadeldak
Staat van onderhouden binnen
Goed
Staat van onderhouden buiten
Goed

Oppervlakte en inhoud

Perceeloppervlakte
202 m2
Inhoud van de woning
465 m3
Oppervlakte externe bergruimte
1 m2
Oppervlakte gebouwgebonden buitenruimten
7 m2
Oppervlakte overige inpandige ruimten
13 m2

Indeling

Aantal kamers
5
Aantal slaapkamers
4
Aantal woonlagen
3
Voorzieningen
Tuin, schuur/berging, rolluiken, kabel-tv, buitenzonwering, airconditioning, dakraam

Buitenruimte

Balkon
Nee
Schuur/berging
Ja

Maandlasten berekenen

De maandlasten voor je woning bestaan uit meer dan alleen de hypotheeklasten. Hieronder vind je een overzicht van de bijkomende kosten en lasten. Zo weet je precies wat je huis per maand gaat kosten. En met de handige vergelijkers kun je ook nog eens snel de beste deals sluiten!

  • Kaart
  • Streetview