Koninginneweg 28 3331 CE Zwijndrecht

83m2
Wonen
4
Kamers
159m2
Perceel
1940
Bouwjaar
Instapklare sfeervolle hoekwoning met karakter op een geweldige locatie!

Op zoek naar een woning waar je zó in kunt trekken, midden in het centrum van Zwijndrecht? Deze instapklare hoekwoning ligt letterlijk om de hoek van winkelcentrum Walburg, het NS-station en het gezellige Veerplein — de perfecte mix van gemak en gezelligheid.

De woning is vakkundig verbouwd door aannemer Den Hoed uit Zwijndrecht, en dat zie je aan alles. Aan de achterzijde is er goed uitgebouwd, waardoor je geniet van een verrassend ruime woonkamer met veel lichtinval. De moderne afwerking combineert moeiteloos met de karakteristieke elementen die behouden zijn gebleven — precies die charmante details die een huis sfeer geven.

De keuken en badkamer zijn modern en praktisch ingericht, met oog voor kwaliteit en comfort. En alsof dat nog niet genoeg is: in de achtertuin wacht een gloednieuw buitenverblijf, ideaal om te ontspannen, te borrelen of lange zomeravonden met vrienden door te brengen.

Kortom: een woning die tot in de puntjes is afgewerkt, op een locatie waar alles binnen handbereik ligt. Hier combineer je comfort, karakter en centrumleven in één.
Begane grond
ENTREE:
Hal met toiletruimte, trap naar de verdieping en toegang tot de woonkamer.

WOONKAMER
Met aanbouw voorzien van openslaande deuren naar de tuin, sfeervolle erker, laminaatvloer afwerking en elektrische verwarming.

KEUKEN
De moderne keuken is voorzien van de volgende inbouwapparatuur
- 5 pits gaskookplaat
- afzuigkap
- vaatwasser
- koelkast
- oven
Er is een grote opbergruimte onder de trap.


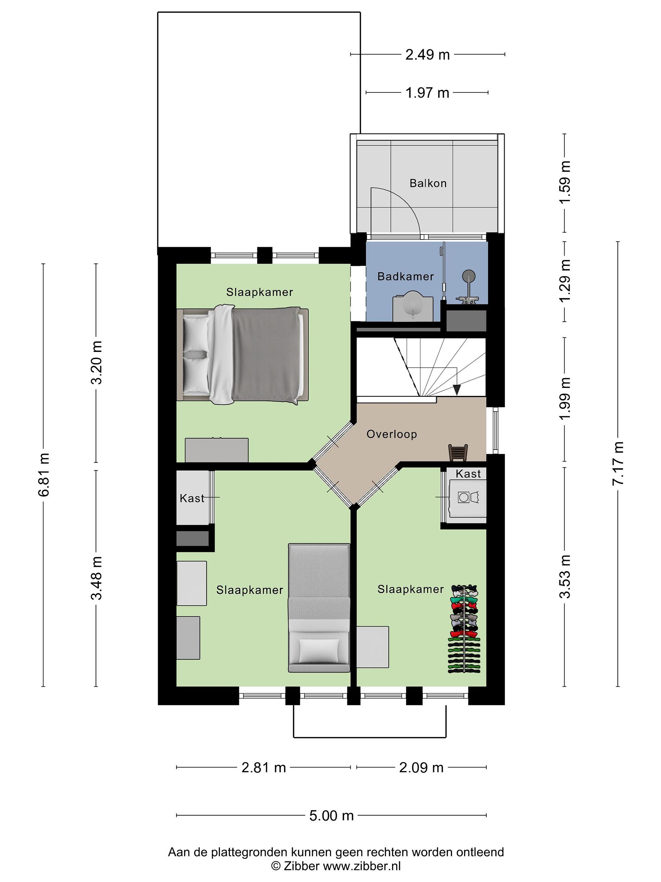
Eerste verdieping
OVERLOOP
Met toegang tot de vertrekken.

SLAAPKAMER
Ruime slaapkamer met vaste kast en toegang tot de badkamer.

BADKAMER
Met deur naar het balkon, douchecabine en wastafelmeubel.

SLAAPKAMER
Slaapkamer aan de voorzijde met vaste kast waarachter de aansluiting wasmachine zit.

SLAAPKAMER
Slaapkamer aan de achterzijde met vaste kast.

Tweede verdieping
De tweede verdieping is in gebruik als bergzolder. Op de bergzolder is ook de opstelling van de combiketel.

Details
- De woning is opgemeten conform de branchebrede meetinstructie. Deze meetinstructie is gebaseerd op de NEN2580. De meetinstructie is bedoeld om een meer eenduidiger manier van meten toe te passen voor het geven van een indicatie van de gebruiksoppervlakte. De meetinstructie sluit verschillen in meetuitkomsten niet volledig uit, door bijvoorbeeld interpretatieverschillen, afrondingen of beperkingen bij het uitvoeren van de meting.

- Bezichtigingen uitsluitend op afspraak met en via Bremmer Makelaars

- Oplevering: in overleg

- Voor de maatvoering verwijzen wij naar de plattegronden elders op de website of naar de brochure.

- De notariële eigendomsoverdracht zal plaatsvinden bij de notaris van de kopers keuze, mits deze is gelegen in een straal van 15km rondom de woning. Verkopers eventuele meerkosten (zoals reiskosten, notariële volmacht, e.d.) als gevolg van kopers notariskeuze buiten dit gebied komen volledig voor rekening van koper.

Lees meer

Kenmerken

Overdracht

Prijs per m2
€ 5.416
Aangeboden sinds
4 november 2025
Status
Beschikbaar
Aanvaarding
In overleg

Bouw

Soort woonhuis
Eengezinswoning, hoek woning
Soort bouw
Bestaande bouw
Bouwjaar
1940
Soort dak
Zadeldak
Staat van onderhouden binnen
Goed
Staat van onderhouden buiten
Goed

Oppervlakte en inhoud

Perceeloppervlakte
159 m2
Inhoud van de woning
302 m3
Oppervlakte externe bergruimte
10 m2
Oppervlakte gebouwgebonden buitenruimten
3 m2
Oppervlakte overige inpandige ruimten
2 m2

Indeling

Aantal kamers
4
Aantal slaapkamers
3
Aantal woonlagen
1
Voorzieningen
Tuin

Buitenruimte

Balkon
Nee
Schuur/berging
Nee

Maandlasten berekenen

De maandlasten voor je woning bestaan uit meer dan alleen de hypotheeklasten. Hieronder vind je een overzicht van de bijkomende kosten en lasten. Zo weet je precies wat je huis per maand gaat kosten. En met de handige vergelijkers kun je ook nog eens snel de beste deals sluiten!

  • Kaart
  • Streetview