Verkocht

Gunterstein 1 3334 CH Zwijndrecht

88m2
Wonen
4
Kamers
113m2
Perceel
1975
Bouwjaar
Energiezuinig & Instap klaar wonen in Nederhoven

Ben je op zoek naar een duurzame, comfortabele woning mét ruimte? Welkom op Gunterstein 1, waar jouw nieuwe thuis klaarstaat in de populaire wijk Nederhoven!

Ideale ligging & gezellige buurt

Het huis ligt op een rustig, kindvriendelijk straatje zonder doorgaand verkeer. Alles is hier dichtbij: scholen, supermarkten, speeltuintjes en het openbaar vervoer. Stap dus gerust even op je fiets; je bent zó in het centrum, aan de rivier of in het groen. Klinkt ideaal, toch?

Duurzaam wonen dankzij zonnepanelen én gasloos

Op Gunterstein 1 ga je met de tijd mee: hier draait alles om comfortabel en duurzaam leven. Zo is het huis voorzien van zonnepanelen die de energiekosten flink drukken—dat scheelt op jaarbasis behoorlijk in de portemonnee! En het beste is: deze woning is helemaal gasloos. Dat betekent klaar voor de toekomst én minder afhankelijkheid van schommelende tarieven. Slim!

Deze woning is écht ideaal voor jonge gezinnen én starters die de volgende stap willen zetten. Het huis is recent (2024) gemoderniseerd en o.a. voorzien van nieuwe keuken, toilet, badkamer en zonnepanelen (2024/2025).

Kortom, wil je zorgeloos én duurzaam wonen, dan is dit jouw kans! Kom gerust eens kijken. Gunterstein 1 voelt meteen als thuis—maar pas op, voor je ’t weet wil je niet meer weg...
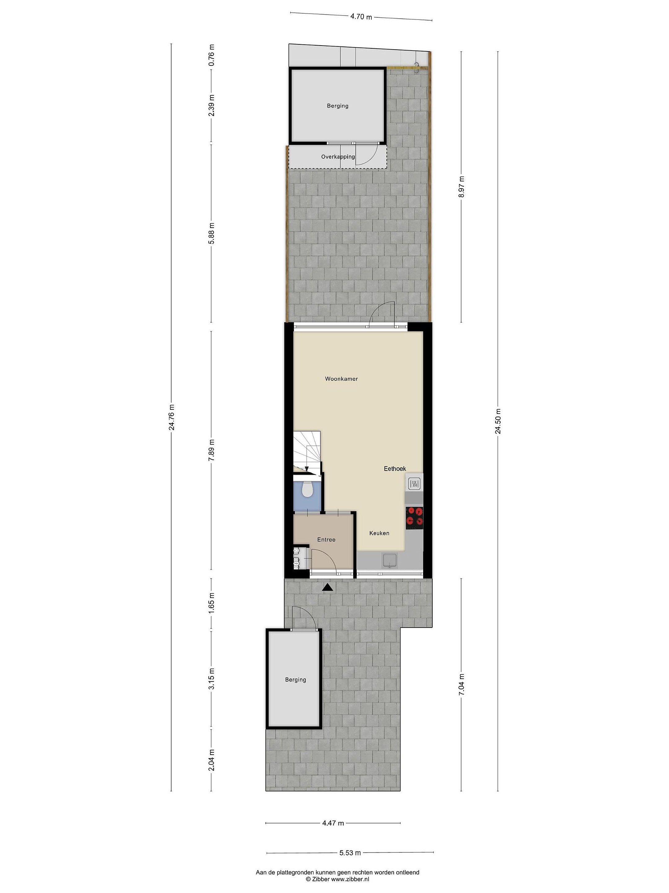
Begane grond
Entree;
Hal met toilet en meterkast.

Woonkamer:
De woonkamer is voorzien van een moderne wand en vloer afwerking; deur naar de tuin en trap naar de verdieping.

Keuken (2024):
Luxe keuken v.v. inbouwapparatuur (inductiekookplaat, combi oven, vaatwasser, koelkast, afzuigkap).


Eerste verdieping
Overloop met toegang tot de vertrekken en trap naar 2e verdieping.

Badkamer (2024):
Moderne badkamer v.v. douchecabine met jetstream, wastafel meubel en toilet.

Slaapkamer 1:
Deze ruime slaapkamer is gelegen aan de achterzijde van de woning.

Slaapkamer 2:
Deze kamer is gelegen aan de voorzijde van de woning.

Tweede verdieping
Overloop met kast met opstelplaats voor warmwater boiler.

Slaapkamer 3:
Deze ruime kamer is voorzien van een dakraam. Tevens vindt u hier de aansluitingen voor wasmachine en droger.

Ruime berging.


Tuin
Tuin gelegen op het zuiden. De tuin is voorzien van een houten berging.

Details
- Heerlijk rustig gelegen in de geliefde wijk Nederhoven
- Parkeerplaats op eigen terrein
- Gasloze, energiezuinige woning met zonnepanelen
- De woonkamer en slaapkamer zijn voorzien van airco's
- De achterpui is vernieuwd in 2025 (Hr ++ glas)
- Keuken, toilet en badkamer vernieuwd in 2024
- De slaapkamers op de 1e verdieping zijn nog voorzien van enkel glas, de rest van de woning is voorzien van dubbelglas.
- 9 zonnepanelen (2024)
- Laadpaal aanwezig (2025)

- De woning is opgemeten conform de branchebrede meetinstructie. Deze meetinstructie is gebaseerd op de NEN2580. De meetinstructie is bedoeld om een meer eenduidiger manier van meten toe te passen voor het geven van een indicatie van de gebruiksoppervlakte. De meetinstructie sluit verschillen in meetuitkomsten niet volledig uit, door bijvoorbeeld interpretatieverschillen, afrondingen of beperkingen bij het uitvoeren van de meting.

- Bezichtigingen uitsluitend op afspraak met en via Bremmer Makelaars

- Oplevering: in overleg

- Voor de maatvoering verwijzen wij naar de plattegronden elders op de website of naar de brochure.

- De notariële eigendomsoverdracht zal plaatsvinden bij de notaris van de kopers keuze, mits deze is gelegen in een straal van 15km rondom de woning. Eventuele meerkosten (zoals reiskosten, notariële volmacht, e.d.) als gevolg van kopers notariskeuze buiten dit gebied komen volledig voor rekening van koper.

Lees meer

Verkoopgeschiedenis

Aangeboden sinds
26 november 2025
Verkoopdatum
26 november 2025
Looptijd
39 minuten

Kenmerken

Overdracht

Prijs per m2
€ 4.261
Aangeboden sinds
26 november 2025
Status
Verkocht
Aanvaarding
In overleg

Bouw

Soort woonhuis
Eengezinswoning, eind woning
Soort bouw
Bestaande bouw
Bouwjaar
1975
Soort dak
Zadeldak
Staat van onderhouden binnen
Goed
Staat van onderhouden buiten
Goed

Oppervlakte en inhoud

Perceeloppervlakte
113 m2
Inhoud van de woning
310 m3
Oppervlakte externe bergruimte
13 m2

Indeling

Aantal kamers
4
Aantal slaapkamers
3
Aantal woonlagen
4
Voorzieningen
Tuin, schuur/berging, glasvezel, airconditioning, dakraam

Buitenruimte

Balkon
Nee
Schuur/berging
Ja

Maandlasten berekenen

De maandlasten voor je woning bestaan uit meer dan alleen de hypotheeklasten. Hieronder vind je een overzicht van de bijkomende kosten en lasten. Zo weet je precies wat je huis per maand gaat kosten. En met de handige vergelijkers kun je ook nog eens snel de beste deals sluiten!

  • Kaart
  • Streetview