Hugo Verrieststraat 4 2524 CE 's-Gravenhage

107m2
Wonen
4
Kamers
116m2
Perceel
1930
Bouwjaar
CHARMANTE JAREN 30 EENGEZINSWONING | 108 M2 | ENERGIELABEL B | VOOR - EN ACHTERTUIN | NETJES OPGELEVERD | OPLEVERING KAN SNEL | GOEDE BEREIKBAARHEID MET OV EN UITVALSWEGEN | KINDVRIENDELIJKE OMGEVING | 7-ZONNEPANELEN

Welkom in deze charmante en uitstekend onderhouden jaren ’30 eengezinswoning, gelegen aan de gezellige Hugo Verrieststraat in Den Haag. Met een woonoppervlakte van 108 m2, drie slaapkamers, een ruime tuin én energielabel B, biedt deze woning alles wat u zoekt voor comfortabel en sfeervol wonen.
Hier woont u in de kindvriendelijke wijk Laakkwartier en Spoorwijk: een rustige omgeving met veel jonge gezinnen, maar toch dicht bij het bruisende centrum van Den Haag. Supermarkten, scholen, buurtwinkels, tramhaltes 10 en 16 (praktisch voor de deur) en zelfs Station Hollands Spoor liggen allemaal op loopafstand. Ook bent u binnen enkele minuten op de uitvalswegen richting A4 en A12. Kortom: een ideale locatie waar gezelligheid, rust en bereikbaarheid samenkomen.
Indeling

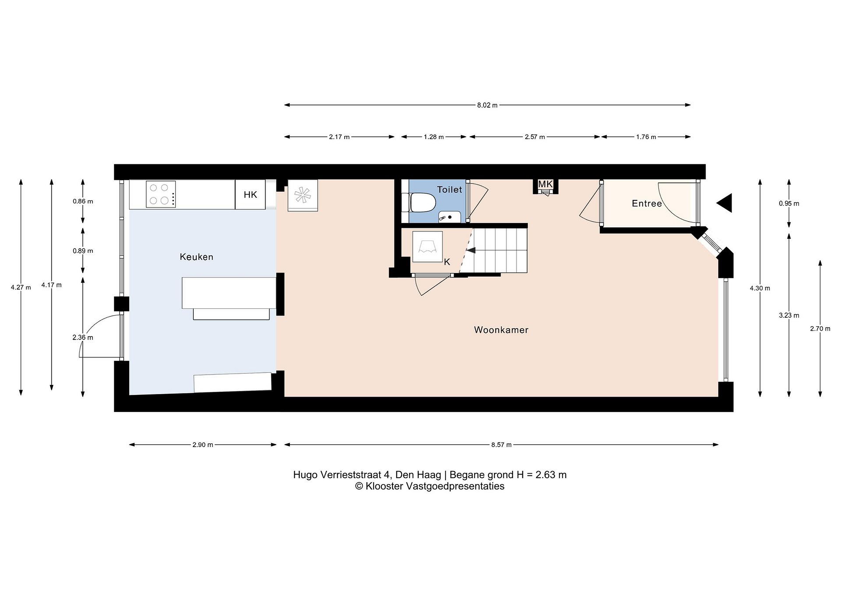
Begane grond
Via de zonnige voortuin op het zuidwesten komt u binnen in het tochtportaal en de hal met toilet en trapopgang. De lichte en doorzon woon- en eetkamer voelt direct ruim en uitnodigend aan. De open keuken is voorzien van diverse inbouwapparatuur en biedt toegang tot de royale achtertuin met schuur/berging: een heerlijke plek om te genieten van lange zomerdagen.

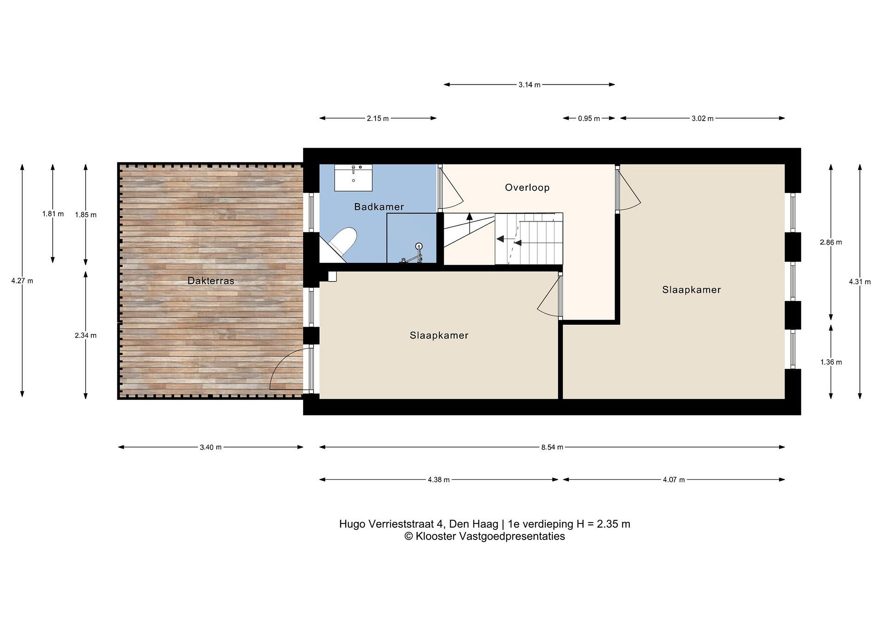
Eerste verdieping
Op de eerste verdieping bevinden zich twee ruime slaapkamers, beide met vaste kasten. De slaapkamer aan de achterzijde heeft bovendien toegang tot het balkon. De badkamer is compleet uitgevoerd met douche, toilet en wastafelmeubel.

Tweede verdieping
De tweede verdieping verrast met nog een ruime slaapkamer voorzien van dakkapel met extra bergruimte die eenvoudig kan worden omgebouwd tot vierde slaapkamer. Bovendien is deze dakkapel zeer netjes afgewerkt!

Buitenruimte
Zonnige voortuin; riante achtertuin met schuur/berging, waar ook ruimte is voor een gezellige zitplaats of BBQ.
Het ruime balkon bevindt zich aan de achterzijde en biedt veel potentie.

Bijzonderheden
- Eigen grond
- Bouwjaar 1930
- Woonoppervlakte 108 m2
- 3 slaapkamers (mogelijkheid tot het creëren van een 4e)
- Zonnepanelen aanwezig
- Kozijnen met dubbel glas
- Voor- en achtertuin aanwezig
- Nabij winkels, scholen, openbaar vervoer (tram 1, 16 en 17) en uitvalswegen
- Station Hollands Spoor, Megastores en oud Rijswijk op loopafstand
- Balkon aanwezig
- Energielabel B
- Zonnepanelen
- Oplevering kan per direct

Deze woning combineert sfeer, comfort en een ideale ligging. Bent u op zoek naar een fijne gezinswoning in Den Haag waar u zo in kunt trekken? Dan is Hugo Verrieststraat 4 absoluut een bezichtiging waard!

Lees meer

Kenmerken

Overdracht

Prijs per m2
€ 3.571
Aangeboden sinds
4 september 2025
Status
Beschikbaar
Aanvaarding
Direct

Bouw

Soort woonhuis
Eengezinswoning, geschakelde woning
Soort bouw
Bestaande bouw
Bouwjaar
1930
Staat van onderhouden binnen
Goed
Staat van onderhouden buiten
Goed

Oppervlakte en inhoud

Perceeloppervlakte
116 m2
Inhoud van de woning
355 m3

Indeling

Aantal kamers
4
Aantal slaapkamers
3
Aantal woonlagen
3
Voorzieningen
Balkon, schuur/berging

Buitenruimte

Balkon
Ja
Schuur/berging
Ja

Maandlasten berekenen

De maandlasten voor je woning bestaan uit meer dan alleen de hypotheeklasten. Hieronder vind je een overzicht van de bijkomende kosten en lasten. Zo weet je precies wat je huis per maand gaat kosten. En met de handige vergelijkers kun je ook nog eens snel de beste deals sluiten!

  • Kaart
  • Streetview