Bellemeerstraat 25 2493 XP 's-Gravenhage

130m2
Wonen
5
Kamers
173m2
Perceel
2010
Bouwjaar
Fraaie tussenwoning met vier slaapkamers en heerlijk vlonderterras aan het water

Centraal gelegen, In een charmante, ruim opgezette straat, vindt u deze fraaie tussenwoning met vier slaapkamers en een werkelijk heerlijke achtertuin die grenst aan het water.

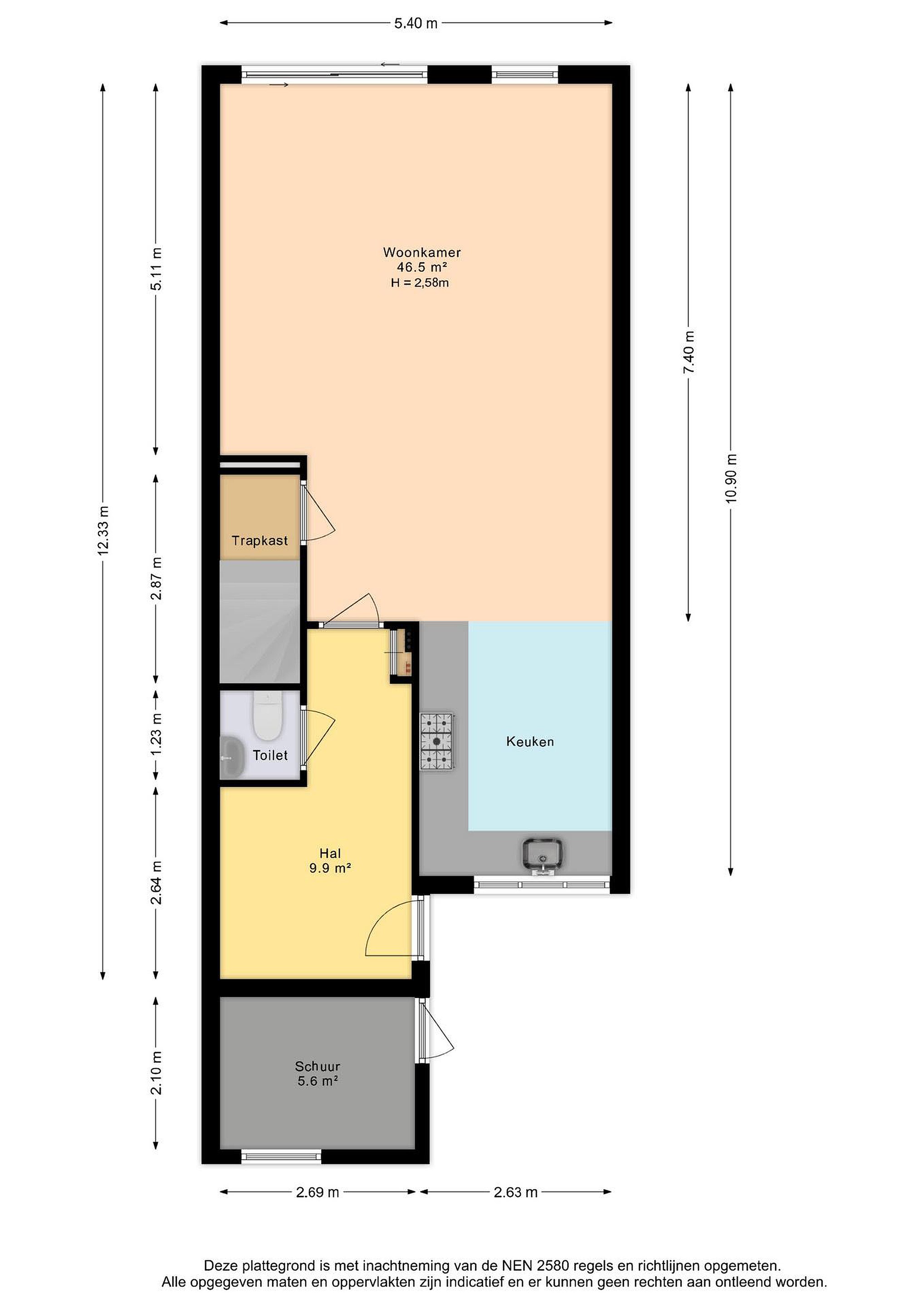
Lichte woonkamer, open keuken

Vanuit de straat ziet u het huis, een tikkeltje verscholen tussen twee hagen en een boompje. De voortuin is daardoor een fijne, besloten plek om te zitten. In de ruime hal ligt een eikenhouten parketvloer die alle vertrekken op de begane grond met elkaar verbindt.
Als u de woonkamer binnenloopt en even om u heen kijkt, ziet u dat zowel aan de achterkant als aan de voorzijde het plafond verspringt. De woonkamer krijgt hierdoor een ruimtelijk en speels karakter. Aan de achterzijde is er veel lichtinval en wordt u als vanzelf naar de achtertuin getrokken. Eerst laten we u graag de open keuken zien. Deze heeft een L-vorm, waardoor u veel bewegingsruimte heeft. U beschikt hier over veel kastruimte, een kunststof werkblad, een 5-pits gasfornuis en diverse inbouwapparatuur.

Vier slaapkamers

De overloop op de eerste verdieping geeft u toegang tot twee fijne slaapkamers. De grootste kijkt uit op de achtertuin, de andere op de straat aan de voorzijde van het huis. De ramen zijn voorzien van horren.
Daarnaast vindt u hier ook de badkamer, die is uitgevoerd in zwart-wit tinten en uitgerust met een vaste wastafel, instapdouche en het tweede toilet. Wie even naar de ruimte kijkt, ziet dat hier alle mogelijkheden zijn voor een stijlvolle modernisering met bijvoorbeeld een ligbad erbij.

Op de tweede verdieping beschikt u over nog eens twee lichte en volwaardige slaapkamers. Deze hebben een schuin plafond; de slaapkamer aan de voorzijde heeft bovendien ramen van vloer tot plafond.
De witgoedopstelling en cv-ketel zijn ondergebracht in een aparte ruimte, die tevens als extra berging dienst doet.

Heerlijk vlonderterras aan het water, met vrij uitzicht

Terug op de begane grond is het nu de hoogste tijd om de parel van deze woning te bekijken: de achtertuin. Die bestaat uit een tegelterras tegen de achtergevel aan, een (kunst)grasstrook en een verlaagd vlonderterras direct aan het water. Volop mogelijkheden om verschillende zitjes te creëren en hier een het-hele-jaar-door-vakantie-beleving van te maken. Vogels, vissen, vrij uitzicht, heerlijk!

Aan de voorkant van de woning is een stenen berging voor uw fietsen en tuingereedschap. Parkeren kunt u in de straat.
Heel centraal gelegen

De ligging van deze woning is perfect. Winkels, kinderopvang en scholen zijn nabij; de British school is zelfs om de hoek. Een speelveldje vindt u naast het huis. Speeltuintjes en een kinderboerderij zijn er op loopafstand en dat geldt ook voor het openbaar vervoer. De uitvalswegen A4, A12 en A13 liggen op een paar autominuten. Met de fiets bent u in korte tijd in de stad of in het groene buitengebied, waaronder het Westerpark Zoetermeer en natuurlijk de Nieuwe Driemanspolder.

Samengevat:
- Centraal gelegen tussenwoning met aan weerszijden veel ruimte
- Woonoppervlak ca. 130,2 m2, inhoud woning 475 m3, gemeten volgens NEN2580
- Perceelgrootte 173 m2, erfpacht eeuwigdurend afgekocht (geen extra kosten)
- Ruime hal met toilet en op maat gemaakte kast.
- Eiken parketvloer op de begane grond
- Sfeervolle en ruime woonkamer
- Open, L-vormige keuken met 5-pits gasfornuis en diverse inbouwapparatuur
- Twee lichte slaapkamers op de eerste verdieping
- Badkamer met instapdouche, vaste wastafel en tweede toilet
- Tweede verdieping met twee slaapkamers en separate ruimte voor de witgoedopstelling, de cv-ketel Intergas (2010) en de MV-box
- Laminaatvloeren op beide verdiepingen
- Horren in alle ramen van de eerste verdieping en in de tuindeur
- Heerlijke achtertuin met diverse zitjes en vrij uitzicht; verlaagd vlonderterras aan het water
- Stenen berging aan de voorzijde van de woning; parkeermogelijkheden in de straat
- Schilderwerk buitenzijde bijgewerkt in 2025, schilderwerk binnen uitgevoerd in december 2024
- Centraal gelegen nabij alle faciliteiten en openbaar vervoer
- Diverse scholen nabij waaronder de British School (BSN)- tevens 5 minuten fietsen naar het winkelcentrum
- Opgang naar diverse uitvalswegen A4/A12/A13 in een paar minuten rijden
- Oplevering in overleg

Is uw interesse gewekt?
Wacht niet te lang en bel Makelaarscentrum Leidschenveen voor het maken van een afspraak.

De informatie is met zorg samengesteld, aan de juistheid kunnen echter geen rechten worden ontleend. Alle opgegeven maten en oppervlakten zijn indicatief. De woning is gemeten met gebruikmaking van de Meetinstructie, die is gebaseerd op de normen zoals vastgelegd in NEN 2580. De algemene verkoopvoorwaarden staan vermeld op onze website, wij werken conform de Algemene Consumentenvoorwaarden van Vastgoed Nederland. Heeft u vragen over dit object of over onze dienstverlening neemt u dan gerust contact met ons op.

Bel ons voor het maken van een afspraak of schakel direct uw eigen aankoopmakelaar in. Uw aankoopmakelaar komt op voor uw belang en bespaart u veel tijd, geld en zorgen.





Lees meer

Kenmerken

Overdracht

Prijs per m2
€ 4.601
Aangeboden sinds
26 november 2025
Status
Beschikbaar
Aanvaarding
In overleg

Bouw

Soort woonhuis
Eengezinswoning, tussen woning
Soort bouw
Bestaande bouw
Bouwjaar
2010
Soort dak
Zadeldak
Staat van onderhouden binnen
Uitstekend
Staat van onderhouden buiten
Uitstekend

Oppervlakte en inhoud

Perceeloppervlakte
173 m2
Inhoud van de woning
475 m3
Oppervlakte externe bergruimte
5 m2

Indeling

Aantal kamers
5
Aantal slaapkamers
4
Aantal woonlagen
3
Voorzieningen
Tuin, schuur/berging, ventilatie, kabel-tv, glasvezel

Buitenruimte

Balkon
Nee
Schuur/berging
Ja

Maandlasten berekenen

De maandlasten voor je woning bestaan uit meer dan alleen de hypotheeklasten. Hieronder vind je een overzicht van de bijkomende kosten en lasten. Zo weet je precies wat je huis per maand gaat kosten. En met de handige vergelijkers kun je ook nog eens snel de beste deals sluiten!

  • Kaart
  • Streetview