Gardiaanhof 5 4411 DM Rilland

122m2
Wonen
5
Kamers
409m2
Perceel
2000
Bouwjaar
Welkom aan de Gardiaanhof! Anthonise Makelaars biedt u op nummer 5 deze fraaie, half vrijstaande, door de garage geschakelde woning aan, gelegen op een royaal perceel van 409 m2, in een rustig en groen hofje in de oude tuin van “De Werfkampen”. Op deze fijne plek komt comfort, sfeer en privacy mooi samen!
Wat direct opvalt, is de prettige ligging: een doodlopend en autoluw hofje met veel groen en ruimte, waar kinderen nog buiten kunnen spelen en u kunt genieten van de rust. Aan de achterzijde van het perceel is er geen directe bebouwing, wat zorgt voor een heerlijk vrij gevoel. Een plus van dit huis is dat er op de begane grond mogelijkheid is voor een volledig woonprogramma op de begane grond.
Begane grond
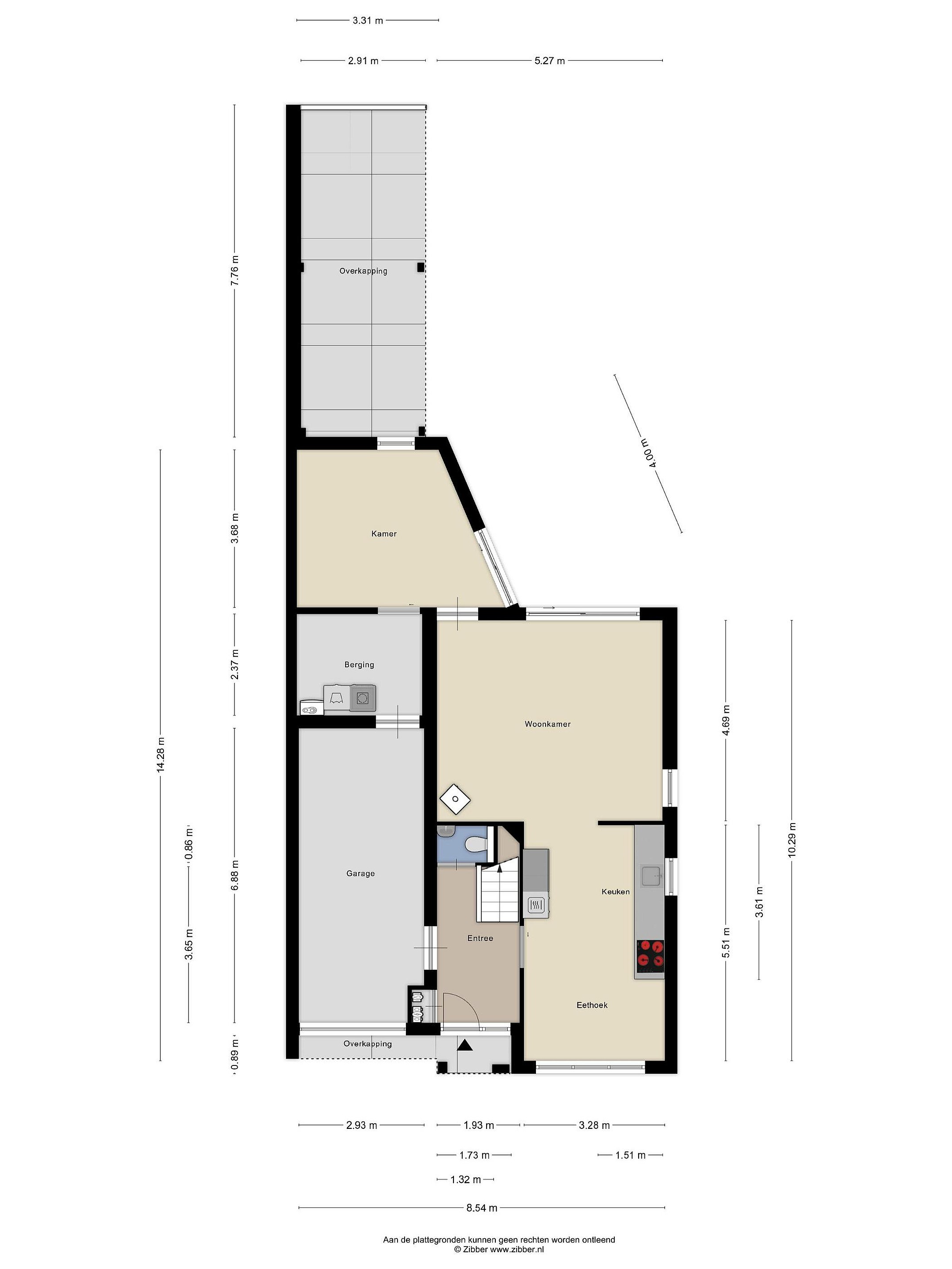
Bij binnenkomst komt u via de hal, met de deur naar de garage, de trapopgang en het toilet, in de sfeervolle leefkeuken. En wat een eyecatcher is dat! Zo goed als nieuw (2022), van het solide merk Tieleman, uitgevoerd in modern mat carbonzwart en voorzien van alle denkbare inbouwapparatuur als een vaatwasser, een koelkast, een vrieskast, een oven en een Quooker. Er wordt gekookt op een inductiekookplaat van Bora, met geïntegreerde afzuiging. De grote raampartij zorgt voor veel lichtinval, en de gezellige zithoek maakt dit tot de perfecte plek om samen te ontbijten of ’s avonds met een glas wijn de dag door te nemen. Aansluitend is de woonkamer. Deze is tuingericht en heeft een schuifpui naar het terras, waardoor binnen en buiten mooi in elkaar overlopen. De strakke visgraat pvc-vloer, de glad gestuukte wanden en de houtkachel maken dit tot een bijzonder prettige leefruimte; licht, warm, eigentijds en uitnodigend.

Aansluitend aan de woonkamer vindt u een extra kamer die u naar wens kunt gebruiken als extra eet-, werk-, hobby- of slaapkamer. Ook deze heeft een schuifpui naar de tuin. Achter deze kamer ligt de praktische bijkeuken/berging, met volop opbergruimte en waar ook de wasmachine en de c.v. ketel hun plaats hebben. Indien gewenst kan deze ruimte (deels) worden omgebouwd tot badkamer, waardoor er, zoals eerder genoemd, een volledig woonprogramma op de begane grond mogelijk is.

Eerste verdieping
Op de verdieping bevinden zich drie slaapkamers en de badkamer. Alle kamers zijn licht en netjes afgewerkt. De badkamer is netjes en functioneel ingedeeld, beschikt over een bad, een toilet, een douchecabine en een wastafelmeubel.

Tuin
De achtertuin ligt lekker beschut en biedt volop privacy dankzij het ontbreken van directe bebouwing aan de achterzijde. Direct achter de woning is het terras, vanwaar je lekker uitkijkt over je tuin; licht glooiend gazon en mooie plantenborders. Heerlijk vertoeven is het onder de royale - en heel fraai gemaakte - overkapping, een superfijn plekje en een ideale plek om te ontspannen of gezellig te barbecueën met familie en vrienden. Puur genieten van de rust, het groen en de ruimte in uw eigen tuin.

Aan de voorzijde beschikt de woning over een oprit.

Details
Rilland is een strategisch gelegen dorp, zo op de rand van Zeeland en Noord Brabant, en heeft goed voorzieningenniveau: supermarkt, horeca, basisschool, kinderopvang en een station liggen allemaal in de directe omgeving. Voor overige voorzieningen is Hoogerheide en Krabbendijke in 10 minuten en Bergen op Zoom in 15 minuten te bereiken. Dankzij de ligging aan de A58 bent u bovendien binnen korte tijd in Rotterdam of Antwerpen. Strategisch en centraal dus, maar toch met dorps gevoel.

Bijzonderheden
- Fraai gelegen in rustig hofje met veel groen
- Vrij gevoel aan de achterzijde, geen directe bebouwing
- Grote robuuste overkapping in de tuin
- Energielabel B
- Jonge, moderne Tielemankeuken (carbonzwart, volledig uitgerust)
- Strakke visgraat pvc-vloer en glad gestuukte wanden
- Houtkachel in de woonkamer
- Extra kamer op de begane grond (kantoor/slaapkamer/hobbyruimte)
- Mogelijkheid tot volledig woonprogramma op de begane grond
- 3 slaapkamers op de verdieping
- Deels voorzien van rolluiken
- Inpandige garage en oprit op eigen terrein
- Centrale ligging ten opzichte van A58, station en voorzieningen

Ziet u zichzelf hier al wonen?

Als uw hart sneller gaat kloppen van deze woning aan de Gardiaanhof 5, nodigen wij u van harte uit voor een bezichtiging. Vul het aanvraagformulier in of neem contact op met ons kantoor; wij laten u deze fijne plek graag ervaren!

Anthonise Makelaars werkt met biedingsplatform Eerlijk Bieden. Elke potentieel koper krijgt een inloglink, waar na te zijn ingelogd inzage is in de dataroom, waar alle relevante informatie van dit object te vinden is. Tevens vindt u daar een biedingsformulier, waarmee u uw bieding kunt uitbrengen. Als er meerdere gegadigden zijn wordt er een sluitingsdatum toegekend en krijgt iedere geïnteresseerde dezelfde kans om een bieding uit te brengen. Als er een koper is toegewezen krijgt u als bieder inzicht over hoe het biedingsproces is verlopen.

Lees meer

Kenmerken

Overdracht

Prijs per m2
€ 4.065
Aangeboden sinds
18 oktober 2025
Status
Beschikbaar
Aanvaarding
In overleg

Bouw

Soort woonhuis
Eengezinswoning, half vrijstaande woning
Soort bouw
Bestaande bouw
Bouwjaar
2000
Soort dak
Lessenaarsdak
Staat van onderhouden binnen
Goed
Staat van onderhouden buiten
Goed

Oppervlakte en inhoud

Perceeloppervlakte
409 m2
Inhoud van de woning
504 m3
Oppervlakte gebouwgebonden buitenruimten
25 m2
Oppervlakte overige inpandige ruimten
19 m2

Indeling

Aantal kamers
5
Aantal slaapkamers
4
Aantal woonlagen
2
Voorzieningen
Tuin

Buitenruimte

Balkon
Nee
Schuur/berging
Nee

Maandlasten berekenen

De maandlasten voor je woning bestaan uit meer dan alleen de hypotheeklasten. Hieronder vind je een overzicht van de bijkomende kosten en lasten. Zo weet je precies wat je huis per maand gaat kosten. En met de handige vergelijkers kun je ook nog eens snel de beste deals sluiten!

  • Kaart
  • Streetview