Beetsstraat 6 3261 PL Oud-Beijerland

141m2
Wonen
5
Kamers
315m2
Perceel
1998
Bouwjaar
Op zoek naar een fijn huis met veel leefruimte, licht en een grote tuin? Dan is deze ruime geschakelde twee-onder-een-kapwoning aan de Beetsstraat precies zo’n plek waar je als jong gezin of doorstromer graag binnenstapt. Het perceel van maar liefst 315 m2, 5 kamers, 4 slaapkamers en een riante tuinkamer/overkapping maken dit een huis waar je direct voelt hoeveel mogelijkheden het biedt. De woning is gebouwd in 1998, degelijk uitgevoerd, voorzien van 14 zonnepanelen en heeft energielabel B. Binnen én buiten leef je hier ruim, licht en comfortabel — een fijne basis voor nu en in de toekomst.

Wonen aan de Beetsstraat & in Oud-Beijerland
De Beetsstraat ligt in een rustige, groene wijk aan de rand van het populaire Oud-Beijerland. Een dorp dat bekendstaat om zijn gezellige centrum, fijne winkels, horeca, scholen en sportclubs. Alles ligt op prettige fietsafstand. Ook liggen supermarkten, speeltuinen en voorzieningen vlakbij, wat de locatie ideaal maakt voor gezinnen. Daarnaast is de bereikbaarheid uitstekend: via de A29 ben je zo richting Rotterdam of Brabant. Rust, ruimte, levendigheid en gemak komen hier mooi samen.

Bijzonderheden
* Energielabel B
* Perceel 315 m2
* 5 kamers, 4 slaapkamers
* Aanpandige garage, vanuit de woning bereikbaar
* Airconditioning op zolder
* Mechanische ventilatie
* 14 zonnepanelen + omvormer
* Houten kozijnen met dubbel en HR+ glas
* Zonnescherm aan de achterzijde
* Rolluiken uitsluitend op de zolderkamer
* Dakkapel op zolder
* Vrijstaande schuur in de achtertuin
* Riante tuinkamer/overkapping met houtkachel
* HR-combiketel
* Bouwjaar 1998

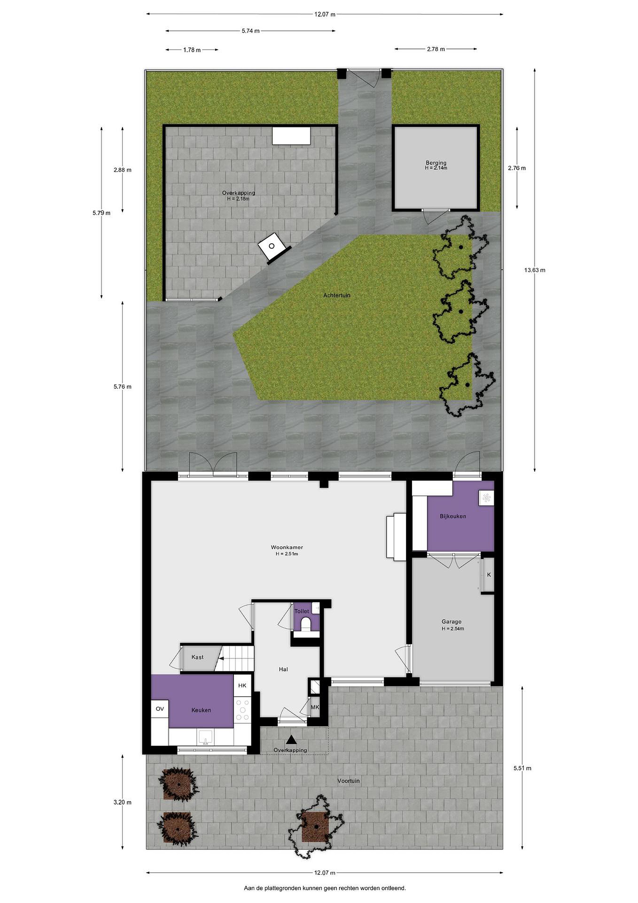
Indeling
Begane grond
De hal geeft toegang tot de meterkast, de toiletruimte en de trapopgang. Aan de voorzijde ligt de moderne keuken in een zwarte uitvoering, met veel licht dankzij het grote raam. De keuken is uitgerust met een kokendwaterkraan, gas kookplaat, afzuigkap, vaatwasser, koelkast, vriezer en een praktische voorraadkast. De woonkamer bevindt zich aan de achterzijde en is heerlijk licht door de grote ramen en openslaande deuren naar de tuin. Hier is ruimte voor een grote eettafel én een ruime zithoek. Via de woonkamer bereik je de aanpandige garage — ideaal voor fietsen, opslag of hobby’s.

Eerste verdieping
De eerste verdieping beschikt over drie fijne slaapkamers met veel lichtinval. De badkamer is wat op leeftijd, maar nog volledig functioneel, met een ligbad, aparte douche, dubbele wastafel en tweede toilet. Een praktische ruimte die je desgewenst eenvoudig naar je eigen smaak kunt moderniseren.

Zolderverdieping
De vaste trap brengt je naar de vergrote zolderverdieping, die is uitgebreid met een dakkapel waardoor er extra ruimte én licht is ontstaan. Op de voorzolder bevinden zich de aansluitingen voor de wasmachine en droger. De vierde slaapkamer is ruim, licht en voorzien van airconditioning — ideaal als tienerkamer, werkruimte of logeerkamer.

Buitenruimte
De achtertuin is breed, diep en biedt veel privacy. De riante tuinkamer met houtkachel is de absolute eyecatcher: een heerlijke plek om het hele jaar door te loungen, eten of borrelen. Daarnaast staat in de tuin een praktische schuur voor extra opslag. Het zonnescherm aan de achterzijde zorgt voor schaduw tijdens zonnige dagen. De voortuin zorgt voor een nette, verzorgde uitstraling aan de straatzijde.

Een heerlijke gezinswoning op een geliefde plek in Oud-Beijerland — plan snel een bezichtiging en ervaar de sfeer zelf!
Lees meer

Kenmerken

Overdracht

Prijs per m2
€ 4.610
Aangeboden sinds
21 november 2025
Status
Beschikbaar
Aanvaarding
In overleg

Bouw

Soort woonhuis
Eengezinswoning, geschakelde twee-onder-een-kap woning
Soort bouw
Bestaande bouw
Bouwjaar
1998
Soort dak
Zadeldak
Staat van onderhouden binnen
Goed
Staat van onderhouden buiten
Goed

Oppervlakte en inhoud

Perceeloppervlakte
315 m2
Inhoud van de woning
383 m3
Oppervlakte externe bergruimte
8 m2
Oppervlakte gebouwgebonden buitenruimten
2 m2
Oppervlakte overige inpandige ruimten
11 m2

Indeling

Aantal kamers
5
Aantal slaapkamers
4
Aantal woonlagen
3
Voorzieningen
Tuin, schuur/berging, ventilatie, rolluiken, kabel-tv, glasvezel, buitenzonwering, airconditioning

Buitenruimte

Balkon
Nee
Schuur/berging
Ja

Maandlasten berekenen

De maandlasten voor je woning bestaan uit meer dan alleen de hypotheeklasten. Hieronder vind je een overzicht van de bijkomende kosten en lasten. Zo weet je precies wat je huis per maand gaat kosten. En met de handige vergelijkers kun je ook nog eens snel de beste deals sluiten!

  • Kaart
  • Streetview