Verkocht OV

Spechtendaal 5 2914 EW Nieuwerkerk aan den IJssel

107m2
Wonen
5
Kamers
120m2
Perceel
1982
Bouwjaar
Welkom bij Spechtendaal 5, een goed onderhouden en energiezuinige eengezinswoning in een rustige, kindvriendelijke straat van de geliefde Dalenbuurt. De woning heeft vier slaapkamers, een woonoppervlakte van 107m2, een perceelgroote van 120m2 en energielabel A.

Hier woont u op loopafstand van winkelcentrum De Reigerhof, diverse scholen, speelvoorzieningen én het treinstation Nieuwerkerk aan den IJssel. Ook het groene park en diverse sportvoorzieningen liggen in de nabije omgeving.
Begane grond
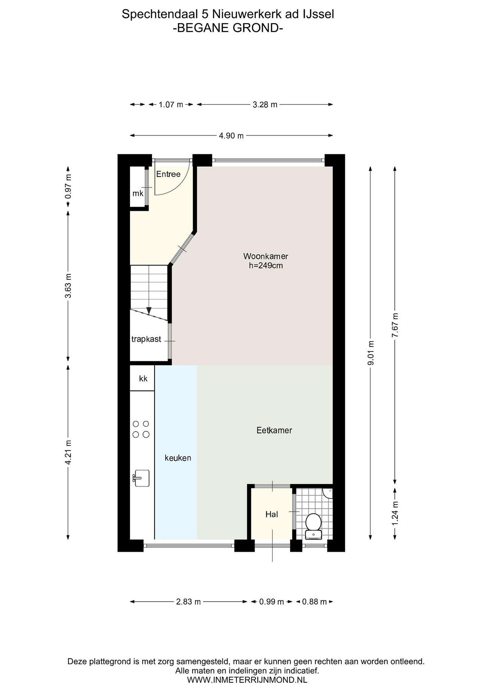
Via de nette en ruime voortuin komt u binnen in de hal met vernieuwde meterkast en trapopgang naar de eerste verdieping. De lichte woonkamer ligt aan de voorzijde van de woning en is voorzien van een screen. Aan de achterzijde bevindt zich de open keuken, uitgerust met moderne apparatuur zoals een koel/vrieskast, oven, inductie kookplaat met afzuigkap en vaatwasser die de afgelopen jaren zijn vernieuwd.

Een praktische trapkast biedt extra bergruimte. Vanuit de hal naast de keuken bereikt u het toilet en de achtertuin.

De begane grond is voorzien van een vinyl vloer en behang als wandafwerking.

Eerste verdieping
Op de eerste verdieping bevinden zich drie slaapkamers en de badkamer. Twee slaapkamers liggen aan de achterzijde waarvan 1 kamer een vaste kast heeft en beide kamers voorzien zijn van een dakraam met verduistering en hor. De slaapkamer aan de voorzijde beschikt over een vaste kast en een screen.

De badkamer is compleet met toilet, douchecabine, wasmeubel en screen.

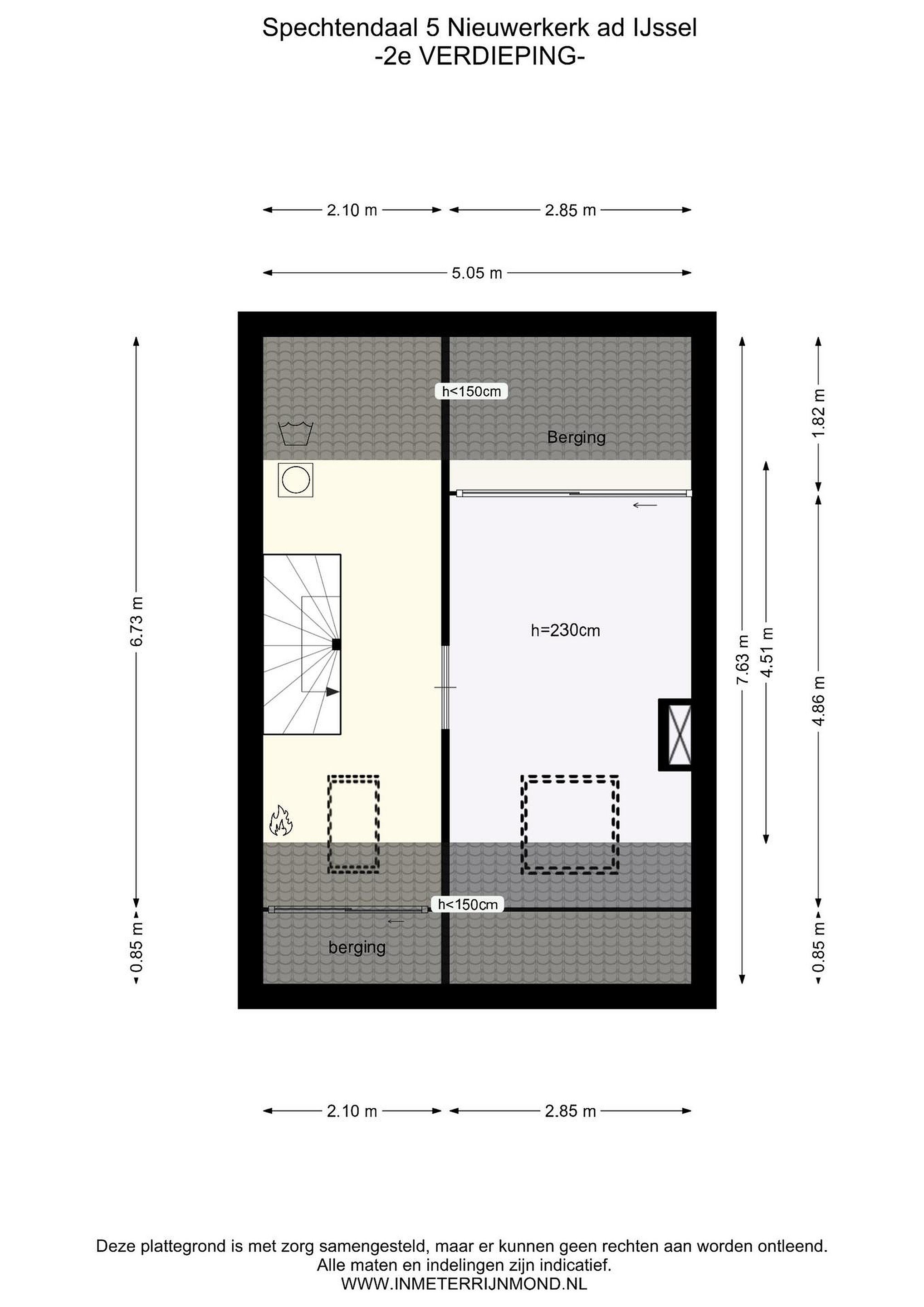
Tweede verdieping
De vaste trap brengt u naar de ruime tweede verdieping, waar een royale overloop ruimte biedt voor de wasmachineaansluiting, mechanische ventilatie, omvormer zonnepanelen en de cv-ketel (2017). Een dakraam zorgt voor extra daglicht en via een vlizotrap bereikt u de handige vliering (over de volle breedte).

Daarnaast bevindt zich hier de vierde slaapkamer, voorzien van bergruimte achter de knieschotten, een dakraam met verduistering en hor en een radiator. De schuine zijde is voorzien van isolatie.

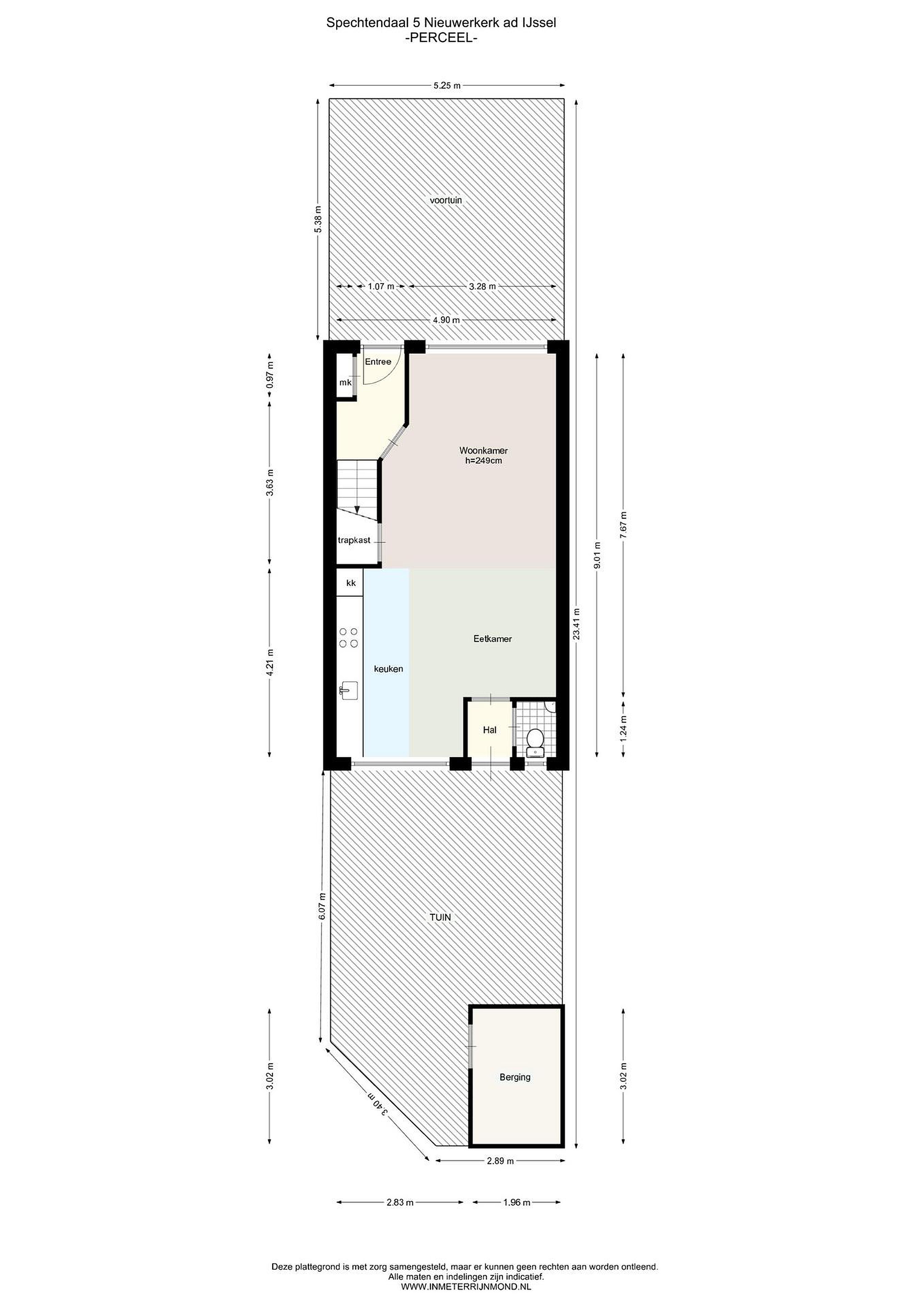
Tuin
De verzorgde achtertuin biedt ruimte om te genieten van de zon. Door de ligging (Noord) zijn er de gehele dag zowel schaduw- als zonplekken te vinden. Het buitenschilderwerk is deels in 2021 en deels in 2023 uitgevoerd. Achterin staat een fietsenberging met een vernieuwd dak. Dankzij de achterom is de tuin goed bereikbaar. Achter de woning ligt een speelveldje waar kinderen veilig kunnen spelen.

Duurzaamheid & Comfort
Deze woning is niet alleen comfortabel, maar ook energiezuinig: 6 zonnepanelen (geplaatst in 2023), vloerisolatie in de kruipruimte (2022), hardhouten kozijnen met dubbel glas en energielabel A. Dat betekent lagere energiekosten en een prettig woonklimaat.

Details
Bijzonderheden
- Keurig onderhouden woning met 4 slaapkamers
- Woonoppervlakte 107m2 en een perceel van 120m2
- Bouwjaar 1982
- Gewilde ligging in de Dalenbuurt, nabij winkels, station en voorzieningen
- 6 zonnepanelen (2023) en vloerisolatie (2022)
- Hardhouten kozijnen met dubbel glas
- Energielabel A
- 1e parkeervergunning is gratis de 2e kost € 26,- per jaar

Lees meer

Kenmerken

Overdracht

Prijs per m2
€ 4.206
Aangeboden sinds
4 november 2025
Status
Verkocht onder voorbehoud
Aanvaarding
In overleg

Bouw

Soort woonhuis
Eengezinswoning, tussen woning
Soort bouw
Bestaande bouw
Bouwjaar
1982
Soort dak
Zadeldak
Staat van onderhouden binnen
Goed
Staat van onderhouden buiten
Goed

Oppervlakte en inhoud

Perceeloppervlakte
120 m2
Inhoud van de woning
374 m3
Oppervlakte externe bergruimte
6 m2

Indeling

Aantal kamers
5
Aantal slaapkamers
4
Aantal woonlagen
3
Voorzieningen
Tuin, schuur/berging, ventilatie, glasvezel, buitenzonwering, dakraam

Buitenruimte

Balkon
Nee
Schuur/berging
Ja

Maandlasten berekenen

De maandlasten voor je woning bestaan uit meer dan alleen de hypotheeklasten. Hieronder vind je een overzicht van de bijkomende kosten en lasten. Zo weet je precies wat je huis per maand gaat kosten. En met de handige vergelijkers kun je ook nog eens snel de beste deals sluiten!

  • Kaart
  • Streetview