Verkocht OV

Valkastraat 8 3151 JH Hoek van Holland

113m2
Wonen
4
Kamers
140m2
Perceel
1989
Bouwjaar
Vraagprijs: € 475.000,- k.k.

Gelegen in een kindvriendelijke buurt, op loopafstand van het bos, een instapklare ‘Kwadrantwoning’ op 140 m2 eigen grond. De woning is voorzien van een ruime luxe halfopen keuken en een woonkamer met een schuifpui naar de tuin, gelegen op het noordoosten met vrijstaande stenen berging en achterom. De 1e verdieping is uitgebouwd en heeft 3 ruime slaapkamers en een moderne badkamer. Vanaf de overloop is er toegang naar de vliering, te bereiken met een vlizotrap. Tevens zijn er 6 zonnepanelen.

Indeling:
Begane grond: entree, hal met meterkast, toilet met een fonteintje, ruime en lichte woonkamer met een schuifpui naar de tuin en trapopgang naar boven (N/O), halfopen keuken met diverse inbouwapparaten en een loopdeur naar de tuin (N/O) met vrijstaande stenen berging en achterom.

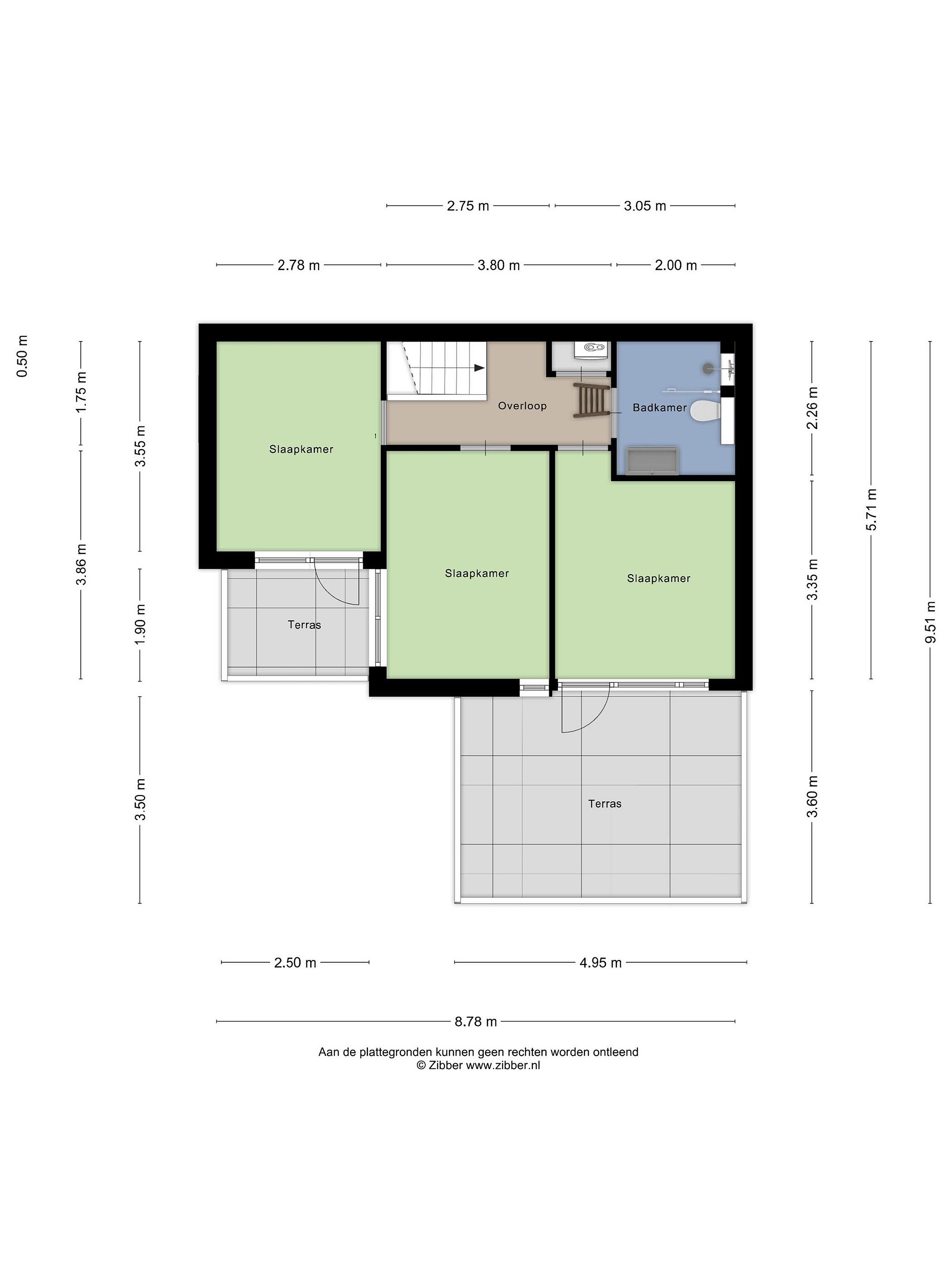
1e verdieping: ruime overloop, bergkast met opstelplaats CV-ketel, 3 ruime slaapkamers waarvan 1 slaapkamer met vaste kast, moderne badkamer met een inloopdouche, wastafelmeubel en 2e toilet.

Bergvliering: opstelplaats mechanische ventilatie en bergruimte.

De woning is volledig geïsoleerd, voorzien van houten kozijnen met dubbel glas. Tevens zijn er 6 zonnepanelen.
Details
Enkele kenmerken:
Kadastrale aanduiding : Hoek van Holland sectie B nummer 3945
Grootte perceel: : 140 m2
Juridische status : Eigen grond
Bouwjaar : Ca. 1989
Aantal kamers : 4 kamers (incl. woonkamer)
Parkeren : Voldoende in omgeving
  
NEN 2580 maatvoering : 
Gebruiksoppervlakte wonen 113 m2
Interne bergruimte 2 m2
Gebouw gebonden buitenruimte 23 m2
Externe bergruimte 7 m2
Inhoud van de woning excl. berging  407 m3
    
Gasverbruik 883 m3
Elektraverbruik  2560 kWh
Opwek zonnepanelen 621 kWh
Gesaldeerd verbruik per jaar 1939 kWh
Dit is een indicatie volgens huidige bewoning
  
CV ketel : Vaillant EcoTEC classic 2024
  
Onderhoud binnen : Goed
Onderhoud buiten : Goed
  
Oplevering : In overleg, voorkeur gaat uit naar begin maart 2026
  
Bijzonderheden : Gelegen in een bosrijke omgeving, volledig geïsoleerd, goed onderhouden, 2 terrassen en 6 zonnepanelen.

Lees meer

Kenmerken

Overdracht

Prijs per m2
€ 4.204
Aangeboden sinds
4 november 2025
Status
Verkocht onder voorbehoud
Aanvaarding
In overleg

Bouw

Soort woonhuis
Eengezinswoning, tussen woning, kwadrantwoning
Soort bouw
Bestaande bouw
Bouwjaar
1989
Soort dak
Tentdak
Staat van onderhouden binnen
Goed
Staat van onderhouden buiten
Goed

Oppervlakte en inhoud

Perceeloppervlakte
140 m2
Inhoud van de woning
407 m3
Oppervlakte externe bergruimte
7 m2
Oppervlakte gebouwgebonden buitenruimten
23 m2
Oppervlakte overige inpandige ruimten
2 m2

Indeling

Aantal kamers
4
Aantal slaapkamers
3
Aantal woonlagen
3
Voorzieningen
Tuin, schuur/berging, ventilatie, rolluiken, buitenzonwering, schuifpui

Buitenruimte

Balkon
Nee
Schuur/berging
Ja

Maandlasten berekenen

De maandlasten voor je woning bestaan uit meer dan alleen de hypotheeklasten. Hieronder vind je een overzicht van de bijkomende kosten en lasten. Zo weet je precies wat je huis per maand gaat kosten. En met de handige vergelijkers kun je ook nog eens snel de beste deals sluiten!

  • Kaart
  • Streetview