Verkocht OV

Mustangstraat 14 3151 GN Hoek van Holland

120m2
Wonen
4
Kamers
211m2
Perceel
1981
Bouwjaar
Richtprijs: € 400.000,- k.k.

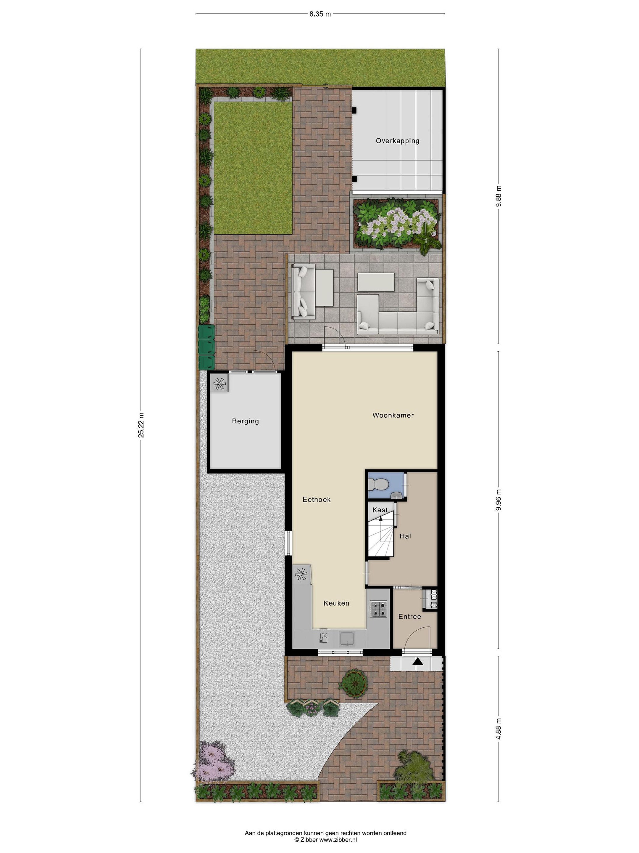
Gelegen in een gewilde woonwijk direct achter het centrum van Hoek van Holland, een keurig onderhouden hoekwoning met een ruime achtertuin (Z/O) en zij tuin, berging, overkapping en achterom. De woning is recent voorzien van kunststof kozijnen met triple glas voor de energiezuinigheid.

Indeling:
Begane grond: entree, hal, toilet met fonteintje, ruime woonkamer met loopdeur naar de zonnige achtertuin (Z/O), open keuken met diverse inbouwapparatuur.

1e verdieping: overloop, 3 zeer ruime slaapkamers, badkamer met douche, ligbad, wastafelmeubel en 2e toilet.

2e verdieping: nette ruime zolderverdieping met mogelijkheid tot creëren van een slaapkamer.

De woning is recent voorzien van kunststof kozijnen met triple glas.
Details
Enkele kenmerken:
Kadastrale aanduiding : Hoek van Holland sectie B nummer 4511
Grootte perceel: : 211 m2
Juridische status : Erfpacht t/m 23-11-2079
Canon afgekocht t/m 23 november 2030
Bouwjaar : Ca. 1981
Aantal kamers : 5 kamers (incl. woonkamer)
Parkeren : Voldoende in omgeving
  
NEN 2580 maatvoering : 
Gebruiksoppervlakte wonen 120 m2
Interne bergruimte 0 m2
Gebouw gebonden buitenruimte 1 m2
Externe bergruimte 8 m2
Inhoud van de woning excl. berging 426 m3
    
Gasverbruik 496 m3
Elektraverbruik  2559 kWh
Dit is een indicatie volgens huidige bewoning
  
CV ketel : Remeha Avanta CW5 2021
  
Onderhoud binnen : Goed
Onderhoud buiten : Goed
  
Oplevering : In overleg, voorkeur gaat uit naar januari 2026
  
Bijzonderheden : Dichtbij de metro en het centrum van Hoek van Holland, nabij de kinderboerderij, scholen en uitvalswegen.

Lees meer

Kenmerken

Overdracht

Prijs per m2
€ 3.333
Aangeboden sinds
4 november 2025
Status
Verkocht onder voorbehoud
Aanvaarding
In overleg

Bouw

Soort woonhuis
Eengezinswoning, hoek woning
Soort bouw
Bestaande bouw
Bouwjaar
1981
Soort dak
Zadeldak
Staat van onderhouden binnen
Goed
Staat van onderhouden buiten
Goed

Oppervlakte en inhoud

Perceeloppervlakte
211 m2
Inhoud van de woning
426 m3
Oppervlakte externe bergruimte
8 m2
Oppervlakte gebouwgebonden buitenruimten
1 m2

Indeling

Aantal kamers
4
Aantal slaapkamers
3
Aantal woonlagen
3
Voorzieningen
Tuin, schuur/berging, buitenzonwering, jacuzzi, dakraam

Buitenruimte

Balkon
Nee
Schuur/berging
Ja

Maandlasten berekenen

De maandlasten voor je woning bestaan uit meer dan alleen de hypotheeklasten. Hieronder vind je een overzicht van de bijkomende kosten en lasten. Zo weet je precies wat je huis per maand gaat kosten. En met de handige vergelijkers kun je ook nog eens snel de beste deals sluiten!

  • Kaart
  • Streetview