Johannes Timmerspad 9 3151 CX Hoek van Holland

104m2
Wonen
6
Kamers
124m2
Perceel
1986
Bouwjaar
Richtprijs: € 460.000,- k.k.

Gelegen in een rustige en kindvriendelijke wijk, een moderne en instapklare 6 kamer eengezinswoning. De woning is voorzien van een ruime luxe keuken met inbouwapparatuur en een lichte woonkamer met openslaande deuren naar de diepe, zonnige tuin op het zuiden met overkapping, berging en achterom. De 1e verdieping beschikt over 3 ruime slaapkamers, waarvan één met walk-in closet en een keurige badkamer. De 2e verdieping heeft 2 extra slaapkamers met aan de voorzijde een dakkapel. Tevens zijn er 7 zonnepanelen.

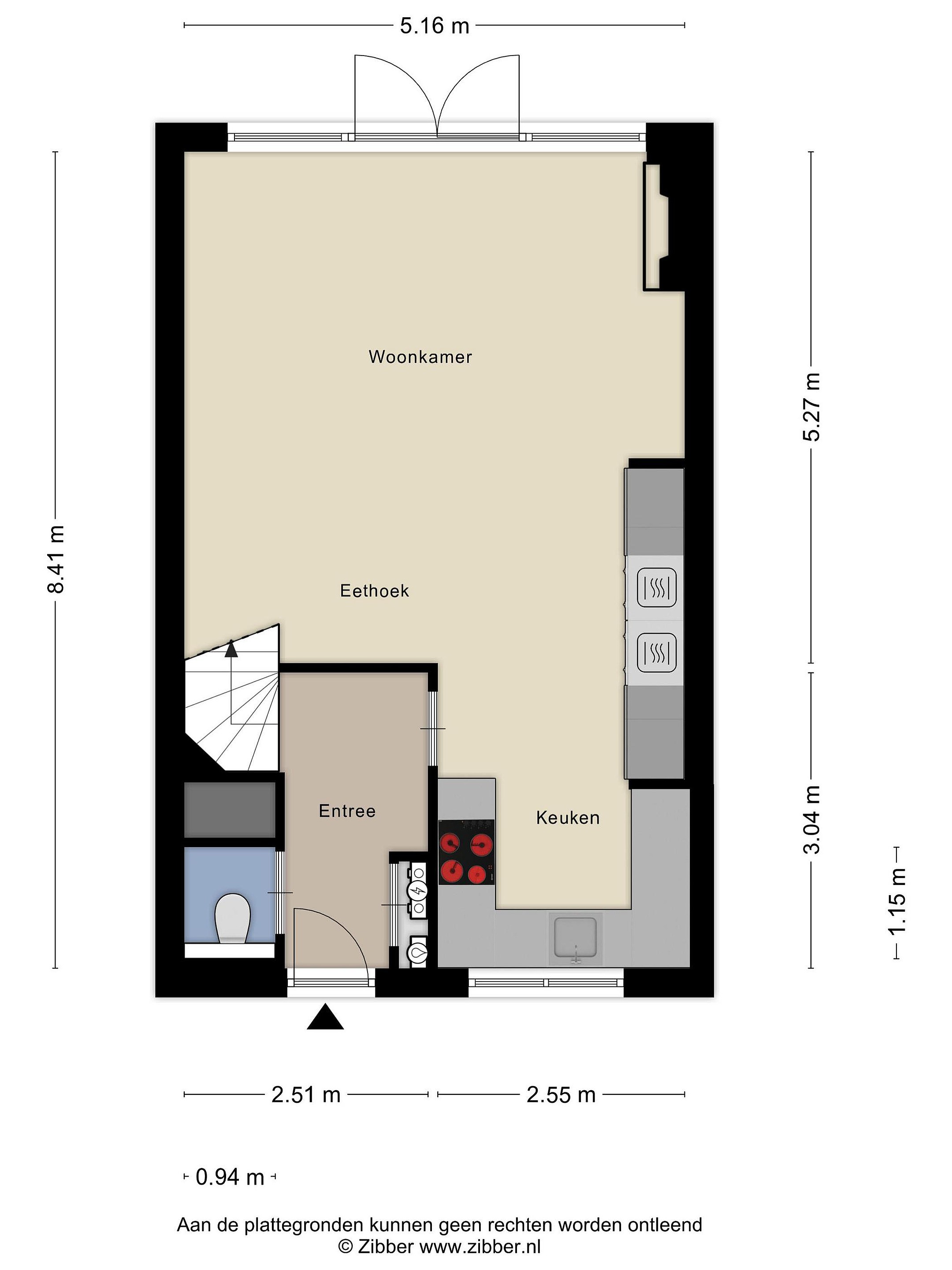
Indeling:
Begane grond: entree, hal met meterkast, toilet, ruime en lichte woonkamer, royale luxe keuken met inbouwapparaten en openslaande deuren naar de diepe achtertuin (Z) met overkapping, berging en achterom.

1e verdieping: overloop, 3 slaapkamers waarvan één met een ingebouwde walk-in closet, nette badkamer met de douche in het ligbad, dubbele wastafel met wastafelmeubel en 2e toilet.

2e verdieping: ruime overloop, opstelplaats CV-ketel, plaats voor wasmachine en droger, 2 slaapkamers met aan de voorzijde een dakkapel.

De woning is voorzien van houten kozijnen met dubbel en HR++ glas. Tevens zijn er 7 zonnepanelen.
Details
Enkele kenmerken:
Kadastrale aanduiding : Hoek van Holland sectie B nummer 3814
Grootte perceel: : 124 m2
Juridische status : Erfpacht t/m 21-11-2084
Canon afgekocht t/m 22-11-2035
Bouwjaar : Ca. 1986
Aantal kamers : 6 kamers (incl. woonkamer)
Parkeren : Voldoende in omgeving
  
NEN 2580 maatvoering : 
Gebruiksoppervlakte wonen 104 m2
Interne bergruimte 0 m2
Gebouw gebonden buitenruimte 0 m2
Externe bergruimte 6 m2
Inhoud van de woning excl. berging 368 m3
    
Gasverbruik 771 m3
Elektraverbruik  2374 kWh
Opwek zonnepanelen 1913 kWh
Gesaldeerd verbruik per jaar 461 kWh
Dit is een indicatie volgens huidige bewoning
  
CV ketel : Remeha W21c Eco 2000
  
Onderhoud binnen : Goed
Onderhoud buiten : Goed
  
Oplevering : In overleg, voorkeur gaat uit naar eind februari 2026
  
Bijzonderheden : Rustige, kindvriendelijke wijk, volledig geïsoleerd, zonnige tuin op het zuiden met overkapping, 7 zonnepanelen en dakkapel aan de voorzijde.


Navraag bij Gemeente Rotterdam geeft aan:
Voor een koper is het mogelijk om de erfpachtcanon aanvullend af te kopen tot en met de expiratiedatum van het recht, te weten 21-11-2084.
Als indicatie voor de aanvullende afkoopsom van de woning aan Johannes Timmerspad 9 te Rotterdam, geldt een bedrag van € 10.600,00.
Aan deze indicatie kunnen geen rechten worden ontleend.

Lees meer

Kenmerken

Overdracht

Prijs per m2
€ 4.423
Aangeboden sinds
11 november 2025
Status
Beschikbaar
Aanvaarding
In overleg

Bouw

Soort woonhuis
Eengezinswoning, tussen woning
Soort bouw
Bestaande bouw
Bouwjaar
1986
Soort dak
Zadeldak
Staat van onderhouden binnen
Goed
Staat van onderhouden buiten
Goed

Oppervlakte en inhoud

Perceeloppervlakte
124 m2
Inhoud van de woning
368 m3
Oppervlakte externe bergruimte
6 m2

Indeling

Aantal kamers
6
Aantal slaapkamers
5
Aantal woonlagen
3
Voorzieningen
Tuin, schuur/berging, ventilatie, buitenzonwering, dakraam

Buitenruimte

Balkon
Nee
Schuur/berging
Ja

Maandlasten berekenen

De maandlasten voor je woning bestaan uit meer dan alleen de hypotheeklasten. Hieronder vind je een overzicht van de bijkomende kosten en lasten. Zo weet je precies wat je huis per maand gaat kosten. En met de handige vergelijkers kun je ook nog eens snel de beste deals sluiten!

  • Kaart
  • Streetview