Van Beethovenlaan 89 2901 EM Capelle aan den IJssel

100m2
Wonen
5
Kamers
123m2
Perceel
1991
Bouwjaar
Een strak afgewerkte EENGEZINSWONING in de aantrekkelijke en kindvriendelijke wijk ’s-Gravenland!

Deze woning heeft recent allerlei vernieuwingen ondergaan, zoals het vernieuwde toilet, voor- en achtertuin, diverse keukenapparatuur, kunststof kozijnen (voordeur / keuken / hoofdslaapkamer / badkamer), elektrische rolluiken, airconditioning etc. Kortom: zonder klussen te betrekken!

Gelegen op een zeer centrale locatie in het gewilde ’s-Gravenland op loopafstand van school, winkels, metrostation etc.

Zie onderstaande hoofdkenmerken met nadere omschrijving en de uitgebreide fotoreportage. Zelf sfeer proeven in de woning? Bel met Kok Makelaars voor een bezichtiging!

Hoofdkenmerken:
- Gezellige tuingerichte woonkamer
- Keuken aan voorzijde met uitzicht op de straat
- 3 goed formaat slaapkamers eerste verdieping
- Moderne badkamer met inloopdouche
- Grote zolderkamer met mogelijkheden
- Fraaie achtertuin met houten berging
- Woonoppervlakte ca. 100 m2
- Perceeloppervlakte ca. 123 m2
- Eigen grond

Gelegen binnen de gewilde wijk ’s-Gravenland nabij voorzieningen zoals winkelcentrum Puccinipassaga, metrostation Capelsebrug, scholen, kinderdagopvang, gezondheidszorg, sportfaciliteiten en uitvalswegen.

INDELING (voor de afmetingen, zie de plattegrondtekeningen)

Begane grond:
De begane grond (m.u.v. het toilet) is voorzien van pvc vloerafwerking (2019) en vloerverwarming.

Entree/hal, met toegang tot de woonkamer, toilet, meterkast en gestoffeerde trapopgang naar de eerste verdieping.

Woonkamer, een fraai afgewerkte en gezellige woonkamer met toegang tot de achtertuin en een vaste kast onder de trap.

Keuken, gelegen aan de voorzijde van de woning, voorzien van een gaskookplaat met afzuigkap, Quooker (2025), vaatwasser, combioven (2025), koelkast en vriezer.

Toilet (2025), geheel betegeld, voorzien van een hangend closet, fonteintje en mechanische ventilatie.

Eerste verdieping:
De eerste verdieping (m.u.v. de badkamer) is voorzien van een laminaat vloerafwerking (2019).

Overloop, met toegang tot 3 slaapkamers, badkamer en trapopgang naar tweede verdieping.

Slaapkamer 1, een ruime kamer gelegen aan de voorzijde, voorzien van airconditioning en een vernieuwd kunststof kozijn met elektrisch rolluik
Slaapkamer 2, gelegen aan de achterzijde.
Slaapkamer 3, eveneens gelegen aan de achterzijde.

Badkamer, een moderne en geheel betegelde badkamer, voorzien van een inloopdouche met thermostaatkraan, rainshower en handdouche, wastafel met onderladen en een spiegel met verlichting, een tweede toilet (hangend closet), badkamerradiator, mechanische ventilatie en een te openen raam.

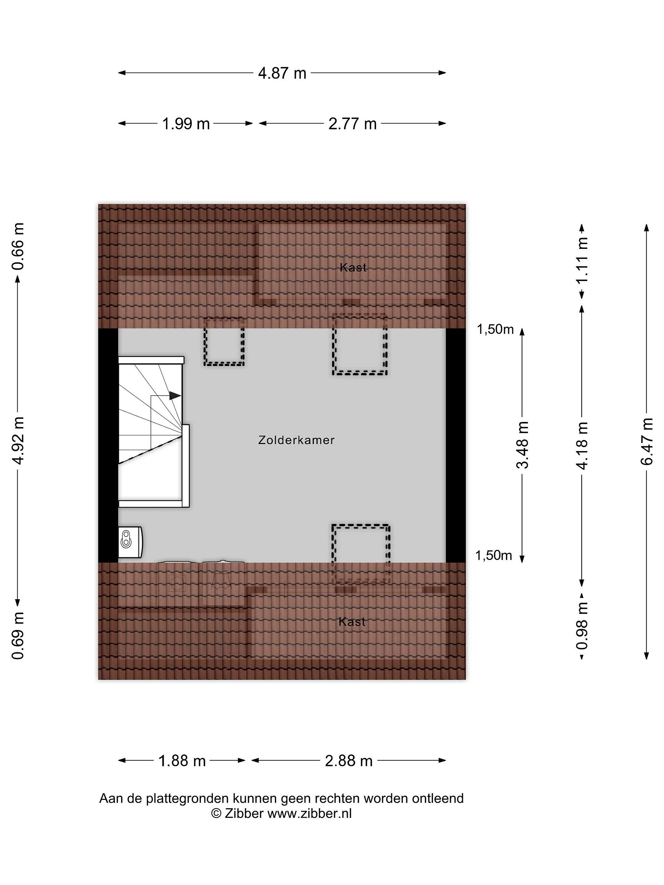
Tweede verdieping:
Zolderkamer, voorzien van laminaat vloerafwerking (2019), 3 Velux dakramen, bergruimte achter de knieschotten, wasmachine- en drogeraansluiting en toegang tot de opstelling cv-ketel en mechanische ventilatie unit.

Achtertuin, een heerlijke achtertuin, gesitueerd op het noord/westen (middag- en avondzon) voorzien van diverse groen, kunstgras, sierbestrating, houten berging, buitenkraan en achterom.

Bijzonderheden:
- Cv-ketel Intergas Kompakt HR (2010)
- Houten kozijnen achterzijde
- Kunststof kozijnen voorzijde (2025)
- Dubbele beglazing (gedeeltelijk HR++)
- Airconditioning Mitsubishi heavy(2025)
- Energielabel B
- Voor- en achtertuin opnieuw aangelegd 2024
- Extern schilderwerk achterzijde 2025
- Bouwjaar ca. 1991

Oplevering: in overleg met verkoper, bij voorkeur vanaf maart 2026.

Bij het samenstellen van deze verkoopinformatie en (plattegrond)tekeningen zijn we nauwkeurig te werk gegaan, aan onjuistheden en/of onvolkomenheden kunt u echter geen rechten ontlenen. Daarnaast aanvaardt de makelaar of zijn opdrachtgever geen aansprakelijkheid voor de in de verkoopinformatie en (plattegrond)tekeningen verstrekte informatie.
Lees meer

Kenmerken

Overdracht

Prijs per m2
€ 4.950
Aangeboden sinds
24 november 2025
Status
Beschikbaar
Aanvaarding
In overleg

Bouw

Soort woonhuis
Eengezinswoning, tussen woning
Soort bouw
Bestaande bouw
Bouwjaar
1991
Soort dak
Zadeldak
Staat van onderhouden binnen
Goed
Staat van onderhouden buiten
Goed

Oppervlakte en inhoud

Perceeloppervlakte
123 m2
Inhoud van de woning
355 m3
Oppervlakte externe bergruimte
6 m2

Indeling

Aantal kamers
5
Aantal slaapkamers
4
Aantal woonlagen
3
Voorzieningen
Tuin, schuur/berging, ventilatie, rolluiken, airconditioning, dakraam

Buitenruimte

Balkon
Nee
Schuur/berging
Ja

Maandlasten berekenen

De maandlasten voor je woning bestaan uit meer dan alleen de hypotheeklasten. Hieronder vind je een overzicht van de bijkomende kosten en lasten. Zo weet je precies wat je huis per maand gaat kosten. En met de handige vergelijkers kun je ook nog eens snel de beste deals sluiten!

  • Kaart
  • Streetview