Stadserf 72 3112 DX Schiedam

99m2
Wonen
3
Kamers
0m2
Perceel
1995
Bouwjaar
Wonen op het Stadserf betekent wonen te midden van alle denkbare voorzieningen die de gezellige binnenstad te bieden heeft. Het theater en de stadsbibliotheek liggen om de hoek, maar ook de gezellige weekmarkt op vrijdag en de Albert Hein op korte loopafstand voor de dagelijkse boodschappen maken dit tot een unieke plek.

Met het openbaar vervoer voor de deur, het centraal station en uitvalswegen dichtbij is er een uitstekende verbinding met omliggende grote steden.
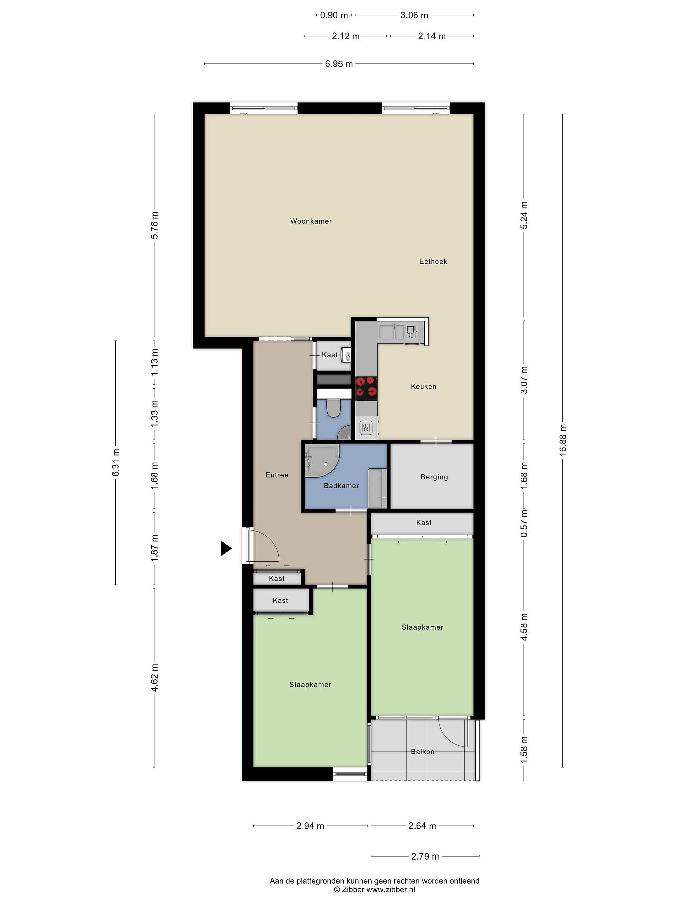
Dit ruime appartement van met bijna 100m2 woonoppervlak heeft een woonkamer, 2 slaapkamers, een open keuken, een badkamer en een balkon. De woning is gelegen op de derde verdieping.

Parkeren is geen probleem door de aanwezigheid van een extra ruime garagebox in de parkeergarage.

Het complex is voorzien van een lift en er is een actieve VVE.
Begane grond
Begane grond:
Afgesloten entree met intercom, brievenbussen en liftinstallatie.

3e verdieping:
Entree, hal met toilet, CV ruimte en toegang de woonkamer, 2 slaapkamers en badkamer.
Woonkamer met zicht op het Stadserf en open keuken met in hoek opgestelde keukeninrichting en toegang tot een praktische berging.
De badkamer is geheel betegeld en voorzien van een inloopdouche en wastafelmeubel.
De twee slaapkamers, waarvan er één toegang biedt tot een heerlijk zonnig balkon, bevinden zich aan de achterzijde van de woning.

Details
* Woonoppervlak 99 m2
* Garagebox 22 m2
* Energielabel A
* Actieve VVE, maandelijkse bijdrage € 386,99
* Gelegen op erfpachtgrond: looptijd recht van erfpacht 30-04-2093, de canonverplichting is afgekocht tot 01-05-2044
* er is een niet zelfbewoningsclausule van toepassing

Biedlogboek
Vanaf 1 januari 2023 zijn makelaars wettelijk verplicht een biedlogboek bij te houden bij de verkoop van bestaande woningen (en wanneer de koper en/of de verkoper een particulier is). Biedingen kunt u per die datum, en indien gewenst, nog steeds mondeling met ons bespreken maar dient u daarna digitaal aan ons te bevestigen via Eerlijk Bieden.

Toelichtingsclausule BBMI/NEN2580
De meetinstructie is gebaseerd op de BBMI/NEN2580. De meetinstructie is bedoeld om een meer eenduidige manier van meten toe te passen voor het geven van een indicatie van de gebruiksoppervlakte. De meetinstructie sluit verschillen in meetuitkomsten niet volledig uit, door bijvoorbeeld interpretatieverschillen, afrondingen of beperkingen bij het uitvoeren van de meting.

Rechtsgeldige koopovereenkomst pas ná ondertekening
Een mondelinge overeenstemming tussen de particuliere verkoper en de particuliere koper is niet rechtsgeldig. Met andere woorden: er is geen koop. Er is pas sprake van een rechtsgeldige koop als de particuliere verkoper en de particuliere koper de koopovereenkomst hebben ondertekend. Dit vloeit voort uit artikel 7:2 Burgerlijk Wetboek. Een bevestiging van de mondelinge overeenstemming per e-mail of een toegestuurd concept van de koopovereenkomst wordt overigens niet gezien als een ‘ondertekende koopovereenkomst’.

Deze informatie is met zorg samengesteld, maar voor de juistheid ervan kan door Moerman & De Jong Makelaars geen aansprakelijkheid worden aanvaard, noch kan aan de vermelde gegevens enig recht worden ontleend. Nadrukkelijk is vermeld dat deze informatieverstrekking niet als een aanbieding of offerte mag worden beschouwd.








Lees meer

Kenmerken

Overdracht

Prijs per m2
€ 3.788
Aangeboden sinds
2 december 2025
Status
Beschikbaar
Aanvaarding
In overleg

Bouw

Soort appartement
Portiekflat, appartement
Soort bouw
Bestaande bouw
Bouwjaar
1995
Soort dak
Plat dak
Staat van onderhouden binnen
Goed
Staat van onderhouden buiten
Goed

Oppervlakte en inhoud

Inhoud van de woning
327 m3
Oppervlakte externe bergruimte
22 m2
Oppervlakte gebouwgebonden buitenruimten
4 m2

Indeling

Aantal kamers
3
Aantal slaapkamers
2
Aantal woonlagen
1
Voorzieningen
Vve checklist, lift

Buitenruimte

Balkon
Nee
Schuur/berging
Nee

Maandlasten berekenen

De maandlasten voor je woning bestaan uit meer dan alleen de hypotheeklasten. Hieronder vind je een overzicht van de bijkomende kosten en lasten. Zo weet je precies wat je huis per maand gaat kosten. En met de handige vergelijkers kun je ook nog eens snel de beste deals sluiten!

  • Kaart
  • Streetview