Verkocht OV

Bentincklaan 27B 3039 KG Rotterdam

103m2
Wonen
4
Kamers
0m2
Perceel
1939
Bouwjaar
RECENT INTERN VOLLEDIG GERENOVEERD EN RUIM 4-KAMER APPARTEMENT GELEGEN AAN DE RAND VAN HET BRUISENDE CENTRUM VAN ROTTERDAM!

YESS! WAT EEN PLUSPUNTEN HEEFT DEZE WONING:
1. Geheel modern afgewerkt
2. Recent intern volledig gerenoveerd
3. Instapklaar!
4. Drie slaapkamers
5. Gelegen in de geliefde wijk Blijdorp
6. Drie balkons, gelegen op het noorden en zuiden
7. Op loopafstand van het Vroesenpark en Diergaarde Blijdorp
8. Aan de rand van het bruisende centrum van Rotterdam
9. Actieve VvE
10. Oplevering kan snel!

Krijg je hier ook het YESS-gevoel van? Dan nodigen wij je heel graag uit voor een bezichtiging van deze leuke woning!

DE OMGEVING:
Dit charmante appartement is gelegen in de populaire jaren ’30 wijk Blijdorp aan de rand van het centrum, aan een ventweg van de Bentincklaan en kijkt aan de voorzijde uit over de sportvelden. De wijk Blijdorp wordt gekenmerkt door zijn groene en rustige karakter gecombineerd met alle stadse voorzieningen in de nabije omgeving. Denk hierbij aan supermarkten, delicatessezaken, restaurants, cafés, scholen en sportfaciliteiten.

Voor ontspanning kun je kiezen voor een gezellig avondje barbecueën met vrienden in het Vroesenpark of een dagje uit naar Diergaarde Blijdorp, waarvan de oude ingang zich op een paar honderd meter bevindt. Daarnaast is de bereikbaarheid uitstekend! Er is een goede verbinding met het openbaar vervoer (o.a. metrostation Blijdorp en het Centraal Station) en de uitvalswegen (A20 en A13). Deze woning biedt een perfecte balans tussen natuur en stedelijke voorzieningen!

DE INDELING:
Begane grond:
Het appartementencomplex is middels een afgesloten en centrale hal te betreden. Hier bevinden zich ook de brievenbussen, het bellentableau/intercom en is er toegang tot de bergingen in de onderbouw. De berging is v.v. de wasmachineaansluiting. Het appartement is gelegen op de eerste verdieping en is bereikbaar via het trappenhuis.

1e verdieping:
Via de entree kom je in de ruime hal. De hal is voorzien van de meterkast, toiletruimte, trapopgang naar de 2e verdieping en geeft toegang tot alle vertrekken. De toiletruimte is half betegeld in een beige kleurstelling met messing details en is voorzien van een zwevend toilet met fonteintje.

De woonkamer is heerlijk ruim en licht van opzet door de hoekligging van het appartement. De woonkamer is eenvoudig in te delen in een woon- en eetgedeelte en geeft toegang tot het balkon aan de voorzijde.

De recent gerenoveerde keuken is gelegen aan de achterzijde van de woning en is uitgevoerd in een wandopstelling. De modern en hoogwaardig afgewerkte keuken is voorzien van een stenen marmerlook werkblad, voldoende kastruimte, een spoelbak en diverse Siemens inbouwapparatuur, waaronder een inductiekookplaat, afzuigkap, koelkast, vriezer, oven en vaatwasser. Tevens bevindt zich hier de opstelplaats van de C.V.-ketel en is er toegang tot het balkon aan de achterzijde.

Op deze verdieping zijn ook twee slaapkamers gelegen. De master bedroom is aan de achterzijde van het appartement gelegen en geeft toegang tot de badkamer en het balkon. De tweede slaapkamer is ook gelegen aan de achterzijde, is v.v. een bergkast en geeft toegang tot het balkon.

De luxe afgewerkte en recent gerenoveerd badkamer is volledig betegeld in een beige kleurstelling met messing details. De badkamer is voorzien van een inloopdouche met regendouche, dubbel wastafelmeubel, spiegel en handdoekradiator.

Deze verdieping is voorzien van een doorlopende laminaatvloer, gestuukte wanden en plafonds (m.u.v. de hal) en paneeldeuren.

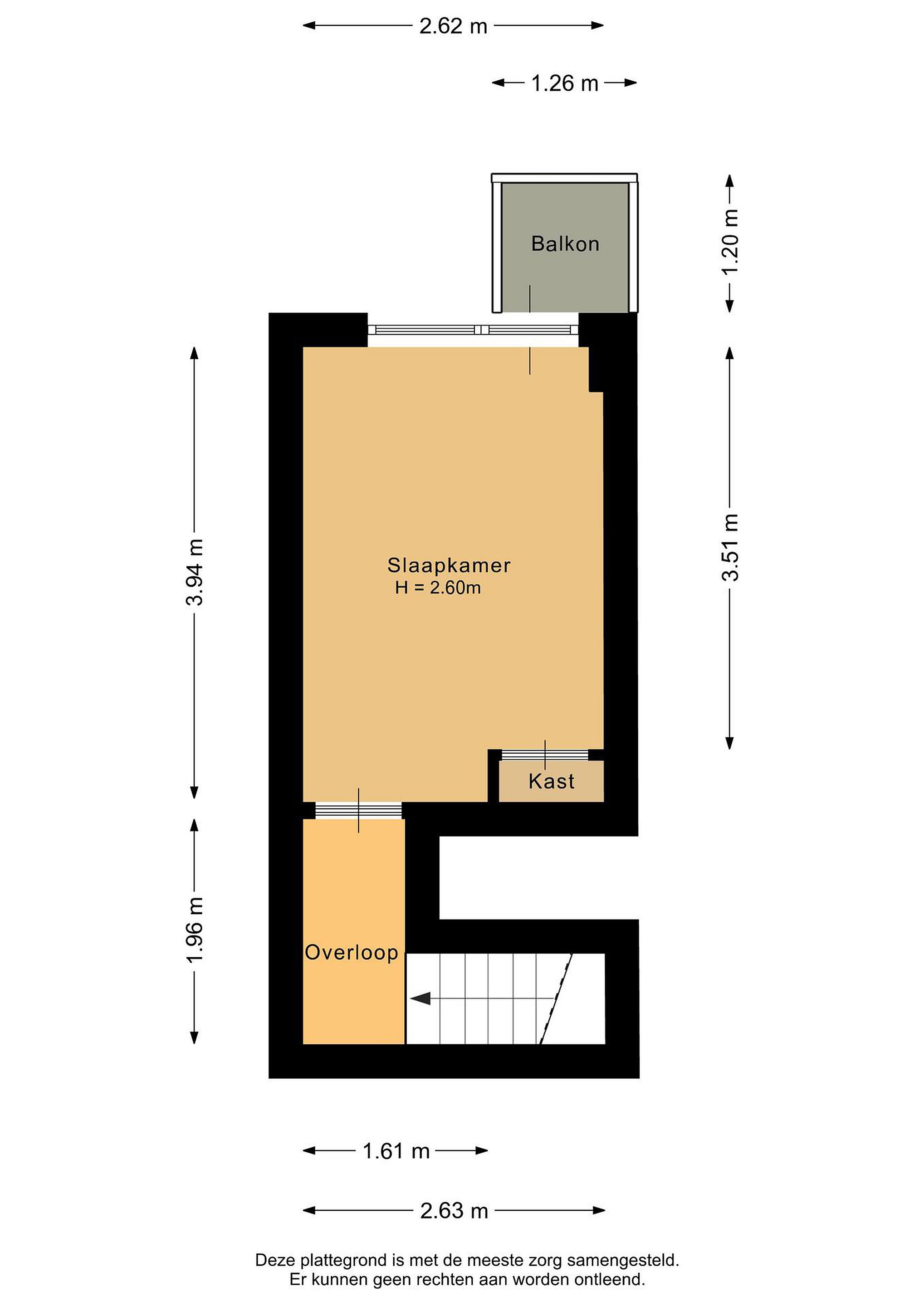
2e verdieping:
Op deze verdieping bevindt zich een kleine overloop, welke toegang geeft tot de derde slaapkamer. De slaapkamer is gelegen aan de achterzijde van het appartement en geeft toegang tot het balkon.

DE AFMETINGEN:
Voor de afmetingen en indeling, zie de plattegrond.

DE BIJZONDERHEDEN:
- Woonoppervlakte van ca. 103 m2;
- Bouwjaar 1939;
- Energielabel D;
- Houten kozijnen v.v. dubbele beglazing;
- Verwarming en warm water middels C.V-ketel (merk: Vaillant, bouwjaar: 2021);
- Ruime berging in de onderbouw;
- Actieve VvE, maandelijkse bijdrage €182,01
- Eigen grond;
- Oplevering in overleg, kan snel;
- Niet-zelf bewoningsclausule en as-is-where-is clausule (m.u.v. de styling, deze wordt verwijderd) van toepassing.

Vraagprijs €500.000,- k.k.

De Meetinstructie is gebaseerd op de NEN2580. De Meetinstructie is bedoeld om een meer eenduidige manier van meten toe te passen voor het geven van een indicatie van de gebruiksoppervlakte. De Meetinstructie sluit verschillen in meetuitkomsten niet volledig uit, door bijvoorbeeld interpretatieverschillen, afrondingen of beperkingen bij het uitvoeren van de meting.

Alle verstrekte informatie moet beschouwd worden als een uitnodiging tot het doen van een bod of om in onderhandeling te treden. Er kunnen geen rechten worden ontleend aan deze woninginformatie.

WIL JE EEN AFSPRAAK MAKEN OM DEZE WONING TE BEZICHTIGEN? JE MAG ONS BELLEN, MAILEN , APPEN OF LAAT EEN REACTIE ACHTER VIA DEZE SITE.
Lees meer

Kenmerken

Overdracht

Prijs per m2
€ 4.854
Aangeboden sinds
3 november 2025
Status
Verkocht onder voorbehoud
Aanvaarding
In overleg

Bouw

Soort appartement
Portiekflat, appartement
Soort bouw
Bestaande bouw
Bouwjaar
1939
Soort dak
Plat dak
Staat van onderhouden binnen
Goed
Staat van onderhouden buiten
Goed

Oppervlakte en inhoud

Inhoud van de woning
338 m3
Oppervlakte externe bergruimte
17 m2
Oppervlakte gebouwgebonden buitenruimten
11 m2

Indeling

Aantal kamers
4
Aantal slaapkamers
3
Aantal woonlagen
2
Voorzieningen
Balkon, schuur/berging

Buitenruimte

Balkon
Ja
Schuur/berging
Ja

Maandlasten berekenen

De maandlasten voor je woning bestaan uit meer dan alleen de hypotheeklasten. Hieronder vind je een overzicht van de bijkomende kosten en lasten. Zo weet je precies wat je huis per maand gaat kosten. En met de handige vergelijkers kun je ook nog eens snel de beste deals sluiten!

  • Kaart
  • Streetview