Verkocht

Grasoever 4 2371 JA Roelofarendsveen

68m2
Wonen
2
Kamers
0m2
Perceel
2018
Bouwjaar
Sfeervol, licht en instapklaar 2-kamerappartement met zonnig balkon én privéberging in hartje Roelofarendsveen.

Koopsom vanaf € 400.000,-

Geniet van comfortabel wonen in dit moderne en instapklare 2-kamerappartement met zonnig balkon. De woning beschikt over een lichte woonkamer met open keuken, een ruime slaapkamer, een luxe badkamer en een separaat gastentoilet. Alles is tot in detail verzorgd en stijlvol afgewerkt.

Gelegen op een centrale locatie in Roelofarendsveen, met alle voorzieningen zoals winkels, horeca en het water op loopafstand.

Dit smaakvol afgewerkte appartement combineert een doordachte indeling met veel daglicht en een moderne uitstraling. Met een woonoppervlakte van circa 70 m2 ervaar je een prettige leefruimte waarin wonen, koken en ontspannen naadloos in elkaar overgaan.

Kortom: een verzorgd en luxe appartement dat absoluut een bezichtiging waard is!

Ligging:
Dit stijlvolle appartement aan de Grasoever 4 ligt op een heerlijke plek in Roelofarendsveen, midden in het gezellige dorpshart. In de directe omgeving vind je diverse winkels, supermarkten en speciaalzaken voor je dagelijkse boodschappen. Ook zijn er volop voorzieningen op het gebied van onderwijs, sport, horeca en gezondheidszorg, waardoor het wonen hier comfortabel en compleet is.

Roelofarendsveen maakt deel uit van de waterrijke gemeente Kaag en Braassem, midden tussen de Westeinderplassen, het Braassemermeer en de Kagerplassen. Dankzij het vaarwater direct voor de deur vaar je via ’t sluisje zó de plassen op, ideaal voor liefhebbers van zeilen, suppen, kanoën of gewoon ontspannen aan het water.
Daarnaast is de omgeving rijk aan prachtige fiets- en wandelroutes, die je langs uitgestrekte polderlandschappen en schilderachtige natuurgebieden voeren.

Bereikbaarheid:
De ligging is zeer centraal in de Randstad met goede bereikbaarheid via de A4 en A44. Binnen een half uur rijd je naar Amsterdam, Den Haag of de kust. Schiphol ligt op slechts 10 à 15 minuten afstand, ideaal voor forenzen of reizigers. Aan de Alkemadelaan ligt een bushalte met directe verbindingen richting Leiden en Schiphol.
Begane grond
Centrale entree met videofooninstallatie en brievenbussen.

In de onderbouw bevindt zich een ruime privéberging (ca. 5 m2), voorzien van elektra en ideaal voor het stallen van fietsen of extra opslagruimte.

Via de trapopgang of de lift is het appartement op de eerste verdieping eenvoudig bereikbaar.

Eerste verdieping
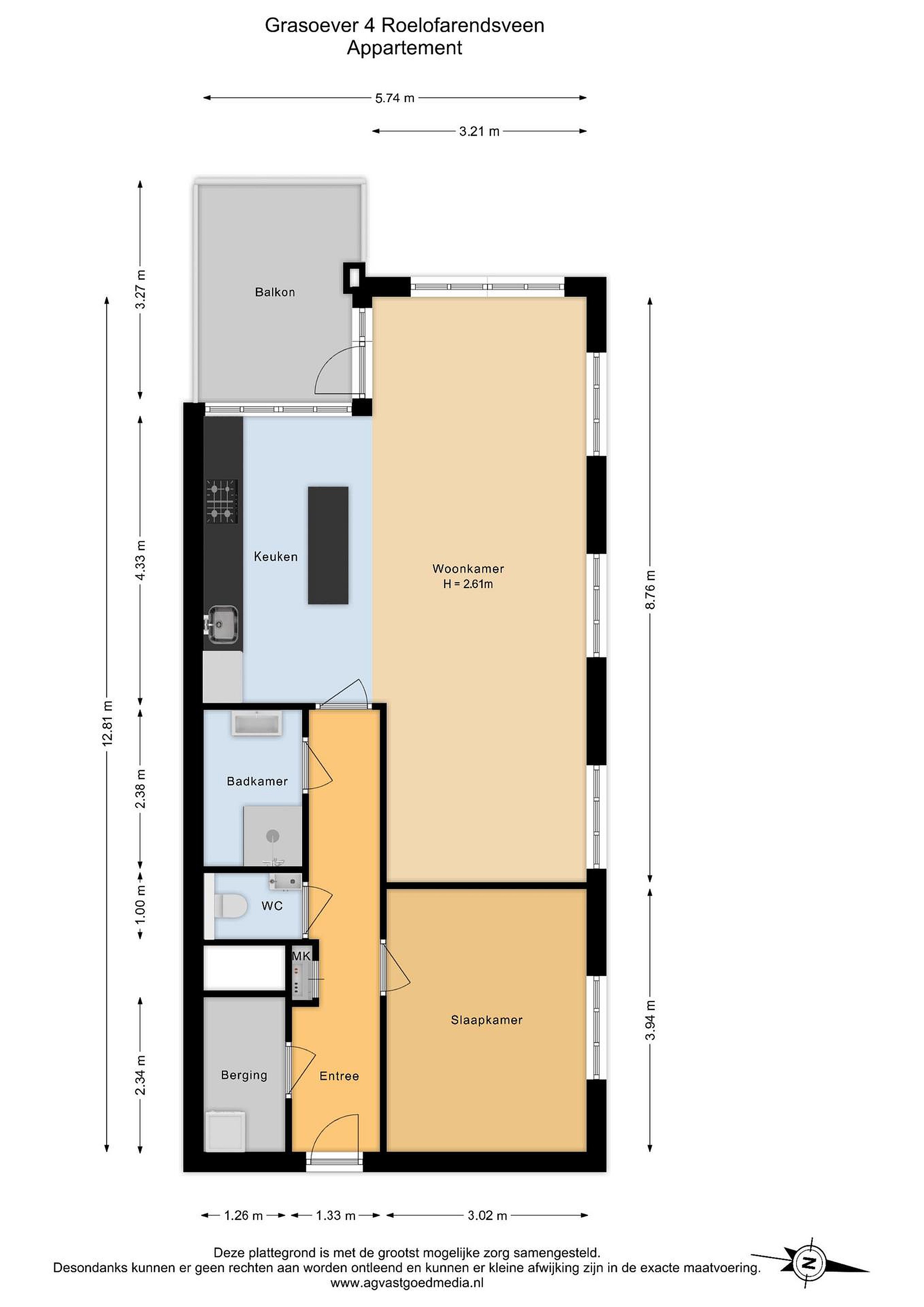
Bij binnenkomst leidt een nette hal naar alle vertrekken. Vanuit de hal is er toegang tot een modern gastentoilet met vrijhangend toilet en fonteintje. De complete en geheel betegelde badkamer is voorzien van een ruime inloopdouche met douchescherm van glas en zwart, een designradiator en een wastafelmeubel. De ruime slaapkamer biedt voldoende ruimte voor een tweepersoonsbed en kasten en profiteert van grote raampartijen voor veel lichtinval.

Het woongedeelte vormt het hart van het appartement: Een open, lichte woonkamer en een échte woonkeuken met moderne keukenopstelling en kookeiland/eetbar. Grote ramen en een doorgang naar het balkon maken de ruimte extra prettig, ideaal voor een ochtendkoffie of heerlijk tot rust komen met een goed boek. Het zonnige balkon is gunstig gelegen op het zuidwesten en heeft een oppervlakte van circa 8m2 en kijkt uit over de levendige omgeving.

De afwerking van het appartement is stijlvol en warm: Een fraaie laminaatvloer, strakke wandafwerking en moderne details in keuken en badkamer.

Details
- Bouwjaar 2018 / Modern, goed geïsoleerd appartementencomplex met lift.
- Woonoppervlakte: ca. 68 m2, balkon ca. 8 m2, berging ca. 5 m2 (volgens NEN 2580).
- Kunststof kozijnen met HR++ beglazing, wand- en dakisolatie.
- Elektrische vloerverwarming door het gehele appartement.
- Domoticasysteem voor automatische bediening van o.a. verwarming en verlichting.
- Zonnepanelen (2018) t.b.v. de gemeenschappelijke ruimten van het complex.
- Moderne open keuken (2018) met inbouwapparatuur en Quooker-kraan (2023).
- Luxe badkamer met inloopdouche en wastafelmeubel; separaat gastentoilet.
- Volledig instapklaar, lichte afwerking en neutrale kleuren.
- Energielabel A / Intergas Xtreme 36 cv-combiketel (2018).
- Actieve VvE, professioneel beheerd, bestaande uit 6 appartementen.
- Servicekosten: € 199,76 per maand (inclusief onderhoudsreservering).
- Privéberging op de begane grond, geschikt voor fietsen en opslag.
- Gratis parkeergelegenheid direct bij het gebouw (geen vergunning nodig).
- Oplevering in overleg.

Koopsom vanaf € 400.000,- / Vraagprijs € 450.000,-
Alle biedingen vanaf € 400.000,- worden in overweging genomen.

Lees meer

Verkoopgeschiedenis

Aangeboden sinds
6 november 2025
Verkoopdatum
6 december 2025
Looptijd
één maand

Kenmerken

Overdracht

Prijs per m2
€ 5.882
Aangeboden sinds
6 november 2025
Status
Verkocht
Aanvaarding
In overleg

Bouw

Soort appartement
Portiekflat, appartement
Soort bouw
Bestaande bouw
Bouwjaar
2018
Soort dak
Plat dak
Staat van onderhouden binnen
Uitstekend
Staat van onderhouden buiten
Uitstekend

Oppervlakte en inhoud

Inhoud van de woning
229 m3
Oppervlakte externe bergruimte
5 m2
Oppervlakte gebouwgebonden buitenruimten
8 m2

Indeling

Aantal kamers
2
Aantal slaapkamers
1
Aantal woonlagen
1
Voorzieningen
Vve checklist, tuin, balkon, schuur/berging, ventilatie, kabel-tv, glasvezel

Buitenruimte

Balkon
Ja
Schuur/berging
Ja

Maandlasten berekenen

De maandlasten voor je woning bestaan uit meer dan alleen de hypotheeklasten. Hieronder vind je een overzicht van de bijkomende kosten en lasten. Zo weet je precies wat je huis per maand gaat kosten. En met de handige vergelijkers kun je ook nog eens snel de beste deals sluiten!

  • Kaart
  • Streetview