Verkocht OV

Dorrestein 38 2912 BC Nieuwerkerk aan den IJssel

93m2
Wonen
3
Kamers
0m2
Perceel
2008
Bouwjaar
AANTREKKELIJK APPARTEMENT | FIJNE LOCATIE | ALTIJD WAT TE ZIEN

Aantrekkelijk en aangenaam licht 3 kamer appartement met een gezellige woonkamer met half open keuken, 2 slaapkamers én 2 balkons. Je kunt kiezen voor de gezelligheid en levendigheid aan de voorzijde of voor het rustige plekje aan de achterzijde met uitzicht op de prachtige binnentuin.

Een groot pluspunt is de ideale en centrale ligging boven winkelcentrum Dorrestein. Met een paar minuten ben je beneden en loop je zo naar de supermarkt, warme bakker, 'de primera', bloemist en de apotheek. Opstapplaats voor openbaar vervoer op circa 150 meter afstand.

Dit comfortabele appartement ligt op de tweede verdieping van een kleinschalig appartementengebouw mét een prachtige gemeenschappelijke daktuin. De entree ligt tegenover de kerk aan de zijde van snackbar Verhage.

- Bouwjaar 2008 - Energielabel A.
- Gebruiksoppervlakte wonen 94m2, exclusief de 2 balkons.
Begane grond
Entree op begane grond
Afgesloten entree met videofoon. Hal met brievenbussen, verzorgd trappenhuis en toegang tot de lift.

Entree appartement op 2e verdieping.

Gang met meterkast, toilet en toegang tot de vertrekken.

Woonkamer
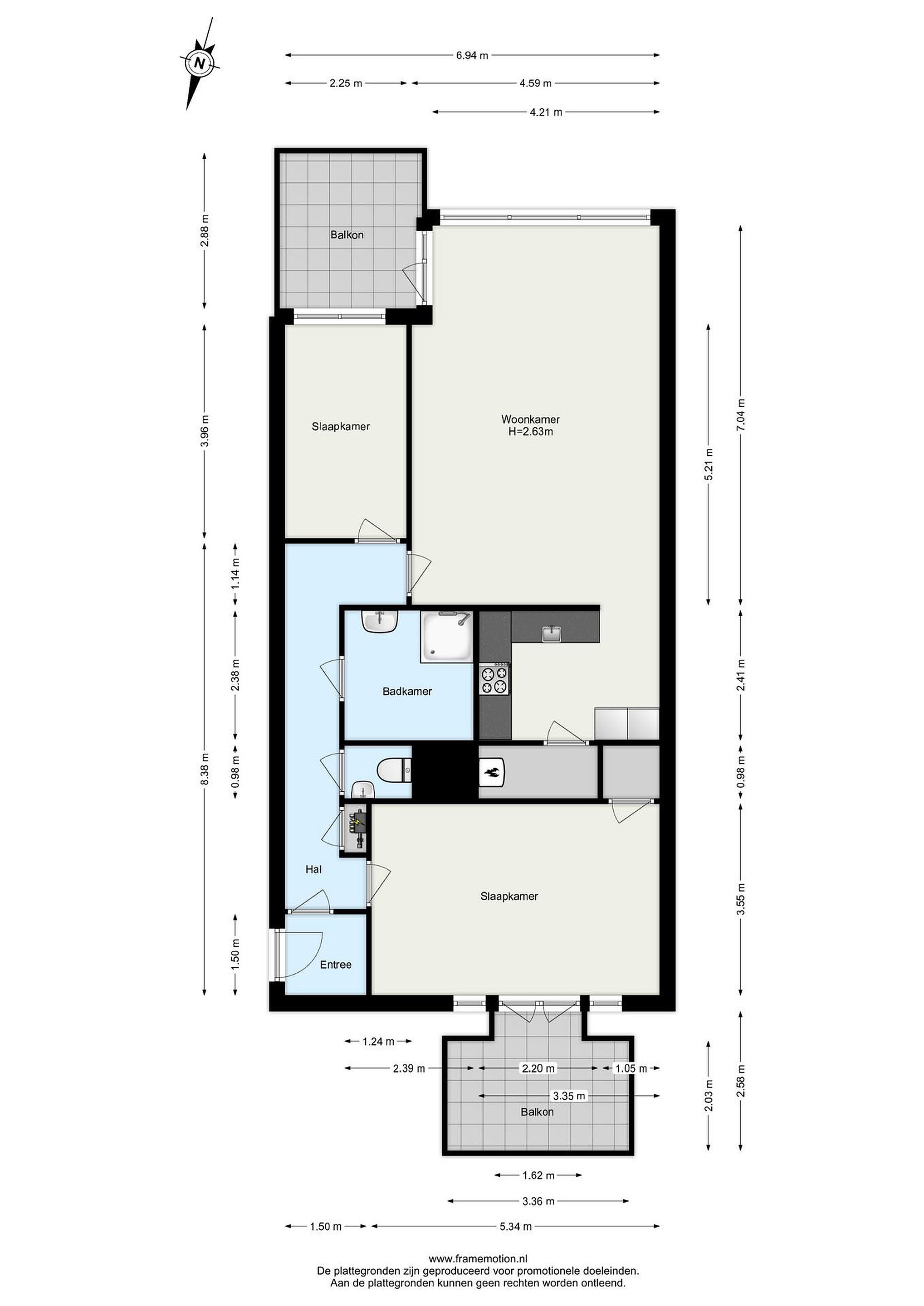
Gezellige woonkamer (ca. 7.04 x 4.59m) met fijne lichtinval en leuk uitzicht over de wijk Dorrestein, de Boslaan en de Prins Mauritssingel. Deur naar balkon.

Balkon
Zonnig balkon (ca. 2.88 x 2.25m) met goede afmeting om alleen of met gasten te vertoeven. Door de ligging op de hoek ervaar je veel vrijheid en privacy. Vanaf het balkon kun je van levendig uitzicht genieten. Het balkon ligt op het zuidoosten.

Keuken
Via een 'half hoog' muurtje wordt de keuken van de woonkamer gescheiden.
Ruime keuken uit 2008 (ca. 3.35 x 2.41m) met keukeninrichting in hoekopstelling en kastenwand.
Inbouwapparatuur: inductie kookplaat, afzuigsysteem, oven, koel/vrieskast en vaatwasser.

Bijkeuken
Handige ruimte (ca. 2.20 x 0.98m) met aansluiting voor wasmachine, opstelling cv apparatuur en mechanische ventilatie.

Slaapkamer 1 (ca. 5.34 x 3.55m)
Royale slaapkamer met handige inbouwkast en openslaande deuren naar balkon. Dit balkon (ca. 3.36 x 2.00m) ligt op het noordwesten, je kunt hier dus van de middagzon genieten. Vanaf dit balkon kijk je op de daktuin.

Slaapkamer 2 (ca. 3.96 x 2.25m)
Goed in te richten als werkkamer of logeerkamer.

Badkamer (ca. 2.41 x 2.39m)
Verzorgde en ruime badkamer met douchecabine en wastafel.

Parkeren
Er is voldoende openbare parkeergelegenheid rondom het appartementengebouw.

Vereniging van eigenaren.
Er is een actieve Vereniging van Eigenaren. De maandelijkse bijdrage aan de VvE is € 197,01. Recente stukken zoals notulen en financiële cijfers (jaarverslag) zijn beschikbaar via ons kantoor.

Details
Bouwjaar appartementengebouw 2008.
Gebruiksoppervlakte wonen 94m2, exclusief balkons
Verwarming en warm water via eigen cv-combiketel.
Het hele appartement is v.v. dubbel glas in houten kozijnen.
Dit appartement heeft energielabel ‘A’.
Berging op begane grond.
In de koopovereenkomst zal de niet zelfbewoningsclausule worden opgenomen.

Lees meer

Kenmerken

Overdracht

Prijs per m2
€ 5.323
Aangeboden sinds
7 november 2025
Status
Verkocht onder voorbehoud
Aanvaarding
In overleg

Bouw

Soort appartement
Portiekflat, appartement
Soort bouw
Bestaande bouw
Bouwjaar
2008
Soort dak
Plat dak
Staat van onderhouden binnen
Goed
Staat van onderhouden buiten
Goed

Oppervlakte en inhoud

Inhoud van de woning
295 m3
Oppervlakte externe bergruimte
4 m2
Oppervlakte gebouwgebonden buitenruimten
15 m2

Indeling

Aantal kamers
3
Aantal slaapkamers
2
Aantal woonlagen
1
Voorzieningen
Vve checklist, balkon, schuur/berging, ventilatie, lift

Buitenruimte

Balkon
Ja
Schuur/berging
Ja

Maandlasten berekenen

De maandlasten voor je woning bestaan uit meer dan alleen de hypotheeklasten. Hieronder vind je een overzicht van de bijkomende kosten en lasten. Zo weet je precies wat je huis per maand gaat kosten. En met de handige vergelijkers kun je ook nog eens snel de beste deals sluiten!

  • Kaart
  • Streetview