Merellaan 507 3145 ES Maassluis

103m2
Wonen
3
Kamers
0m2
Perceel
1969
Bouwjaar
Op zoek naar een luxe verbouwd en verduurzaamd appartement met garage langs de Nieuwe Waterweg? Dit is uw kans!
Let op! De vraagprijs voor het appartement is € 375.000,- exclusief garage. De vraagprijs voor de garage is € 35.000,-.

Ruim 3 kamer appartement (oorspronkelijk 4 kamers) op de 5e verdieping met een groot zonnig terras en serre met schitterend uitzicht op de Nieuwe Waterweg.

Deze woning bevindt zich in een complex dat in 2024 grondig is gerenoveerd en verduurzaamd. Zo zijn alle woningen voorzien van kunststof kozijnen met triple glas en zijn de gevels en het dak extra geïsoleerd. Meer details over verduurzaming en recente verbeteringen vertellen wij u graag tijdens de rondleiding.

De woning is intern in 2020 verbouwd. Eén van de slaapkamers aan de voorzijde is bij de keuken getrokken met als resultaat een zeer ruime eetkeuken. Tevens is de slaapkamer aan de balkonzijde verkleind zodat er aansluitend aan het terras een serre is ontstaan. Zo kunt u het hele jaar door van de langsvarende schepen genieten.

Het appartement is ideaal gelegen want u vindt alles op loopafstand: winkelcentrum Koningshoek met ca 60 winkels, theater Koningshof, de bibliotheek, metrostation Maassluis-West, een bushalte, een gezondheidscentrum en volop wandel/fiets en overige recreatiemogelijkheden.

Met het openbaar vervoer bent u zo in Rotterdam of Hoek van Holland maar ook met de auto bent u snel op pad. De A20 bereikt u in ca 5 minuten.

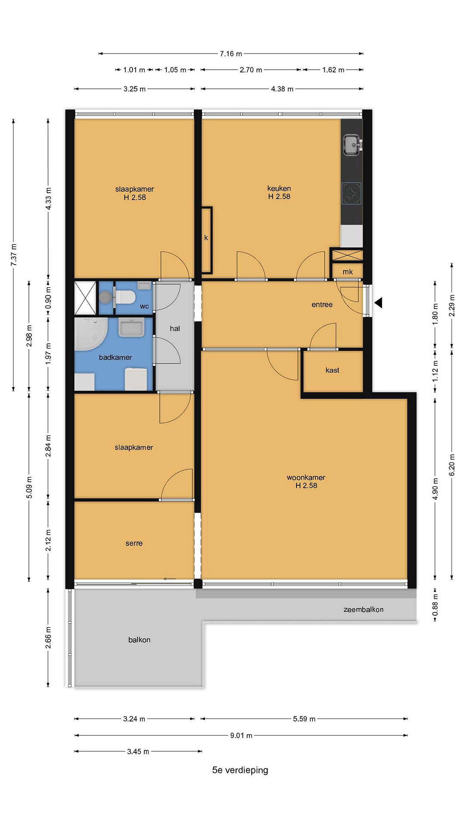
Voor de exacte indeling en indicatieve maatvoering verwijzen wij u graag door naar de plattegrond.

Indeling:

Begane grond:
Goed verzorgde entreehal met brievenbussen en bellenplateau; toegang naar de lift en de berging. De garagebox is direct naast de ingang!

Vijfde verdieping:
Entree in brede hal met meterkast, intercom en vaste bergkast. Vanuit deze centrale hal toegang naar de woonkamer, keuken en achtergelegen hal.

In de gehele woning – met uitzondering van badkamer en toilet – ligt een fraaie doorgelegde PVC-vloer.

De ruime sfeervolle woonkamer met grote raampartij heeft een doorgang naar de serre. Via een schuifdeur bereikt u het gezellige terras, gelegen op het zuid/westen.

De riante eetkeuken aan de voorzijde is uitgerust met een fraai multifunctioneel Italiaans fornuis (merk Bertazzoni) met inductie kookplaat, vaatwasser, koel/vriescombinatie.

Via de kleine achtergelegen hal bereikt u beide slaapkamers, het toilet en de geheel betegelde badkamer met douchecabine, wasbak en aansluiting voor een wasmachine/droger.

Bijzonderheden:
- Bouwjaar 1969
- Eigen grond
- Gebruiksoppervlakte wonen 103,7 m2
- Garagebox met elektrische deur (motor recent vernieuwd)
- Geheel voorzien van kunststof kozijnen met triple glas
- Energielabel B
- Fraaie doorgelegde PVC-vloer
- Elektrisch zonnescherm aanwezig
- Mechanisch gestuurde CO2 ventilatie
- Zonnig terras ligging zuid/west
- Prachtig uitzicht op de Nieuwe Waterweg
- VvE bijdrage appartement € 453,81per maand incl. aflossing warmtefondslening
- VvE bijdrage garagebox € 97,35 per maand
- Voorschot stookkosten € 80,75 per maand
- Blokverwarming
- Warmwatervoorziening middels elektrische 120 liter boiler
- Koper aanvaard de objectinformatie met aanvullende clausules
- Gewenste opleverdatum: begin januari 2026

U kunt een bezichtiging aanvragen door op funda het contactformulier in te vullen. Er wordt dan contact met u opgenomen om de afspraak te maken.
De vermelde informatie is van algemene aard en is niet meer dan een uitnodiging om de woning te bezichtigen of om in onderhandeling te treden. Hoewel deze tekst en plattegrond met zorg zijn samengesteld zijn wij niet aansprakelijk voor eventuele onjuistheden. De toegepaste Meetinstructie sluit verschillen in meetuitkomsten niet volledig uit, door bijvoorbeeld interpretatieverschillen, afrondingen of beperkingen bij het uitvoeren van de meting. Aan de inhoud van deze informatie kunnen geen rechten worden ontleend.

Lees meer

Kenmerken

Overdracht

Prijs per m2
€ 3.641
Aangeboden sinds
18 november 2025
Status
Beschikbaar
Aanvaarding
In overleg

Bouw

Soort appartement
Portiekflat, appartement
Soort bouw
Bestaande bouw
Bouwjaar
1969
Soort dak
Plat dak
Staat van onderhouden binnen
Goed
Staat van onderhouden buiten
Goed

Oppervlakte en inhoud

Inhoud van de woning
328 m3
Oppervlakte externe bergruimte
17 m2
Oppervlakte gebouwgebonden buitenruimten
12 m2

Indeling

Aantal kamers
3
Aantal slaapkamers
2
Aantal woonlagen
1
Voorzieningen
Balkon, ventilatie, buitenzonwering, lift, schuifpui

Buitenruimte

Balkon
Ja
Schuur/berging
Nee

Maandlasten berekenen

De maandlasten voor je woning bestaan uit meer dan alleen de hypotheeklasten. Hieronder vind je een overzicht van de bijkomende kosten en lasten. Zo weet je precies wat je huis per maand gaat kosten. En met de handige vergelijkers kun je ook nog eens snel de beste deals sluiten!

  • Kaart
  • Streetview