Wagenstraat 75 2512 AR 's-Gravenhage

157m2
Wonen
5
Kamers
0m2
Perceel
1914
Bouwjaar
OPGELET | CENTRUM VAN DEN HAAG | 157M2 | KLUSWONING MET VEEL POTENTIE | BOUWJAAR 1914 | ROYALE ZONNIGE DAKTERRAS | EIGEN GROND



Gelegen in de Haagse binnenstad. Alle voorzieningen voor het centrumleven zijn op loopafstand en om de hoek. Natuurlijk vind je ook op loopafstand volop alle gezellige eetgelegenheden en kroegjes die de binnenstad ook biedt. Alle openbaar vervoerverbindingen op loopafstand en het Centraal station en met neme het Hollands Spoor zijn op loopafstand.


Entree op de begane grond, trap naar 1e verdieping

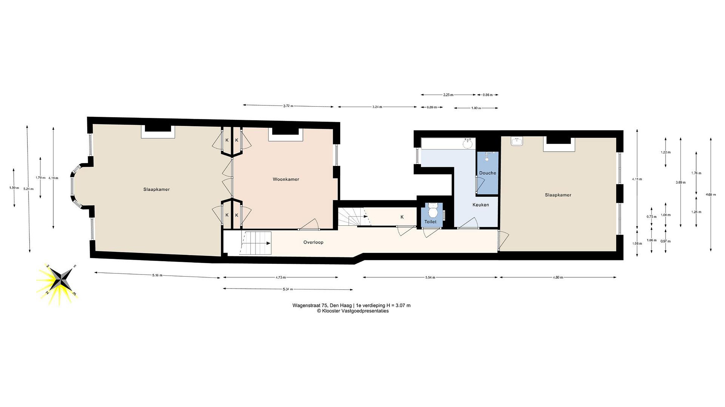
Eerste Verdieping

Op de eerste verdieping van deze woning vind je een ruime slaapkamer aan de voorzijde, ideaal als master bedroom. De woonkamer is centraal gelegen en biedt royale leefruimte met ingebouwde kasten aan weerszijden voor extra opbergruimte. Aan de achterzijde bevindt zich een tweede, rustige slaapkamer, naast een functionele keuken met een aangrenzende doucheruimte en een apart toilet. Een lange overloop verbindt alle kamers met elkaar en leidt naar de trap naar de tweede verdieping.

Tweede Verdieping

De tweede verdieping biedt nog een grote slaapkamer aan de voorzijde, een compacte maar praktische keuken, en een tweede slaapkamer aan de achterzijde. Tussen de keuken en de slaapkamer bevindt zich een complete badkamer. Het hoogtepunt van deze verdieping is het ruime terras aan de achterzijde, dat een geweldige buitenruimte biedt voor ontspanning. De overloop verbindt alle ruimtes en biedt toegang tot het terras.


BIJZONDERHEDEN:
- Bouwjaar 1914
- 4 slaapkamers
- Ruim terras
- Woonoppervlakte 92m2
- Eigen grond
- Maandelijkse VvE bijdrage € 25,-
- In het centrum van Den Haag
- Oplevering in overleg







INTERESSE IN DIT HUIS? MAAK DAN SNEL EEN AFSPRAAK!
Bij ons staat persoonlijke aandacht voorop. Wij plannen graag samen een moment in voor de bezichtiging van dit huis.
Nog vragen? Wij staan voor u klaar om deze te beantwoorden! Zien wij u binnenkort?
Het team van 88 Makelaars
Lees meer

Kenmerken

Overdracht

Prijs per m2
€ 3.815
Aangeboden sinds
9 september 2025
Status
Beschikbaar
Aanvaarding
In overleg

Bouw

Soort appartement
Maisonette, appartement
Soort bouw
Bestaande bouw
Bouwjaar
1914
Soort dak
Zadeldak
Staat van onderhouden binnen
Goed
Staat van onderhouden buiten
Goed

Oppervlakte en inhoud

Indeling

Aantal kamers
5
Aantal slaapkamers
4
Aantal woonlagen
2
Voorzieningen
Vve checklist

Buitenruimte

Balkon
Nee
Schuur/berging
Nee

Maandlasten berekenen

De maandlasten voor je woning bestaan uit meer dan alleen de hypotheeklasten. Hieronder vind je een overzicht van de bijkomende kosten en lasten. Zo weet je precies wat je huis per maand gaat kosten. En met de handige vergelijkers kun je ook nog eens snel de beste deals sluiten!

  • Kaart
  • Streetview