Ladogameerhof 148 1060 RE Amsterdam

87m2
Wonen
4
Kamers
0m2
Perceel
1999
Bouwjaar
Opzoek naar een ruim (maisonnette) appartement in Amsterdam- West? Neem dan snel een kijkje in dit prachtige appartement en wie weet bent u straks de trotse eigenaar. Gelegen in de ruim opgezette en kindvriendelijke wijk De Aker in Amsterdam West, bieden wij dit royale 4-kamer appartement aan. De woning is verdeeld over twee verdiepingen. Het appartement heeft een woonoppervlakte van 90 m2 en beschikt over een balkon op het zonnige zuidoosten. Dit appartement is ideaal gelegen in de buurt van openbaar vervoer, met een tramhalte op loopafstand en winkelcentrum ‘De Dukaat’ om de hoek. Hier vindt u onder andere een supermarkt, bakker, slager en drogist. Ook scholen en kinderdagverblijven zijn dichtbij. De uitvalswegen zijn gemakkelijk bereikbaar, en Schiphol ligt op slechts 15 minuten rijden, net als Haarlem en Hoofddorp. Interesse in deze woning? Neem dan snel contact op voor een vrijblijvende bezichtiging!




Begane grond
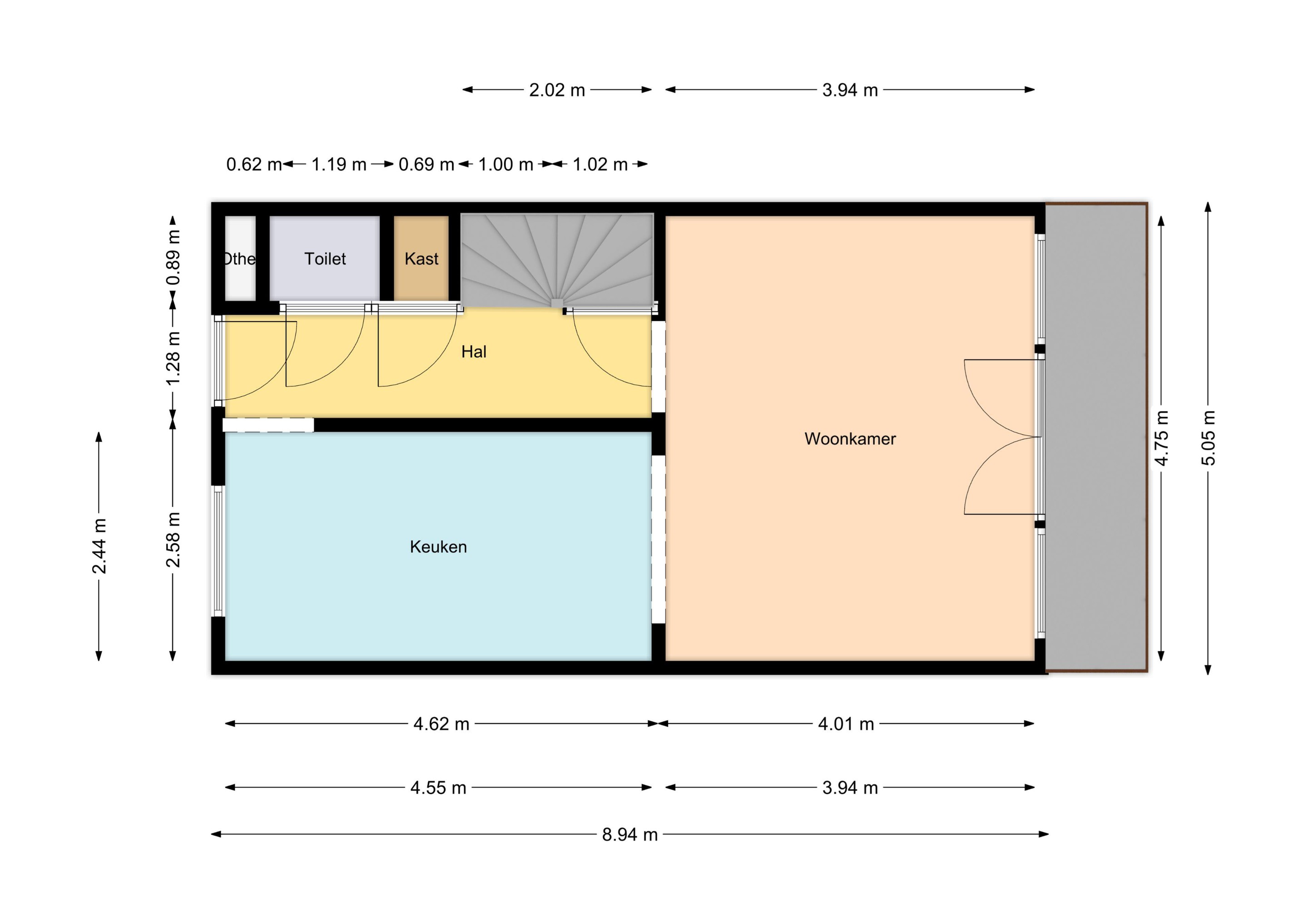
Indeling: Op de begane grond bevindt zich een ruime hal met toilet, een afgesloten garderobe, trapkast en trap naar de eerste verdieping. De lichte woonkamer, gelegen aan de achterzijde, valt op door de openslaande deuren naar het balkon. De royale keuken aan de voorzijde is voorzien van diverse inbouwapparatuur en biedt voldoende ruimte voor een gezellige eethoek.

Eerste verdieping
Op de eerste verdieping bevinden zich drie ruime slaapkamers, een moderne badkamer met douche en wastafelmeubel, en een aparte ruimte voor de wasmachine.

Details
Kenmerken:
- Bouwjaar: 1999
- Woonoppervlakte: 90 m2
- Inhoud: 280 m3
- Gebouwgebonden buitenruimten (balkon): 8 m2
- Gratis parkeren voor de deur
- Balkon op het zuidoosten
- Nabij uitvalswegen A4/A10 en A5/A9

Are you looking for a spacious (maisonette) apartment in Amsterdam-West? Be sure to take a look in this gorgeous apartment; maybe you will soon be the proud owner.

We have on offer this large 4-room apartment, located in the spacious and child-friendly De Aker neighbourhood in Amsterdam-West. The apartment is arranged over two floors, has a living space of 90m2 and a southeast facing sunny balcony. This apartment is ideally located near public transport, within walking distance of a tram stop. ‘De Dukaat’ shopping centre is around the corner with among others a supermarket, bakery, butcher and drugstore. Schools and day-care centres are also nearby. Arterial roads are within easy reach, and Schiphol Airport, Haarlem and Hoofddorp are just a 15-minute drive.

Are you interested? Contact us quickly for a noncommittal viewing appointment!

Description: On the ground floor is a large hall with a toilet, closed wardrobe, stair cupboard and stairs to the first floor. Striking of the bright living room at the back are the patio doors to the balcony. The large kitchen at the front is equipped with various appliances and offers enough room for a cozy dining area.

On the first floor are 3 large bedrooms and a modern bathroom with a shower and washstand. There is a separate room for a washing machine

Specifications:
- Built in: 1999
- Living space: 90m2
- Contents: 280m3
- Building related outdoor spaces (balcony): 8m2
- Free parking at the door
- Southeast facing balcony
- Near arterial roads A4/A10 and A5/A9

Lees meer

Kenmerken

Overdracht

Prijs per m2
€ 5.000
Aangeboden sinds
19 februari 2025
Status
Beschikbaar
Aanvaarding
In overleg

Bouw

Soort appartement
Maisonette, appartement
Soort bouw
Bestaande bouw
Bouwjaar
1999
Soort dak
Plat dak
Staat van onderhouden binnen
Goed
Staat van onderhouden buiten
Goed

Oppervlakte en inhoud

Inhoud van de woning
280 m3
Oppervlakte externe bergruimte
8 m2
Oppervlakte gebouwgebonden buitenruimten
8 m2

Indeling

Aantal kamers
4
Aantal slaapkamers
3
Aantal woonlagen
2
Voorzieningen
Balkon, schuur/berging, lift

Buitenruimte

Balkon
Ja
Schuur/berging
Ja

Maandlasten berekenen

De maandlasten voor je woning bestaan uit meer dan alleen de hypotheeklasten. Hieronder vind je een overzicht van de bijkomende kosten en lasten. Zo weet je precies wat je huis per maand gaat kosten. En met de handige vergelijkers kun je ook nog eens snel de beste deals sluiten!

  • Kaart
  • Streetview