Verkocht OV

Splinterlaan 188 2352 TP Leiderdorp

80m2
Wonen
3
Kamers
0m2
Perceel
2004
Bouwjaar
Modern en instapklaar 3-kamerappartement met zonnig terras, privé berging en een eigen overdekte parkeerplaats!

Koopsom vanaf € 400.000,-

In het eigentijdse complex “Le Jardin du Bois” bevindt zich dit ruime en verzorgde 3-kamerappartement (A+ energielabel) op de eerste woonlaag. De woning beschikt over een heerlijk zonnig terras op het zuidoosten met vrij uitzicht over de Oude Rijn. Daarnaast is er een privé berging dichtbij het appartement en een eigen overdekte parkeerplaats op het afgesloten binnenterrein op de begane grond. Het gebouw is voorzien van een lift en een beveiligde toegangspoort die met afstandsbediening te openen is.

Kortom: Een modern en luxe afgewerkt appartement op een prachtige locatie aan de Oude Rijn. Een woning die u zéker gezien moet hebben!

De ligging is ronduit ideaal:
Op slechts enkele minuten fietsen bevindt zich het sfeervolle, historische hart van Leiden, met zijn grachten, terrasjes en levendige winkelstraten. Ook de karakteristieke Spanjaardsbrug ligt om de hoek, een charmant herkenningspunt dat de verbinding vormt tussen Leiderdorp en de binnenstad.

In de directe omgeving vind je volop extra parkeergelegenheid direct bij het appartement en alles wat het dagelijks leven comfortabel maakt. Denk hierbij aan
diverse winkels, basisscholen, openbaar vervoer en snelle verbindingen naar de A4 (Amsterdam–Den Haag) en de N11 (richting Alphen aan den Rijn, Gouda en Utrecht). Zo geniet je hier van rust en ruimte, met de stad altijd dichtbij.

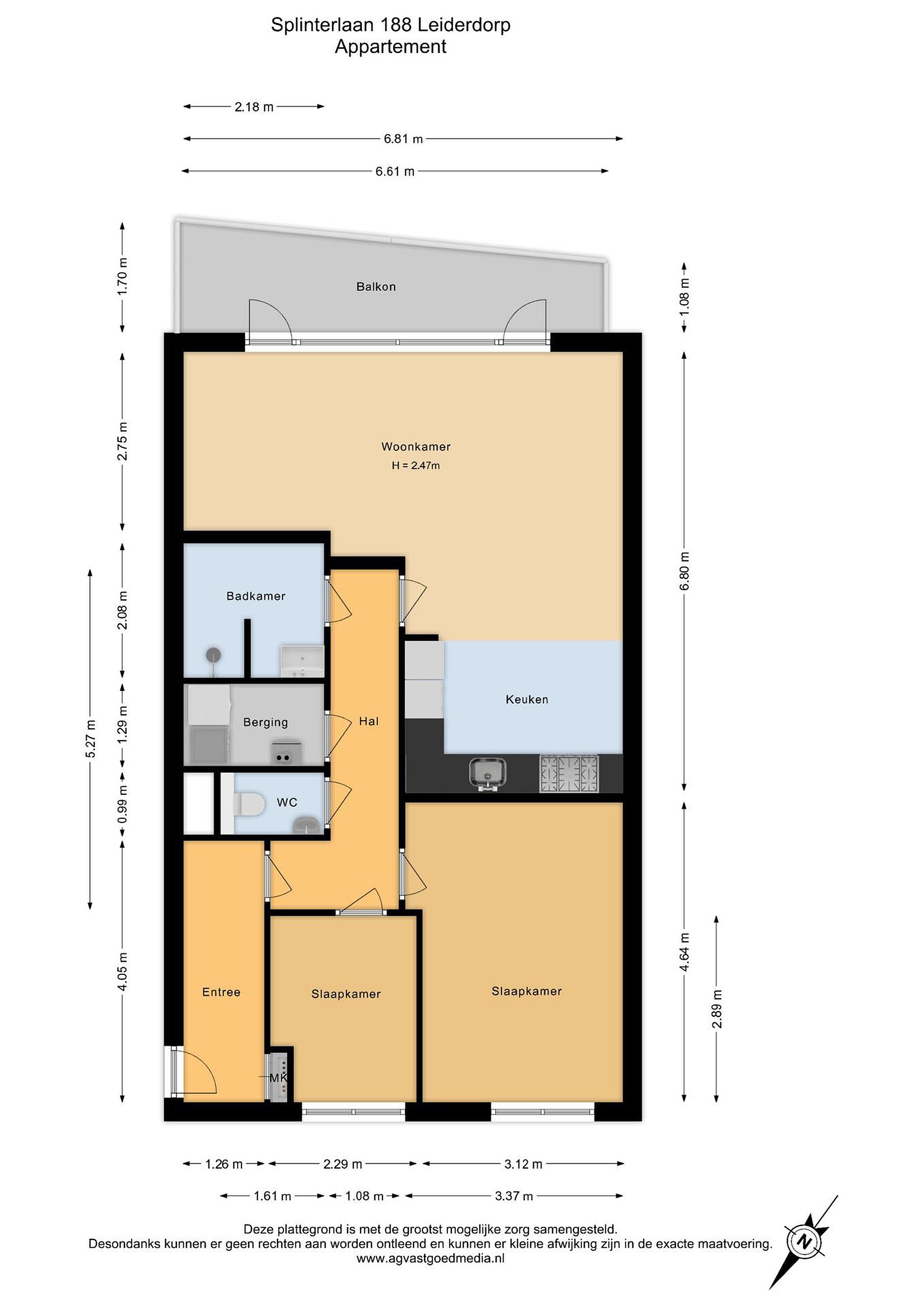
Begane grond
Gemeenschappelijke entree met bellentableau, brievenbussen, trap en lift naar de verdiepingen.

Eerste verdieping
Hal met toegang tot alle vertrekken. De ruime woonkamer is licht en sfeervol dankzij de grote raampartijen en de 2 deuren met glas naar het zonnige terras op het zuidoosten.

De open keuken (2020) is strak en modern uitgevoerd in grijs met rvs-accenten en o.a. voorzien van een fraai fornuis (Smeg) met grote oven, afzuigkap, combimagnetron, vaatwasser, koel-vriescombinatie en voldoende werkruimte.

Aansluitend bevindt zich een ruime eetkamer, waar plaats is voor een grote eettafel. De vloeren, wanden en plafonds zijn in 2020 volledig vernieuwd, strak gestukt en geschilderd.

Er zijn twee goed bemeten slaapkamers. De badkamer (eveneens vernieuwd in 2020) is stijlvol afgewerkt met donkere vloertegels, een inloopdouche, wastafelmeubel en kast. Daarnaast is er een separaat toilet met fonteintje. De woning beschikt verder over een CV-installatie (Intergas HRE, 2022) en mechanische
ventilatie (2023).

Details
- Bouwjaar 2004 / Volledig gemoderniseerd en luxe afgewerkt.
- Woonoppervlakte: 80 m2 / Inhoud: 241 m3.
- Zonnig terras met vrij uitzicht over water (9 m2).
- Lift aanwezig.
- Moderne keuken en badkamer (2020).
- CV-ketel uit 2022.
- Eigen parkeerplaats op overdekt en afgesloten terrein
- Eigen privé berging met elektra. Dichtbij het appartement.
- Gezonde en actieve VvE / Servivekosten € 178,- per maand.
- Instapklaar en uitstekend onderhouden appartement.

Koopsom vanaf € 400.000,- / Vraagprijs € 450.000,-
Alle biedingen vanaf € 400.000,- worden in overweging genomen.

Lees meer

Kenmerken

Overdracht

Prijs per m2
€ 5.000
Aangeboden sinds
10 november 2025
Status
Verkocht onder voorbehoud
Aanvaarding
In overleg

Bouw

Soort appartement
Galerijflat, appartement
Soort bouw
Bestaande bouw
Bouwjaar
2004
Soort dak
Plat dak
Staat van onderhouden binnen
Goed
Staat van onderhouden buiten
Goed

Oppervlakte en inhoud

Inhoud van de woning
241 m3
Oppervlakte externe bergruimte
7 m2
Oppervlakte gebouwgebonden buitenruimten
9 m2

Indeling

Aantal kamers
3
Aantal slaapkamers
2
Aantal woonlagen
1
Voorzieningen
Vve checklist, tuin, schuur/berging, ventilatie, kabel-tv, glasvezel

Buitenruimte

Balkon
Nee
Schuur/berging
Ja

Maandlasten berekenen

De maandlasten voor je woning bestaan uit meer dan alleen de hypotheeklasten. Hieronder vind je een overzicht van de bijkomende kosten en lasten. Zo weet je precies wat je huis per maand gaat kosten. En met de handige vergelijkers kun je ook nog eens snel de beste deals sluiten!

  • Kaart
  • Streetview