Mr. Kesperstraat 9B 2871 GP Schoonhoven

72m2
Wonen
4
Kamers
0m2
Perceel
1965
Bouwjaar
Ons wordt geregeld gevraagd of er niet een appartement te koop is. Nou, dat hebben we nu. En wat voor één. Een heerlijk licht en net appartement op de tweede etage, met twee slaapkamers en ook twee balkons. Eén aan de voorzijde (Zuiden) en één aan de achterzijde. Dus kies maar; volop zon vanuit de woonkamer of rustig vanuit de keuken een koffie doen in de schaduw. De Mr. Kesperstraat ligt heel centraal. Op loopafstand zijn twee supermarkten en een breed aanbod aan overige winkels, scholen, sportzalen en -velden, maar ook dicht bij het oude verkeersluwe stadscentrum met nog veel meer gezellige winkels, horeca, een heus theater en nog veel meer. De bushalte is ook op loopafstand en via de snelle aansluiting op de N210 bent u met de auto direct onderweg naar Gouda, Rotterdam of Utrecht. We gaan deze woning aan u voorstellen.
Begane grond
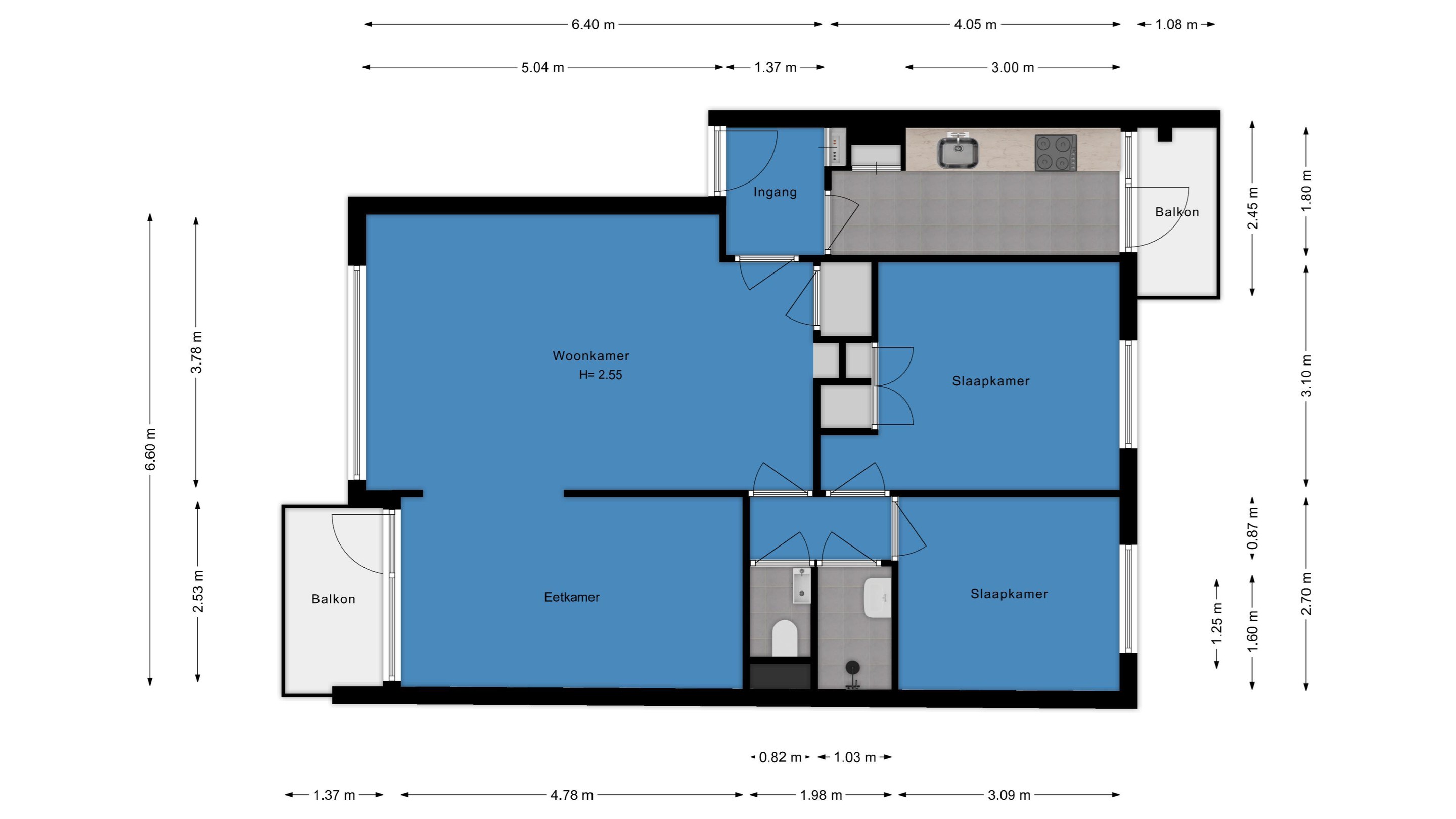
Je komt binnen in de hal, waar de meterkast zich bevindt, rechtdoor is de deur naar de keuken maar eerst gaan we naar rechts, de deur naar de woonkamer en de aangrenzende open eetkamer. De keurige laminaatvloer loopt drempelloos door het gehele appartement. De woonkamer is een heerlijke lichte ruimte met grote ramen aan de voorzijde, op het Zuiden. Links in de woonkamer is de deur naar het eerste balkon, waar je al vroeg kunt genieten van het zonnetje. Van hieruit kijk je tussen de huizen door naar nog meer water en groen. Wat een uitzicht. Prima plek voor een buitenontbijtje, een boek of ’s avonds met een drankje en een zak chips op schoot. Heerlijk toch? Gaan we nu naar de keuken, deze ligt aan de achterzijde en vandaaruit kom je op het tweede balkon. Lekker als het ´s zomers een beetje te warm wordt. De keuken is netjes en heeft een gaskookplaat en door de bovenkastjes over de gehele lengte is er genoeg ruimte voor alle potten, pannen en voorraden.
De beide slaapkamers liggen eveneens aan de achterzijde. Deze bereik je via de woonkamer en opnieuw via een kleine hal. Hier zijn de deuren naar de beide slaapkamers, de badkamer en het separaat toilet.
De badkamer is netjes in crème betegeld. Er is een douche, een wastafel met onderkastjes, een planchet en bovenkastjes met spiegel. De separate toiletruimte is eveneens keurig en heeft een wandcloset en een kleine wastafel met kraan. Beneden op de begane grond is nog een beveiligde berging. Ideaal voor de fiets, de stoelkussens of je hobbyspullen. Dit appartement vinden wij over de gehele lijn netjes en met zorg onderhouden. Heb je al een idee waar je bank komt te staan en waar je een werkplek wilt creëren? Neem dan contact met ons op en vraag een bezichtiging aan. We staan voor u klaar.

Lees meer

Kenmerken

Overdracht

Prijs per m2
€ 4.306
Aangeboden sinds
25 november 2025
Status
Beschikbaar
Aanvaarding
In overleg

Bouw

Soort appartement
Bovenwoning, appartement
Soort bouw
Bestaande bouw
Bouwjaar
1965
Soort dak
Plat dak
Staat van onderhouden binnen
Uitstekend
Staat van onderhouden buiten
Uitstekend

Oppervlakte en inhoud

Inhoud van de woning
183 m3
Oppervlakte externe bergruimte
6 m2
Oppervlakte gebouwgebonden buitenruimten
6 m2

Indeling

Aantal kamers
4
Aantal slaapkamers
2
Aantal woonlagen
1
Voorzieningen
Vve checklist, balkon, schuur/berging, ventilatie

Buitenruimte

Balkon
Ja
Schuur/berging
Ja

Maandlasten berekenen

De maandlasten voor je woning bestaan uit meer dan alleen de hypotheeklasten. Hieronder vind je een overzicht van de bijkomende kosten en lasten. Zo weet je precies wat je huis per maand gaat kosten. En met de handige vergelijkers kun je ook nog eens snel de beste deals sluiten!

  • Kaart
  • Streetview